

+18 fotó
Hirdetéskód: 8743920
Referenciaszám: M282634-5060134
Feltöltve: 1 napja
Tengelic eladó családi ház 3 szobás: 21 millió Ft
21 millió Ft
318 182 Ft/m²
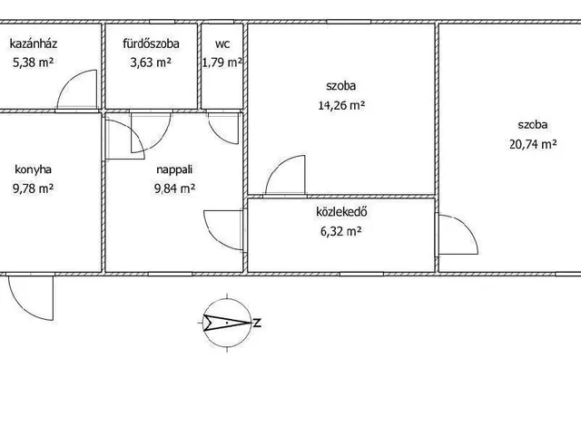
66 m²
3638 m²
3 szoba
Eladó Ház, Tengelic
2 szobás, nappalis ház eladó Tengelicen a szőlőhegyen!
3638 négyzetméter sík terület tartozik hozzá, amely 2 részből áll. 1251 négyzetméter, amin a ház áll garázsokkal, és közvetlenül mellette 2387 négyzetméter művelési ág alól kivett beépítetlen terület.
A ház kívülről, belül jó állapotban van, egyes részekre ráfér egy kis felújítás. Központi fűtése van, egy vegystüzelésű kazánnal. A gázcsonk, az udvarban a kerítésen belül van. Víz, szennyvíz, villany van a házban.
Megközelíteni a Dózsa György utca felől lehet. Kellemes csendes helyen van.
Bankcsoportunk, Magyarország piacvezető pénzintézete 73 év szakértelemmel áll érdeklődő Ügyfeleink rendelkezésére. Használja ki a még elérhető családtámogatási rendszert és legyen kedvező feltételek mellett a kínált lakás tulajdonosa. Teljes körű szolgáltatást nyújtunk: pénzügyi tanácsadás, magánszemélyeknek és vállalkozásoknak, állami támogatások igénylése, bérbeadás, fenntartás, tovább értékesítés.
Hívjon fel, hogy a fejlesztés elemzése során elkészített anyagainkat megoszthassuk Önnel!
Referenciaszám: M282634
Tulajdonságok
Családi ház
Átlagos
Házközponti
1960
Nem adta meg a hirdető
Vedd fel a kapcsolatot a hirdetővel
Rikkers Katalin OTPip - Szekszárd Széchenyi utca 59 - OTP Ingatlanpont Iroda Az iroda összes hirdetése
+36 70 633 3
Hitelkalkulátor
Második évtől
90 374 Ft A 13. hónaptól
7,99%
Végig fix Futamidő: 20 év Banki visszahívás
Az OTP Bank munkatársai a neked megfelelő napszakban veszik fel veled a kapcsolatot. A becslés a hirdető által megadott adatokon alapul. A jelen tájékoztatás nem minősül ajánlattételnek és nem teljes körű, az egyes feltételek a hitelbírálat eredményétől függően változhatnak. Kérjük, a részletekről tájékozódj az OTP Bank fiókjaiban vagy az OTP Bank honlapján közzétett vonatkozó Üzletszabályzatokból és Hirdetményekből.
Vedd fel a kapcsolatot a hirdetővel
Rikkers Katalin OTPip - Szekszárd Széchenyi utca 59 - OTP Ingatlanpont Iroda Az iroda összes hirdetése
+36 70 633 3
Vedd fel a kapcsolatot a hirdetővel
Rikkers Katalin OTPip - Szekszárd Széchenyi utca 59 - OTP Ingatlanpont Iroda Az iroda összes hirdetése
+36 70 633 3
UI_KIT.CHARACTER_COUNTER__COMPONENT.REMAINING_SPACE__SR_ONLYUI_KIT.CHARACTER_COUNTER__COMPONENT.MAXIMUM_CHARACTER__SR_ONLY
Hasonló eladó ingatlanok Tengelicen
Frissítve: 18 napja

20
21 M Ft 318 182 Ft/m²
Eladó családi ház, Tengelic

Frissítve: ma

20
21 M Ft 318 182 Ft/m²
Eladó családi ház, Tengelic

Frissítve: 7 hónapja

1
23 M Ft 230 000 Ft/m²
Eladó családi ház, Tengelic, Gindli utca 7

Fedezd fel a
hasonló házakat!Még további házak Tolna megyében 21 M Ft körüli értékben
Tovább a hirdetésekhez Frissítve: 17 napja

20
22,9 M Ft 208 182 Ft/m²
Eladó családi ház, Tengelic

Feltöltve: 4 hónapja
0
20 M Ft 200 000 Ft/m²
Eladó családi ház, Tengelic, Gindli utca 7.
Frissítve: 18 napja

16
20,5 M Ft 205 000 Ft/m²
Eladó családi ház, Tengelic


Töltsd fel hirdetésed ingyenesen!
Egyszerű