+17 fotó
Hirdetéskód: 7999515
Referenciaszám: 109657
Frissítve: 3 napja
Tiszalúc eladó családi ház 2+2 fél szobás: 19,32 millió Ft
19,32 millió Ft
201 250 Ft/m²
96 m²
689 m²
2+2 fél szoba
Tiszalúc központjában, többféle célra alkalmas ingatlan eladó!
Tiszalúc központjában, Széchenyi utcában, többfelé célra alkalmas, 95.80 m²-es földhivatali nyilvántartásban "kivett takarékszövetkezet"-ként nyilvántartott ingatlan, 689 m²-es telekkel eladó!
Ár: 19.320.000, -Ft+Áfa
Műszaki leírás:
2001-ben épült, földszint tagolódású, tégla falszerekezetű épület. Födém vasbeton gerendás, tetőformája, sátortető, cserepes lemez fedéssel. Homlokzata vakolt színezet a lábazaton dísztégla burkolat látható. Homlokzati nyílászárói műanyag szerkezetű ablakok, hőszigetelt üvegezéssel. Fűtését és melegvíz-ellátását kombi gázkazán biztosítja, radiátor hőleadókkal.
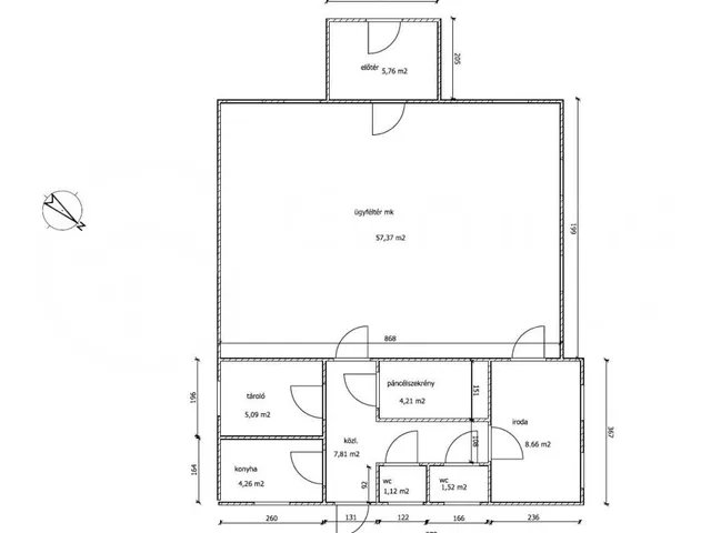
Helyiség lista:
- Előtér
- Ügyféltér
- Közlekedő
- Tároló
- Konyha
- 2db WC.
- Iroda
- Páncélszekrény
Környezet:
Település központi, oktatási intézmény és kereskedelmi célú
ingatlanokkal, lakóházakkal szomszédos.
Közlekedés:
Aszfaltozott úton megközelíthető
Tömegközlekedés buszmegálló 50m
Tulajdonságok
Családi ház
Átlagos
Gázkazán
Nem adta meg a hirdető
Vedd fel a kapcsolatot a hirdetővel
+36 20 447 4
Hitelkalkulátor
Második évtől
83 144 Ft A 13. hónaptól
7,99%
Végig fix Futamidő: 20 év Banki visszahívás
Az OTP Bank munkatársai a neked megfelelő napszakban veszik fel veled a kapcsolatot. A becslés a hirdető által megadott adatokon alapul. A jelen tájékoztatás nem minősül ajánlattételnek és nem teljes körű, az egyes feltételek a hitelbírálat eredményétől függően változhatnak. Kérjük, a részletekről tájékozódj az OTP Bank fiókjaiban vagy az OTP Bank honlapján közzétett vonatkozó Üzletszabályzatokból és Hirdetményekből.
Vedd fel a kapcsolatot a hirdetővel
+36 20 447 4
Vedd fel a kapcsolatot a hirdetővel
+36 20 447 4
UI_KIT.CHARACTER_COUNTER__COMPONENT.REMAINING_SPACE__SR_ONLYUI_KIT.CHARACTER_COUNTER__COMPONENT.MAXIMUM_CHARACTER__SR_ONLY
Hasonló eladó ingatlanok Tiszalúcon
Frissítve: 11 hónapja
1
17,99 M Ft 140 547 Ft/m²
Eladó családi ház, Tiszalúc
Frissítve: 24 napja
10
19,9 M Ft 110 556 Ft/m²
Eladó családi ház, Tiszalúc
Frissítve: 2 napja
20
19,9 M Ft 284 286 Ft/m²
Eladó családi ház, Sárazsadány


Fedezd fel a
hasonló házakat!Még további házak Borsod-Abaúj-Zemplén megyében 19,32 M Ft körüli értékben
Tovább a hirdetésekhez Frissítve: 7 napja
12
17,8 M Ft 209 412 Ft/m²
Eladó családi ház, Sajókaza

Frissítve: 3 napja
14
20 M Ft 263 158 Ft/m²
Eladó családi ház, Bodrogkeresztúr

Frissítve: 2 napja
20
20 M Ft 165 290 Ft/m²
Eladó családi ház, Mezőkövesd

