+17 fotó
Hirdetéskód: 8848193
Referenciaszám: HZ069585-5122488
Feltöltve: 2 napja
Tóalmás eladó családi ház 4 szobás: 34,9 millió Ft
34,9 millió Ft
290 833 Ft/m²
120 m²
1247 m²
4 szoba
Eladó 4 szobás, esztétikai felújítást igénylő ház, Tóalmás
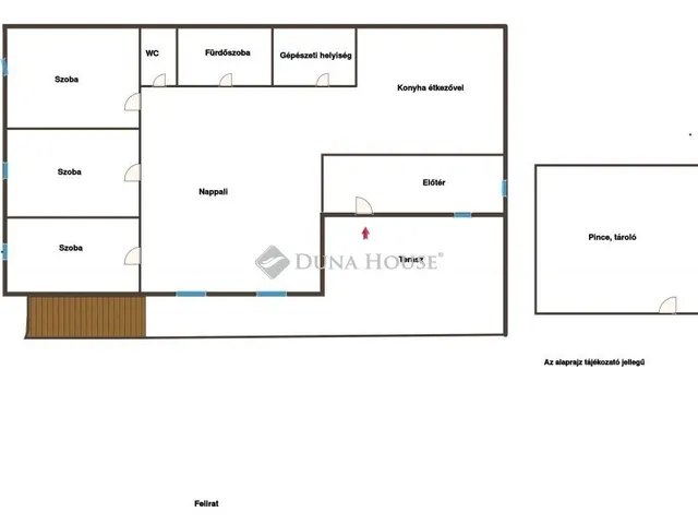
Budapesttől ca 55km távolságra kínálunk eladásra netto 120 m2 alapterületű családi házat 1247m2-es telken Tóalmás központjában.
Az ingatlan tökéletes választás lehet mindazok számára, akik a városi közelséget és a nyugodt lakókörnyezetet egyaránt értékelik.
Az ingatlan beton alapra épült, vegyes falazatú, cserép tetős. Három hálószoba, nagy méretű nappali, kádas és zuhanyzós fürdőszoba, külön wc, gépház, nagy méretű beépített konyha étkezővel és egy előszoba található benne.
A fűtést vegyes tüzelésű kazán biztosítja, radiátoros hőleadással, fa és műanyag nyílászárók gondoskodnak a jó hőszigetelésről. Külső lejáratú pincéje ca. 20m2 alapterületű, 2m belmagassággal tágas, száraz, jól szigetelt.
Esztétikai frissítést követően kitűnő otthona lehet kis - vagy nagy családosoknak is. Nyáron a kertben a gyerekek részére betonozott alapra lehet úszómedencét felállítani fák árnyékában. Az ingatlan OSP hitellel is megvásárolható, Babaváró és CSOK+ is igényelhető.
Ingatlanvásárláshoz kapcsolódóan ügyvédi -, illetve teljeskörű pénzügyi tanácsadással, hitelezéssel állunk rendelkezésére minden kedves ügyfelünknek.
A fotók között AI által szerkesztett képek találhatók!
Megtekintéshez hívjon bizalommal!
Amennyiben az ingatlan megfelelne az elvárásainak de nem rendelkezik a teljes vételárral? Ebben az esetben a CREDIPASS munkatársai kötelezettség- és díjmentes tanácsadással állnak Ügyfeleink rendelkezésére.
Használja ki a jelenleg még érvényben lévő kedvező kamatozású hiteleket, CSOK-ot, illetékkedvezményt!
Hétvégén is várom megtisztelő hívását, abban az esetben is ha csak hitelre lenne szüksége,
Várom hívását, ha még el kell adnia ahhoz, hogy vásárolni tudjon!
Várom megtisztelő hívását: Plachy Zsuzsa 30-8695401
Referencia szám: HZ069585
Tulajdonságok
Családi ház
Jó állapotú
Egyéb kazán
1970
Nem adta meg a hirdető
Vedd fel a kapcsolatot a hirdetővel
+36 1 690 03
Hitelkalkulátor
Második évtől
150 194 Ft A 13. hónaptól
7,99%
Végig fix Futamidő: 20 év Banki visszahívás
Az OTP Bank munkatársai a neked megfelelő napszakban veszik fel veled a kapcsolatot. A becslés a hirdető által megadott adatokon alapul. A jelen tájékoztatás nem minősül ajánlattételnek és nem teljes körű, az egyes feltételek a hitelbírálat eredményétől függően változhatnak. Kérjük, a részletekről tájékozódj az OTP Bank fiókjaiban vagy az OTP Bank honlapján közzétett vonatkozó Üzletszabályzatokból és Hirdetményekből.
Vedd fel a kapcsolatot a hirdetővel
+36 1 690 03
Vedd fel a kapcsolatot a hirdetővel
+36 1 690 03
UI_KIT.CHARACTER_COUNTER__COMPONENT.REMAINING_SPACE__SR_ONLYUI_KIT.CHARACTER_COUNTER__COMPONENT.MAXIMUM_CHARACTER__SR_ONLY
Hasonló eladó ingatlanok Tóalmáson
Frissítve: 25 napja
20
34 M Ft 790 698 Ft/m²
Eladó családi ház, Tóalmás, Rezeda utca

Frissítve: ma
20
34 M Ft 790 698 Ft/m²
Eladó családi ház, Tóalmás

Frissítve: 2 hónapja
1
37,9 M Ft 512 162 Ft/m²
Eladó családi ház, Tóalmás

Fedezd fel a
hasonló házakat!Még további házak Pest megyében 34,9 M Ft körüli értékben
Tovább a hirdetésekhez Frissítve: 25 napja
6
35 M Ft 972 222 Ft/m²
Eladó családi ház, Tóalmás

Frissítve: 2 napja
6
35 M Ft 972 222 Ft/m²
Eladó családi ház, Tóalmás

Frissítve: 19 napja
13
36 M Ft 360 000 Ft/m²
Eladó családi ház, Tóalmás
