+17 fotó
Hirdetéskód: 8863914
Referenciaszám: 5093
Frissítve: 18 napja
Tordas eladó családi ház 4 szobás: 124,9 millió Ft
124,9 millió Ft
1 023 770 Ft/m²
122 m²
1170 m²
4 szoba
Kód: 5093TSZ Újszerű állapot, N+3 szoba, 2 fürdő, dupla garázs, nagy terasz
Hivatkozzon erre, kód: 5093TSZ
- ÚJSZERŰ ÁLLAPOT
- SAJÁT RÉSZRE ÉPÍTETT ÖNÁLLÓ HÁZ
- NAPPALI + 3 SZOBA, 2 FÜRDŐ, DUPLA GARÁZS, NAGY TERASZ
- BEÉPÍTETT BÚTOROK, KLÍMA, PADLÓFŰTÉS
Tordason csendes, nyugodt környezetben új lakóparkban található 1170m2-es telekkel rendelkező nappali + 3 szobás + 2 gk-s garázs, dupla komfortos, összesen 121.8m2-es (terasz felével + garázs), saját részre épített újszerű állapotú családi ház eladó.
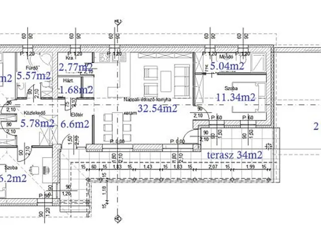
Az ingatlan felosztása a következő (nettó 104.8m2 lakótér + terasz + 2 gk-s garázs): előtér (6.6m2), közlekedő - tároló (5.78m2), konyha - nappali - étkező (32.54m2), kamra (2.77m2), gardrób (5.6m2), háztartási helyiség (1.68m2), 2 fürdőszoba + wc (5.57m2, 5.04m2), 3 szoba (16.2m2, 11.34m2, 11.68m2), terasz (34m2).
Szerkezeti leírás: A ház saját részre épült beton alapra 2022-ben. 30-as tégla főfalak + 15cm dryvit szigetelés. A külső nyílászárók műanyag szerkezetűek, fokozott hőszigetelésű üvegezéssel, bukó-nyíló és fix kivitelben, elektromos redőnyökkel és szúnyoghálókkal felszerelve. Fa szerkezetű födém + 25cm kőzetgyapot szigetelés. Cserép fedésű tető.
Közművek: víz, villany, gáz, csatorna bekötve.
Fűtés, meleg víz ellátás, hűtés: Az ingatlan fűtését kombi - gázcirkó látja el, minden helyiségben padlófűtésen keresztül, illetve a fürdőkben törülközőszárítós radiátor is felszerelésre került. A meleg vizet szintén a cirkó biztosítja. A hűs komfortérzetről hűtő-fűtő klíma gondoskodik.
Parkolás: 2 gk-s garázsban lehetséges, valamint több autónak udvaron belül fedetlen-felszíni beálló áll rendelkezésre.
Extrák, amelyeket a vételár tartalmaz: elektromos redőnyök, szúnyoghálók, hűtő-fűtő klíma, beépített - gépesített konyhabútor (sütő, főzőlap, pára -és szagelszívó, mosogatógép), beépített előszoba szekrény, beépített gardrób, hangulatfények.
Megközelíthetőség és infrastruktúra jó! Buszmegálló kb. 5-10 perc sétatávolság. Közintézmények, bevásárlási lehetőségek gépkocsival és busszal hamar elérhetőek.
További hasonló ingatlanok találhatók még a kínálatunkban!
Szüksége van hitelre? SEGÍTÜNK!
Bankfüggetlen hitel tanácsadónk díjmentesen áll az Ön rendelkezésére! Keressen bizalommal!
A hirdetésben szereplő adatok, információk, képek, alaprajzok stb... tájékoztató jellegűek! Irodánk az esetleges elírásokért felelősséget nem tud vállalni!
Tájékoztatjuk a Tisztelt Érdeklődőket, hogy az ingatlan hirdetésében szereplő telefonszám felhívásával Önök hozzájárulnak személyes adataik (név, telefonszám), a hirdetést feladó -Otthonplusz.hu Kft. - által a bizalmas kezeléshez és nyilvántartáshoz.
Tulajdonságok
Családi ház
1
Újszerű
Gázkazán
2022
34 m²
Nem adta meg a hirdető
Vedd fel a kapcsolatot a hirdetővel
+36 70 432 5
Hitelkalkulátor
Második évtől
537 513 Ft A 13. hónaptól
7,99%
Végig fix Futamidő: 20 év Banki visszahívás
Az OTP Bank munkatársai a neked megfelelő napszakban veszik fel veled a kapcsolatot. A becslés a hirdető által megadott adatokon alapul. A jelen tájékoztatás nem minősül ajánlattételnek és nem teljes körű, az egyes feltételek a hitelbírálat eredményétől függően változhatnak. Kérjük, a részletekről tájékozódj az OTP Bank fiókjaiban vagy az OTP Bank honlapján közzétett vonatkozó Üzletszabályzatokból és Hirdetményekből.
Vedd fel a kapcsolatot a hirdetővel
+36 70 432 5
Vedd fel a kapcsolatot a hirdetővel
+36 70 432 5
UI_KIT.CHARACTER_COUNTER__COMPONENT.ACTUAL_CHARACTER__SR_ONLY UI_KIT.CHARACTER_COUNTER__COMPONENT.MAXIMUM_CHARACTER__SR_ONLY
Hasonló eladó ingatlanok Tordason
Frissítve: 24 napja
20
131,9 M Ft 928 873 Ft/m²
Eladó családi ház, Tordas

Frissítve: 22 napja
5
119,9 M Ft 894 776 Ft/m²
Eladó ikerház, Tordas, Gyúrói út

Frissítve: 15 napja
20
126,9 M Ft 919 565 Ft/m²
Eladó ikerház, Tordas

Fedezd fel a
hasonló házakat!Még további házak Fejér megyében 124,9 M Ft körüli értékben
Tovább a hirdetésekhez Frissítve: 24 napja
20
131,9 M Ft 928 873 Ft/m²
Eladó családi ház, Tordas

Frissítve: 3 napja
20
118,6 M Ft 972 131 Ft/m²
Eladó ikerház, Kápolnásnyék

Frissítve: 18 napja
15
120 M Ft 750 000 Ft/m²
Eladó családi ház, Újbarok

