+12 fotó
Zenga
Premier
Hirdetéskód: 8970024
Referenciaszám: M327045
Feltöltve: 1 napja
Törtel eladó családi ház 3 szobás: 42 millió Ft
42 millió Ft
428 572 Ft/m² *
* A m² árat a hirdető adta meg.
98 m²
1353 m²
3 szoba

Friss hirdetések, amiket nem találsz meg más ingatlankereső portálon.
Fedezd fel elsőként a Zenga Premier címkés eladó ingatlanokat! További részletek A Duna House, OTP Ingatlanpont, Otthon Centrum és további hálózatok új, kizárólagos hirdetéseinek nagy részét a zenga.hu és koltozzbe.hu ingatlankeresőn láthatod legelőször, és a feltöltéstől két hétig nem érhetők el más ingatlankeresőn!
Leírás
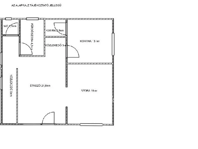
Pest vármegyében, Törtelen eladó egy 98 nm-es családi ház, amely kiváló választás lehet nagycsaládosoknak, bővítésben gondolkodóknak vagy akár vállalkozás céljára is! Az ingatlan jelenleg 3 szobával rendelkezik, de a beépíthető tetőtérnek köszönhetően további 2?3 szoba is könnyedén kialakítható, így az otthon a család igényeihez igazítható. A ház elrendezése praktikus: 3 szoba, nagy étkező, konyha kamrával, fürdőszoba és külön WC. A konyhabútor néhány éve készült, így az már korszerű és esztétikus. Az ingatlan alatt található egy kb. 50 nm-es pince, amely korábban presszóként működött, így vállalkozásra, műhelynek, üzletnek vagy tárolásra is kiváló lehetőséget kínál. A kert igazi különlegesség: barack, szilva, meggy, alma, dió és cseresznye is megterem. A közelben megtalálható: bölcsöde, óvoda, iskola és boltok. Cegléd, Kecskemét és Szolnok könnyen megközelíthető. Ez az ingatlan ideális választás mindazoknak, akik értéket látnak a bővíthetőségben és a jövőbeni lehetőségekben. A vásárlás finanszírozásában az OTP kedvezőbb kamatozású hitelkonstrukcióival és egyéb banki termékek kínálatával tudunk segíteni, díjmentesen, sorban állás nélkül! Az adásvételi szerződés lebonyolításához korrekt ügyvédi közreműködést tudunk ajánlani. Amennyiben felkeltettem érdeklődését, hívjon bizalommal!
Tulajdonságok
Családi ház
1
Átlagos
Cserépkályha
1992
Nem adta meg a hirdető
Vedd fel a kapcsolatot a hirdetővel
+36 70 358 2
Hitelkalkulátor
Második évtől
180 749 Ft A 13. hónaptól
7,99%
Végig fix Futamidő: 20 év Banki visszahívás
Az OTP Bank munkatársai a neked megfelelő napszakban veszik fel veled a kapcsolatot. A becslés a hirdető által megadott adatokon alapul. A jelen tájékoztatás nem minősül ajánlattételnek és nem teljes körű, az egyes feltételek a hitelbírálat eredményétől függően változhatnak. Kérjük, a részletekről tájékozódj az OTP Bank fiókjaiban vagy az OTP Bank honlapján közzétett vonatkozó Üzletszabályzatokból és Hirdetményekből.
Vedd fel a kapcsolatot a hirdetővel
+36 70 358 2
Vedd fel a kapcsolatot a hirdetővel
+36 70 358 2
UI_KIT.CHARACTER_COUNTER__COMPONENT.ACTUAL_CHARACTER__SR_ONLY UI_KIT.CHARACTER_COUNTER__COMPONENT.MAXIMUM_CHARACTER__SR_ONLY
Hasonló eladó ingatlanok Törtelen
Feltöltve: 1 éve
10
44,9 M Ft 561 250 Ft/m²
Eladó családi ház, Törtel
Frissítve: 8 napja
20
39 M Ft 328 283 Ft/m²
Eladó családi ház, Törtel

Frissítve: ma
20
39 M Ft 330 508 Ft/m²
Eladó családi ház, Törtel


Fedezd fel a
hasonló házakat!Még további házak Törtelen 42 M Ft körüli értékben
Tovább a hirdetésekhez Frissítve: 8 napja
20
39 M Ft 330 508 Ft/m²
Eladó családi ház, Törtel

Frissítve: 2 napja
10
40,9 M Ft 601 471 Ft/m²
Eladó családi ház, Törtel

Frissítve: 1 napja
6
40,9 M Ft 601 471 Ft/m²
Eladó családi ház, Törtel

