+17 fotó
Hirdetéskód: 8761008
Referenciaszám: 388834
Frissítve: 5 napja
Tura eladó családi ház 2 szobás: 29,9 millió Ft
29,9 millió Ft
355 952 Ft/m²
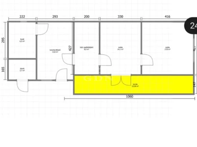
84 m²
1592 m²
2 szoba
Eladó családi ház Tura, 84nm, 29.900.000Ft - Régi vásártér
Eladó felújítandó parasztház Tura városában, a híres Schossberger-kastély szomszédságában!
Tura egyik legszebb részén, a kastély közvetlen közelében kínálunk eladásra egy 84 m²-es, 2 szobás, felújítandó parasztházat, 1592 m²-es telken.
A ház szerkezetileg jó állapotú, tetőszerkezete hibátlan, így felújításkor a szerkezeti munkák megspórolhatók.
A 16 m²-es száraz pince további tárolási lehetőséget biztosít, a fúrt kút, riasztó- és kamerarendszer, pedig a ház praktikus kiegészítői.
Főbb jellemzők:
• 84 m²-es alapterület
• 2 tágas szoba
• 16 m²-es, száraz pince
• konvektoros fűtés
• fúrt kút
• riasztó és kamerarendszer
• régi fa nyílászárók
• 1592 m²-es, gondozható telek
Elhelyezkedés:
Tura Pest vármegye egyik legkedveltebb kisvárosa, amely Budapesttől mindössze 35-40 percre található, az M3-as autópályán vagy vonattal is könnyen megközelíthető.
A város rendezett, fejlődő település, iskolákkal, boltokkal, orvosi rendelővel, jó infrastruktúrával.
A Schossberger-kastély és parkja különleges hangulatot kölcsönöz a környéknek, így a ház turisztikailag is vonzó helyen fekszik.
Kiváló lehetőség azoknak, akik saját ízlésük szerint újítanák fel otthonukat, vagy nyugodt, természetközeli életet keresnek Pest közelségében.
Irányár: 29.900.000.-ft ...TOVÁBBI, TÖBBEZRES INGATLAN KÍNÁLAT: www.gdn-ingatlan.hu - GDN azonosító: 388834
Tulajdonságok
Családi ház
1
Felújítandó
Gáz (konvektor)
1954
16 m²
I
Vedd fel a kapcsolatot a hirdetővel
+36 70 779 8
Hitelkalkulátor
Második évtől
128 676 Ft A 13. hónaptól
7,99%
Végig fix Futamidő: 20 év Banki visszahívás
Az OTP Bank munkatársai a neked megfelelő napszakban veszik fel veled a kapcsolatot. A becslés a hirdető által megadott adatokon alapul. A jelen tájékoztatás nem minősül ajánlattételnek és nem teljes körű, az egyes feltételek a hitelbírálat eredményétől függően változhatnak. Kérjük, a részletekről tájékozódj az OTP Bank fiókjaiban vagy az OTP Bank honlapján közzétett vonatkozó Üzletszabályzatokból és Hirdetményekből.
Vedd fel a kapcsolatot a hirdetővel
+36 70 779 8
Vedd fel a kapcsolatot a hirdetővel
+36 70 779 8
UI_KIT.CHARACTER_COUNTER__COMPONENT.REMAINING_SPACE__SR_ONLYUI_KIT.CHARACTER_COUNTER__COMPONENT.MAXIMUM_CHARACTER__SR_ONLY
Hasonló eladó ingatlanok Turán
Feltöltve: 1 éve
11
32,5 M Ft 433 333 Ft/m²
Eladó családi ház, Tura
Frissítve: 2 hónapja
1
29 M Ft 446 154 Ft/m²
Eladó családi ház, Tura
Frissítve: 13 napja
8
31,9 M Ft 346 739 Ft/m²
Eladó családi ház, Tura

Fedezd fel a
hasonló házakat!Még további házak Pest megyében 29,9 M Ft körüli értékben
Tovább a hirdetésekhez Frissítve: 18 napja
9
29,9 M Ft 467 188 Ft/m²
Eladó családi ház, Tura

Frissítve: 1 napja
13
29,9 M Ft 373 750 Ft/m²
Eladó családi ház, Tura

Frissítve: 12 napja
16
32,5 M Ft 445 205 Ft/m²
Eladó családi ház, Tura


Töltsd fel hirdetésed ingyenesen!
Egyszerű