

+18 fotó
Hirdetéskód: 8720698
Referenciaszám: 180800974
Frissítve: 6 napja
Újfehértó eladó családi ház 2 szobás: 24,5 millió Ft
24,5 millió Ft
345 070 Ft/m²
71 m²
2193 m²
2 szoba
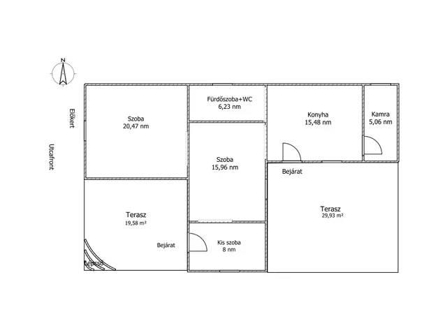
Újfehértó főtérhez közel, 71 nm-es családi ház eladó
Újfehértó főterétől 10 perc sétára 71 nm-es családi ház eladó.
A városközpont közelsége és a családi házas övezet nyugalma jellemzi ezt a:
- 3 szoba, konyha, kamra, fürdőszoba WC-vel, valamint első és hátsó teraszos ingatlant.
- a ház teteje cseréppel fedett, nyílászárói között műanyag, hőszigetelt fa és fa is található.
- fűtése gáz és vegyes tüzelésű kazánnal megoldott
- burkolat a szobákban PVC, a fürdőszobában és konyhában járólap
- külön kazánház és egy lemeztároló is található a 2.193nm-es telken
- az épület vályog építésű, jó statikai állapotú, összkomfortos.
- kiépített infrastruktúra, bolt, iskola, óvoda, bölcsőde, buszváró 500- 1.000 m-en belül
Amennyiben felkeltette érdeklődését a hirdetés, kérem hívjon, és mutatom.
Várom jelentkezését!
Tulajdonságok
Családi ház
1
Felújítandó
Gázkazán
1970
32 m²
Nem adta meg a hirdető
Vedd fel a kapcsolatot a hirdetővel
+36 70 616 6
Hitelkalkulátor
Második évtől
105 437 Ft A 13. hónaptól
7,99%
Végig fix Futamidő: 20 év Banki visszahívás
Az OTP Bank munkatársai a neked megfelelő napszakban veszik fel veled a kapcsolatot. A becslés a hirdető által megadott adatokon alapul. A jelen tájékoztatás nem minősül ajánlattételnek és nem teljes körű, az egyes feltételek a hitelbírálat eredményétől függően változhatnak. Kérjük, a részletekről tájékozódj az OTP Bank fiókjaiban vagy az OTP Bank honlapján közzétett vonatkozó Üzletszabályzatokból és Hirdetményekből.
Vedd fel a kapcsolatot a hirdetővel
+36 70 616 6
Vedd fel a kapcsolatot a hirdetővel
+36 70 616 6
UI_KIT.CHARACTER_COUNTER__COMPONENT.REMAINING_SPACE__SR_ONLYUI_KIT.CHARACTER_COUNTER__COMPONENT.MAXIMUM_CHARACTER__SR_ONLY
Hasonló eladó ingatlanok Újfehértón
Frissítve: 10 hónapja

11
22,9 M Ft 381 667 Ft/m²
Eladó családi ház, Újfehértó
Frissítve: 16 napja

18
26,5 M Ft 552 083 Ft/m²
Eladó családi ház, Újfehértó

Frissítve: 17 napja

18
26,5 M Ft 552 083 Ft/m²
Eladó családi ház, Újfehértó


Fedezd fel a
hasonló házakat!Még további házak Szabolcs-Szatmár-Bereg megyében 24,5 M Ft körüli értékben
Tovább a hirdetésekhez Frissítve: 8 napja

16
22,5 M Ft 250 000 Ft/m²
Eladó családi ház, Rohod

Frissítve: 9 hónapja

1
23,5 M Ft 235 000 Ft/m²
Eladó családi ház, Nagyhalász
Frissítve: 11 napja

4
24 M Ft 150 000 Ft/m²
Eladó családi ház, Nyírbátor, Derzsi utca


Töltsd fel hirdetésed ingyenesen!
Egyszerű