Hirdetéskód: 8919737
Referenciaszám: HZ035837-5167356
Frissítve: 13 napja
Újhartyán eladó családi ház 4 szobás: 84 millió Ft
84 millió Ft
933,3 ezer Ft/m²
90 m²
500 m²
4 szoba
Eladó ház, Újhartyán
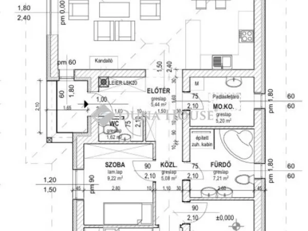
Újhartyán egyik kifejezetten jó elhelyezkedésű, csendes utcájában kínálok megvételre egy 90 m²-es, önálló családi házat, amelyhez egy körülbelül 500 m²-es telek tartozik.A központ gyalogosan mindössze 7 perc alatt elérhető, így a nyugodt lakókörnyezet mellett a mindennapi ügyintézés és bevásárlás is kényelmesen megoldható. A körbejárható ingatlan modern, energiatakarékos műszaki tartalommal készül, átadása 2026 decemberében várható.Műszaki tartalom:- Hőszivattyús fűtési rendszer padlófűtéssel- 30 cm-es teherhordó téglafalak- 10 cm-es falazott válaszfalak- 15 cm Austrotherm EPS80 homlokzati hőszigetelés- 12 cm XPS lábazati hőszigetelés- Födém, 40 cm Isover üveggyapot hőszigeteléssel- Beton cserépfedés- 3 rétegű, hőszigetelt műanyag nyílászárókSzemélyre szabható kivitelezés, melyeket a vételár tartalmaz:- Hideg- és melegburkolatok bruttó 6.000 Ft/m²-ig választhatók- Beltéri ajtók bruttó 60.000 Ft/db árig választhatókAz építkezés jelenleg még nem kezdődött el, így a látványtervek és az alaprajz igény esetén módosíthatók, akár bővíthetők is. Ez kiváló lehetőséget biztosít arra, hogy leendő tulajdonosa saját elképzelései szerint alakítsa ki új otthonát.Amennyiben hitelre lenne szüksége, kiváló, szakmailag felkészült kollégánkkal a Credipasstól ingyenes és bankfüggetlen szaktanácsadás keretén belül biztosan megtalálják a lehető legkedvezőbb, személyre szabott konstrukciót. További kérdés esetén állok szíves rendelkezésükre hétvégén is, a megadott elérhetőségek bármelyikén.A hirdetésben szereplő FIX 3%-os lakáshitel részét képező támogatásokat Magyarország Kormánya nyújtja.
Tulajdonságok
Családi ház
Új építésű
Hőszivattyú
2026
Nem adta meg a hirdető
Vedd fel a kapcsolatot a hirdetővel

+36 29 769 7
Hitelkalkulátor
Második évtől
361 498 Ft A 13. hónaptól
7,99% 8,49%
Végig fix Futamidő: 20 év Banki visszahívás
Az OTP Bank munkatársai a neked megfelelő napszakban veszik fel veled a kapcsolatot. A becslés a hirdető által megadott adatokon alapul. A jelen tájékoztatás nem minősül ajánlattételnek és nem teljes körű, az egyes feltételek a hitelbírálat eredményétől függően változhatnak. Kérjük, a részletekről tájékozódj az OTP Bank fiókjaiban vagy az OTP Bank honlapján közzétett vonatkozó Üzletszabályzatokból és Hirdetményekből.
Vedd fel a kapcsolatot a hirdetővel

+36 29 769 7
Vedd fel a kapcsolatot a hirdetővel

+36 29 769 7
UI_KIT.CHARACTER_COUNTER__COMPONENT.ACTUAL_CHARACTER__SR_ONLY UI_KIT.CHARACTER_COUNTER__COMPONENT.MAXIMUM_CHARACTER__SR_ONLY
Hasonló eladó ingatlanok Újhartyánban
Frissítve: 17 napja
8
89,9 millió Ft 908,1 ezer Ft/m²
Eladó családi ház, Újhartyán
Frissítve: 3 napja
3
84 millió Ft 933,3 ezer Ft/m²
Eladó családi ház, Újhartyán

Frissítve: 17 napja
17
87 millió Ft 966,7 ezer Ft/m²
Eladó családi ház, Újhartyán, Nefelejcs utca

Fedezd fel a
hasonló házakat!Még további házak Pest megyében 84 M Ft körüli értékben
Tovább a hirdetésekhez Frissítve: 6 napja
15
87 millió Ft 1,02 millió Ft/m²
Eladó családi ház, Újhartyán

Frissítve: 17 napja
12
87 millió Ft 966,7 ezer Ft/m²
Eladó családi ház, Újhartyán
Frissítve: 17 napja
3
84 millió Ft 933,3 ezer Ft/m²
Eladó családi ház, Újhartyán

