+14 fotó
Hirdetéskód: 8726204
Referenciaszám: 4620
Feltöltve: 1 hónapja
Vácrátót eladó családi ház 4 szobás: 78,9 millió Ft
78,9 millió Ft
974 074 Ft/m²
81 m²
377 m²
4 szoba
4620: Vácrátóton, a Szent István lakóparkban ÚJ ÉPÍTÉSŰ, CSALÁDI HÁZAK eladók!!!
Vácrátóton, a Szent István lakóparkban ÚJ ÉPÍTÉSŰ, CSALÁDI HÁZAK eladók!!!
CÉGES ÉPÍTKEZÉS, a 2024-től aktuális állami támogatások valamint kedvezményes, kamattámogatott hitelek felvehetőek – akár a 3%-os OTTHON START hitel, CSOK PLUS, babaváró is igényelhető, az ügyintézésben díjmentesen segítünk!
Az építő munkájára jellemző a megbízhatóság és igényesség, leinformálható, referencia házai megtekinthetők.
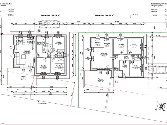
A lakások területe 81 nm, lakóterületük 70,37 nm + 20,24 nm terasz, amerikai-konyhás nappali + 3 szobával, 376,67 nm valamint 344,91 nm-es telekrésszel, zárt udvari beállóval.
A fotón az építő már elkészült, azonos paraméterekkel rendelkező háza látható referenciaként.
Rövid műszaki tartalom:
A házak falai 30 cm-es téglából épülnek + 15 cm dryvit szigeteléssel.
A tető beton cserépfedést kap.
Az ablakok 3 rétegű, műanyag szerkezetűek, thermo üveggel ellátva, fehér színben kerülnek beépítésre.
A fűtés HŐSZIVATTYÚ-val kerül kialakításra, a hő leadás padlófűtéssel történik.
A klíma kiállás és riasztó előkészítés a vételár részét képezi.
A szobákban laminált parketta, a vizes helyiségekben kerámia lapok kerülnek, melyek választhatók, a belső műszaki tartalomban feltüntetett összegig a vételár részét képezve.
Parkolás térkövezett beállón lehetséges.
HELYISÉGLISTA:
Előszoba 4,77 nm, nappali 17,16 nm, konyha 4,9 nm, étkező 4,5 nm, 3 szoba 8,09 nm, 9,57 nm, 9,57 nm, fürdőszoba káddal 6,02 nm, közlekedő 4,45 nm, külön WC 1,3 nm, terasz 20,77 nm.
Ára: 78.900.000.- Ft
Azonosító: 4620
Tulajdonságok
Családi ház
1
Új építésű
Hőszivattyú
2025
20 m²
Nem adta meg a hirdető
Vedd fel a kapcsolatot a hirdetővel
+36 70 418 1
Hitelkalkulátor
Második évtől
339 550 Ft A 13. hónaptól
7,99% 8,49%
Végig fix Futamidő: 20 év Banki visszahívás
Az OTP Bank munkatársai a neked megfelelő napszakban veszik fel veled a kapcsolatot. A becslés a hirdető által megadott adatokon alapul. A jelen tájékoztatás nem minősül ajánlattételnek és nem teljes körű, az egyes feltételek a hitelbírálat eredményétől függően változhatnak. Kérjük, a részletekről tájékozódj az OTP Bank fiókjaiban vagy az OTP Bank honlapján közzétett vonatkozó Üzletszabályzatokból és Hirdetményekből.
Vedd fel a kapcsolatot a hirdetővel
+36 70 418 1
Vedd fel a kapcsolatot a hirdetővel
+36 70 418 1
UI_KIT.CHARACTER_COUNTER__COMPONENT.REMAINING_SPACE__SR_ONLYUI_KIT.CHARACTER_COUNTER__COMPONENT.MAXIMUM_CHARACTER__SR_ONLY
Hasonló eladó ingatlanok Vácrátóton
Frissítve: 20 napja
2
85,5 M Ft 950 000 Ft/m²
Eladó ikerház, Vácrátót
Frissítve: 28 napja
8
86,5 M Ft 994 253 Ft/m²
Eladó családi ház, Vácrátót

Frissítve: 28 napja
8
86,5 M Ft 982 955 Ft/m²
Eladó családi ház, Vácrátót


Fedezd fel a
hasonló házakat!Még további házak Vácrátóton 78,9 M Ft körüli értékben
Tovább a hirdetésekhez Frissítve: 28 napja
8
86,5 M Ft 994 253 Ft/m²
Eladó ikerház, Vácrátót

Frissítve: 26 napja
9
74,85 M Ft 935 625 Ft/m²
Eladó családi ház, Vácrátót

Frissítve: 28 napja
9
79,9 M Ft 868 478 Ft/m²
Eladó családi ház, Vácrátót

Töltsd fel hirdetésed ingyenesen!
Egyszerű