+5 fotó
Hirdetéskód: 8840537
Referenciaszám: 729500020
Frissítve: 12 napja
Vácrátót eladó családi ház 5 szobás: 149,9 millió Ft
149,9 millió Ft
1,07 millió Ft/m²
140 m²
800 m²
5 szoba
4637: Vácrátóton új építésű, földszintes, garázsos családi ház eladó!
Kedves Otthonkereső!
Hamarosan költözhető!!!
Vácrátóton új építésű, földszintes, garázsos családi ház eladó!
CÉGES ÉPÍTKEZÉS, az aktuális állami támogatások valamint kedvezményes, kamattámogatott hitelek felvehetőek, az ügyintézésben díjmentesen segítünk!
Az építő munkájára jellemző a megbízhatóság és igényesség, leinformálható, referencia házai megtekinthetők.
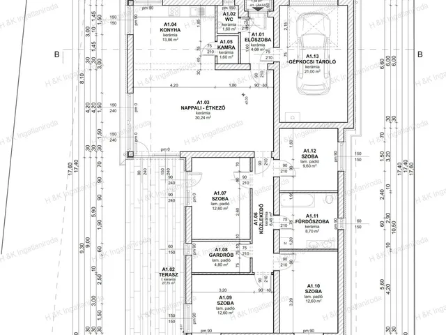
A ház 800 nm-es telekre épül, amerikai-konyhás nappali + 4 szobás elrendezésű, lakóterülete 118,77 nm +21 nm garázs + 29,09 nm terasz.
Helyiséglista: amerikai konyhás nappali 44,1 nm, 4 szoba 12,6 - 12,6 - 12,6 és 9,6 nm, kamra 1,6 nm, fürdőszoba 8,7 nm, külön WC 1,6 nm, gardrób 4,8 nm, közlekedő 6,49 nm, előtér 4,08 nm, terasz 29,09 nm, garázs 21 nm.
Az ingatlan homlokzati falai 30-as PTH téglából épülnek, melyre 15 cm dryvit hőszigetelés kerül.
Födém szerkezete vasbetonból készült, rajta 25 cm ásványgyapot hőszigetelés, a tető beton cseréppel fedett.
A külső nyílászárók műanyag-gyártásúak, hőszigeteltek, 5 légkamrások, 3 rétegű üvegezéssel, melyekre fehér műanyag redőnyök kerülnek felszerelésre, szúnyogháló előkészítéssel. A nappaliban motoros, fehér aluredőnyök.
Külső és belső műanyag párkányok az ablakok alatt fehér színben.
A fűtésről modern, hőszivattyús rendszer fog gondoskodni, a teljes lakótérben padlófűtéssel, továbbá a fürdőszobában törölközőszárító radiátor kerül beépítésre. A házba 7 db termosztát kerül elhelyezésre, helyiségenként külön-külön hőfok-szabályozóval.
A hűtés a nappaliban elhelyezett klímával megoldott.
Parkolás: lakáskapcsolatos garázsban és udvari beállón megoldott.
Kültéri munkálatok: durva tereprendezés az épület körül, felső réteg termőfölddel helyettesítve, a gyalogos bejárónál és a gépkocsi beálló vonalában térkő, bejárattól a teraszig térkő járda.
+ vállalások: garázskapu motorral, fehér garázsajtó motorral, kaputelefon előkészítés,1 kerti csap biztosítása
Az ingatlan kulcsrakész állapotban kerül átadásra, konyhabútor nélkül. Belső nyílászárók és a burkolatok választhatók, a belső műszaki tartalomban megjelölt összegig a vételár részét képezik.
A képek között virtuálisan berendezett és esztétikailag optimalizált látványfotók is találhatók.
Kulcsrakész ár: 149.900.000.- Ft
Azonosító: 4637
Tulajdonságok
Családi ház
1
Új építésű
Hőszivattyú
2026
A+
Vedd fel a kapcsolatot a hirdetővel
+36 70 418 1
Hitelkalkulátor
Második évtől
645 101 Ft A 13. hónaptól
7,99% 8,49%
Végig fix Futamidő: 20 év Banki visszahívás
Az OTP Bank munkatársai a neked megfelelő napszakban veszik fel veled a kapcsolatot. A becslés a hirdető által megadott adatokon alapul. A jelen tájékoztatás nem minősül ajánlattételnek és nem teljes körű, az egyes feltételek a hitelbírálat eredményétől függően változhatnak. Kérjük, a részletekről tájékozódj az OTP Bank fiókjaiban vagy az OTP Bank honlapján közzétett vonatkozó Üzletszabályzatokból és Hirdetményekből.
Vedd fel a kapcsolatot a hirdetővel
+36 70 418 1
Vedd fel a kapcsolatot a hirdetővel
+36 70 418 1
UI_KIT.CHARACTER_COUNTER__COMPONENT.ACTUAL_CHARACTER__SR_ONLY UI_KIT.CHARACTER_COUNTER__COMPONENT.MAXIMUM_CHARACTER__SR_ONLY
Hasonló eladó ingatlanok Vácrátóton
Frissítve: 1 hónapja
3
149 millió Ft 1,06 millió Ft/m²
Eladó családi ház, Vácrátót
Frissítve: 1 hónapja
7
149 millió Ft 1,06 millió Ft/m²
Eladó családi ház, Vácrátót
Feltöltve: 6 hónapja
13
160 millió Ft 993,8 ezer Ft/m²
Eladó családi ház, Budaörs


Fedezd fel a
hasonló házakat!Még további házak Pest megyében 149,9 M Ft körüli értékben
Tovább a hirdetésekhez Frissítve: 3 napja
20
152,6 millió Ft 605,6 ezer Ft/m²
Eladó családi ház, Göd

Frissítve: ma
20
139,9 millió Ft 999,3 ezer Ft/m²
Eladó családi ház, Pilis

Frissítve: ma
20
142 millió Ft 599,2 ezer Ft/m²
Eladó családi ház, Leányfalu

