+2 fotó
Zenga
Premier
Hirdetéskód: 8890650
Referenciaszám: U0049282
Feltöltve: ma
Vál eladó családi ház 3 szobás: 98 millió Ft
98 millió Ft
989 899 Ft/m²
99 m²
2915 m²
3 szoba

Friss hirdetések, amiket nem találsz meg más ingatlankereső portálon.
Fedezd fel elsőként a Zenga Premier címkés eladó ingatlanokat! További részletek A Duna House, OTP Ingatlanpont, Otthon Centrum és további hálózatok új, kizárólagos hirdetéseinek nagy részét a zenga.hu és koltozzbe.hu ingatlankeresőn láthatod legelőször, és a feltöltéstől két hétig nem érhetők el más ingatlankeresőn!
Fedezze fel álmai otthonát Válon: új 3 szobás ház várja Önt!
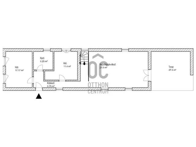
Eladó Pest megyében, Martonvásár vonzáskörzetében, egy letisztult stílusú, új építésű, egyszintes családi ház, csendes környezetben, Válon.
Az ingatlan nettó 99nm (bruttó 112nm) alapterületű, gondosan megtervezett belső elrendezéssel. A világos, tágas nappali-konyha harmonikusan kapcsolódik a privát élettérhez, míg a két hálószoba nyugodt pihenést biztosít a mindennapok után.
A ház műszaki tartalma a modern otthonok minden elvárásának megfelel:
- hőszivattyús fűtés
- fan-coil hűtés
gondoskodik az egész éves, energia hatékony komfortérzetről.
Az egyszintes kialakítás nemcsak kényelmes, hanem időtálló megoldás is.
Az udvaron 2-3 kocsi beállására van lehetőség. A környék pedig ideális mindazok számára, akik a nyugalmat keresik, mégsem szeretnének lemondani a jó elérhetőségről: iskola és bolt a közelben, Martonvásár pedig gyorsan megközelíthető
Ez az otthon tökéletes választás azoknak, akik minőséget, letisztult eleganciát és nyugodt életteret keresnek .
Miután a ház még nincs teljesen kész, ezért a hirdetés látványterveket tartalmaz!!!
További információért és megtekintésért várom hívását.
Tulajdonságok
Családi ház
Új építésű
2025
26,8 m²
Nem adta meg a hirdető
Vedd fel a kapcsolatot a hirdetővel
+36 70 435 2
Hitelkalkulátor
Második évtől
421 747 Ft A 13. hónaptól
7,99% 8,49%
Végig fix Futamidő: 20 év Banki visszahívás
Az OTP Bank munkatársai a neked megfelelő napszakban veszik fel veled a kapcsolatot. A becslés a hirdető által megadott adatokon alapul. A jelen tájékoztatás nem minősül ajánlattételnek és nem teljes körű, az egyes feltételek a hitelbírálat eredményétől függően változhatnak. Kérjük, a részletekről tájékozódj az OTP Bank fiókjaiban vagy az OTP Bank honlapján közzétett vonatkozó Üzletszabályzatokból és Hirdetményekből.
Vedd fel a kapcsolatot a hirdetővel
+36 70 435 2
Vedd fel a kapcsolatot a hirdetővel
+36 70 435 2
UI_KIT.CHARACTER_COUNTER__COMPONENT.ACTUAL_CHARACTER__SR_ONLY UI_KIT.CHARACTER_COUNTER__COMPONENT.MAXIMUM_CHARACTER__SR_ONLY
Hasonló eladó ingatlanok Válon
Frissítve: 18 napja
13
90 M Ft 500 000 Ft/m²
Eladó családi ház, Vál
Feltöltve: 22 napja
19
104,9 M Ft 403 462 Ft/m²
Eladó családi ház, Vál

Frissítve: 25 napja
15
89 M Ft 643 017 Ft/m²
Eladó családi ház, Enying


Fedezd fel a
hasonló házakat!Még további házak Fejér megyében 98 M Ft körüli értékben
Tovább a hirdetésekhez Frissítve: 25 napja
11
93 M Ft 664 286 Ft/m²
Eladó családi ház, Kajászó, Szellőrózsa utca

Frissítve: 3 hónapja
20
99,77 M Ft 941 226 Ft/m²
Eladó családi ház, Pákozd, Ibolya utca
Frissítve: 25 napja
20
89,9 M Ft 561 875 Ft/m²
Eladó családi ház, Dunaújváros


