+17 fotó
Hirdetéskód: 8943194
Referenciaszám: M321946-5183587
Frissítve: 1 hónapja
Vanyola eladó családi ház 2+1 fél szobás: 22,9 millió Ft
22,9 millió Ft
246,2 ezer Ft/m²
93 m²
1831 m²
2+1 fél szoba
Eladó Ház, Vanyola
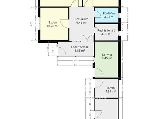
Veszprém vármegyében, Pápától mindössze 15 percre, Vanyolán kinálok eladásra egy 93 m2-es tégla falaztú családi házat! Az ingatlan egy 1831 m2-es telken fekszik. Az ingatlan masszív szerkezetű, így hosszú távra biztos alapot nyújt azoknak, akik stabil, jól átgondolható otthont keresnek. Az épület statikailag kifogástalan állapotban van. Az ingatlan elosztás szempontjából áll: 3 szoba, közlekedő, fürdő-WC, kamra, előtér valamint a konyha ami jelenleg külön bejáratú, viszont nagyon könnyen kialakitható az egy-térbe helyezés.A tágas, gyümölcsfákkal beültetett udvar számos lehetőséget kínál. A telken több hasznos melléképület is található, mint nyári konyha, garázs, valamint tárolásra és gazdálkodásra alkalmas épületek. Az udvaron egy gyűrűs ásott kút is helyet kapott, amely kiválóan használható öntözésre. Az ingatlan ideális választás lehet azok számára, akik nagy telekkel rendelkező, felújítható családi házat keresnek, melléképületekkel, nyugodt vidéki környezetben, mégis jó infrastruktúrával, valamint akik csendes, biztonságos környezetben szeretnének élni, ugyanakkor könnyen elérhető közelségben maradnának a nagyobb városoktól. Amennyiben további információra lenne szüksége, vagy kérdése lenne keressen bizalommal! Az OTP Ingatlanpont teljes körű ügyintézéssel áll az eladók és a vevők rendelkezésére. A kínálatunkból választott ingatlan finanszírozásához kedvezményes hitelkonstrukciót kínálunk. Az adásvételi szerződés megkötéséhez igény szerint megbízható ügyvédi közreműködést biztosítunk, és segítséget nyújtunk az adásvételhez kapcsolódó ügyek intézéséhez is. A hirdetési szöveg és képek az OTP Ingatlanpont Kft. tulajdona.
Tulajdonságok
Családi ház
Jó állapotú
Gáz (konvektor)
1975
Nem adta meg a hirdető
Vedd fel a kapcsolatot a hirdetővel

+36 20 509 8
Hitelkalkulátor
Második évtől
98 551 Ft A 13. hónaptól
7,99%
Végig fix Futamidő: 20 év Banki visszahívás
Az OTP Bank munkatársai a neked megfelelő napszakban veszik fel veled a kapcsolatot. A becslés a hirdető által megadott adatokon alapul. A jelen tájékoztatás nem minősül ajánlattételnek és nem teljes körű, az egyes feltételek a hitelbírálat eredményétől függően változhatnak. Kérjük, a részletekről tájékozódj az OTP Bank fiókjaiban vagy az OTP Bank honlapján közzétett vonatkozó Üzletszabályzatokból és Hirdetményekből.
Vedd fel a kapcsolatot a hirdetővel

+36 20 509 8
Vedd fel a kapcsolatot a hirdetővel

+36 20 509 8
UI_KIT.CHARACTER_COUNTER__COMPONENT.ACTUAL_CHARACTER__SR_ONLY UI_KIT.CHARACTER_COUNTER__COMPONENT.MAXIMUM_CHARACTER__SR_ONLY
Hasonló eladó ingatlanok Vanyolán
Frissítve: 6 napja
20
22,9 millió Ft 246,2 ezer Ft/m²
Eladó családi ház, Vanyola

Frissítve: ma
20
22,9 millió Ft 246,2 ezer Ft/m²
Eladó családi ház, Vanyola

Frissítve: 1 hónapja
20
22,9 millió Ft 246,2 ezer Ft/m²
Eladó családi ház, Vanyola


Fedezd fel a
hasonló házakat!Még további házak Veszprém megyében 22,9 M Ft körüli értékben
Tovább a hirdetésekhez Frissítve: 1 hónapja
20
22,9 millió Ft 246,2 ezer Ft/m²
Eladó családi ház, Vanyola

Frissítve: 1 hónapja
20
22,9 millió Ft 246,2 ezer Ft/m²
Eladó családi ház, Vanyola

Frissítve: 1 napja
20
24 millió Ft 444,4 ezer Ft/m²
Eladó családi ház, Sümeg
