+11 fotó
Zenga
Premier
Hirdetéskód: 8913553
Referenciaszám: M323766
Frissítve: 7 napja
Velence eladó családi ház 4 szobás: 74 millió Ft
74 millió Ft
740 000 Ft/m² *
* A m² árat a hirdető adta meg.
100 m²
473 m²
4 szoba

Friss hirdetések, amiket nem találsz meg más ingatlankereső portálon.
Fedezd fel elsőként a Zenga Premier címkés eladó ingatlanokat! További részletek A Duna House, OTP Ingatlanpont, Otthon Centrum és további hálózatok új, kizárólagos hirdetéseinek nagy részét a zenga.hu és koltozzbe.hu ingatlankeresőn láthatod legelőször, és a feltöltéstől két hétig nem érhetők el más ingatlankeresőn!
Leírás
Velence csendes környékén, Újtelepen kínálunk eladásra egy felújítandó családiházat.
Az ingatlan 1976-ban épült, tégla szerkezetű családi ház, amely lakóövezeti besorolású területen található. A ház alapterülete 100 nm, a telek területe 473 nm, megközelítőleg 20 x 20 méteres mérettel. Az épület kétszintes, belmagassága 2,7 méter.
A fűtésről gáz-cirkó rendszer gondoskodik radiátoros hőleadással. A közművek: víz, villany, csatorna és gáz a telken belül rendelkezésre állnak. A nappali déli tájolású, így az ingatlan fényviszonyai kedvezőek. Parkolás garázsban biztosított.
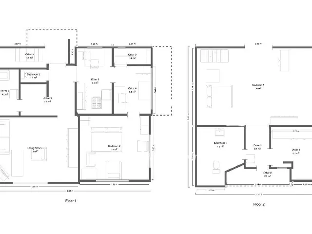
A földszinten található egy 18 nm-es nappali, egy 14 nm-es szoba, egy 7,3 nm-es konyha, az ahhoz kapcsolódó 5,5 nm-es étkező, valamint egy 1,9 nm-es kamra. Ezen a szinten kapott helyet továbbá egy 4 nm-es fürdőszoba, egy különálló, 1,1 nm-es WC, valamint egy 6,9 nm-es közlekedő. A bejárati ajtónál tetővel rendelkező kétoldalról megközelíthető lépcső is megtalálható. Az oldal kert irányában pedig egy kényelmes terasz található, amelynél a ház saját fala és tetőszerkezete természetes védelmet nyújt az eső és a szél ellen.
Az emeleten egy tágas, 20 nm-es szoba, egy 6,3 nm-es szoba, egy 7,5 nm-es fürdőszoba, valamint egy 3 nm-es közlekedő található. A közlekedőből nyílik az erkély, ahol kényelmesen elfogyaszthatjuk a reggeli kávénkat.
Az ingatlan jogilag rendezett, a térképmásolaton minden feltüntetésre került. Ügyfeleink részére díjmentesen biztosítunk előzetes hitelbírálatot, piaci hitel esetén egyedi kamatot adunk és teljeskörű támogatást adunk egészen a birtokbavételig! Keressen bizalommal akár hétvégén is!
Tulajdonságok
Családi ház
2
Átlagos
Gázkazán
1976
Nem adta meg a hirdető
Vedd fel a kapcsolatot a hirdetővel
+36 70 884 0
Hitelkalkulátor
Második évtől
318 462 Ft A 13. hónaptól
7,99%
Végig fix Futamidő: 20 év Banki visszahívás
Az OTP Bank munkatársai a neked megfelelő napszakban veszik fel veled a kapcsolatot. A becslés a hirdető által megadott adatokon alapul. A jelen tájékoztatás nem minősül ajánlattételnek és nem teljes körű, az egyes feltételek a hitelbírálat eredményétől függően változhatnak. Kérjük, a részletekről tájékozódj az OTP Bank fiókjaiban vagy az OTP Bank honlapján közzétett vonatkozó Üzletszabályzatokból és Hirdetményekből.
Vedd fel a kapcsolatot a hirdetővel
+36 70 884 0
Vedd fel a kapcsolatot a hirdetővel
+36 70 884 0
UI_KIT.CHARACTER_COUNTER__COMPONENT.ACTUAL_CHARACTER__SR_ONLY UI_KIT.CHARACTER_COUNTER__COMPONENT.MAXIMUM_CHARACTER__SR_ONLY
Hasonló eladó ingatlanok Újtelep városrészben
Frissítve: 23 napja
10
80 M Ft 400 000 Ft/m²
Eladó családi ház, Velence
Frissítve: 23 napja
20
79 M Ft 395 000 Ft/m²
Eladó családi ház, Velence

Frissítve: 23 napja
20
79 M Ft 417 989 Ft/m²
Eladó családi ház, Velence


Fedezd fel a
hasonló házakat!Még további házak Velencén 74 M Ft körüli értékben
Tovább a hirdetésekhez Frissítve: ma
20
79 M Ft 417 989 Ft/m²
Eladó családi ház, Velence

Frissítve: 16 napja
20
79,9 M Ft 1 175 000 Ft/m²
Eladó családi ház, Velence, Velencefürdő
Frissítve: 7 hónapja
1
70,9 M Ft 945 333 Ft/m²
Eladó sorház, Velence, Ófalu
