+11 fotó
Hirdetéskód: 8959643
Referenciaszám: M323766-5194330
Frissítve: ma
Velence eladó családi ház 4 szobás: 69 millió Ft
69 millió Ft
690 000 Ft/m²
100 m²
473 m²
4 szoba
Eladó Ház, Velence
Velence csendes környékén, Újtelepen kínálunk eladásra egy felújítandó családiházat.
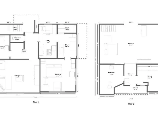
Az ingatlan 1976-ban épült, tégla szerkezetű családi ház, amely lakóövezeti besorolású területen található. A ház alapterülete 100 nm, a telek területe 473 nm, megközelítőleg 20 x 20 méteres mérettel. Az épület kétszintes, belmagassága 2,7 méter.
A fűtésről gáz-cirkó rendszer gondoskodik radiátoros hőleadással. A közművek: víz, villany, csatorna és gáz a telken belül rendelkezésre állnak. A nappali déli tájolású, így az ingatlan fényviszonyai kedvezőek. Parkolás garázsban biztosított.
A földszinten található egy 18 nm-es nappali, egy 14 nm-es szoba, egy 7,3 nm-es konyha, az ahhoz kapcsolódó 5,5 nm-es étkező, valamint egy 1,9 nm-es kamra. Ezen a szinten kapott helyet továbbá egy 4 nm-es fürdőszoba, egy különálló, 1,1 nm-es WC, valamint egy 6,9 nm-es közlekedő. A bejárati ajtónál tetővel rendelkező kétoldalról megközelíthető lépcső is megtalálható. Az oldal kert irányában pedig egy kényelmes terasz található, amelynél a ház saját fala és tetőszerkezete természetes védelmet nyújt az eső és a szél ellen.
Az emeleten egy tágas, 20 nm-es szoba, egy 6,3 nm-es szoba, egy 7,5 nm-es fürdőszoba, valamint egy 3 nm-es közlekedő található. A közlekedőből nyílik az erkély, ahol kényelmesen elfogyaszthatjuk a reggeli kávénkat.
Az ingatlan jogilag rendezett, a térképmásolaton minden feltüntetésre került.
Referenciaszám: M323766
Az OTP Bankcsoport teljeskörű ügyintézéssel áll az eladók és a vevők rendelkezésére! A kínálatunkból választott ingatlan finanszírozásához kedvezményes hitelkonstrukciókat kínálunk. Az adásvételi szerződés megkötéséhez igény szerint megbízható ügyvédi közreműködést biztosítunk és segítséget nyújtunk az adásvételhez kapcsolódó ügyek intézéséhez.
Tulajdonságok
Családi ház
Átlagos
Gázkazán
1976
Nem adta meg a hirdető
Vedd fel a kapcsolatot a hirdetővel
Gombos Zita OTPip - Szigetszentmiklós Tököli út 19.B - OTP Ingatlanpont Iroda Az iroda összes hirdetése
+36 20 534 7
Hitelkalkulátor
Második évtől
296 945 Ft A 13. hónaptól
7,99%
Végig fix Futamidő: 20 év Banki visszahívás
Az OTP Bank munkatársai a neked megfelelő napszakban veszik fel veled a kapcsolatot. A becslés a hirdető által megadott adatokon alapul. A jelen tájékoztatás nem minősül ajánlattételnek és nem teljes körű, az egyes feltételek a hitelbírálat eredményétől függően változhatnak. Kérjük, a részletekről tájékozódj az OTP Bank fiókjaiban vagy az OTP Bank honlapján közzétett vonatkozó Üzletszabályzatokból és Hirdetményekből.
Vedd fel a kapcsolatot a hirdetővel
Gombos Zita OTPip - Szigetszentmiklós Tököli út 19.B - OTP Ingatlanpont Iroda Az iroda összes hirdetése
+36 20 534 7
Vedd fel a kapcsolatot a hirdetővel
Gombos Zita OTPip - Szigetszentmiklós Tököli út 19.B - OTP Ingatlanpont Iroda Az iroda összes hirdetése
+36 20 534 7
UI_KIT.CHARACTER_COUNTER__COMPONENT.ACTUAL_CHARACTER__SR_ONLY UI_KIT.CHARACTER_COUNTER__COMPONENT.MAXIMUM_CHARACTER__SR_ONLY
Hasonló eladó ingatlanok Velencén
Frissítve: 2 napja
8
74,9 M Ft 851 136 Ft/m²
Eladó ikerház, Velence

Frissítve: 2 napja
9
75,4 M Ft 919 512 Ft/m²
Eladó családi ház, Velence
Frissítve: ma
9
74,9 M Ft 851 136 Ft/m²
Eladó ikerház, Velence


Fedezd fel a
hasonló házakat!Még további házak Fejér megyében 69 M Ft körüli értékben
Tovább a hirdetésekhez Frissítve: 2 napja
14
69 M Ft 690 000 Ft/m²
Eladó családi ház, Velence

Frissítve: 2 napja
10
75 M Ft 914 634 Ft/m²
Eladó ikerház, Velence
Frissítve: ma
17
63 M Ft 630 000 Ft/m²
Eladó családi ház, Velence
