+11 fotó
Hirdetéskód: 8975690
Referenciaszám: M323766-5204463
Feltöltve: 1 napja
Velence eladó családi ház 4 szobás: 69 millió Ft
69 millió Ft
690 000 Ft/m²
100 m²
473 m²
4 szoba
Eladó Ház, Velence
Velence csendes környékén, Újtelepen kínálunk eladásra egy felújítandó családiházat.
Az ingatlan 1976-ban épült, tégla szerkezetű családi ház, amely lakóövezeti besorolású területen található. A ház alapterülete 100 nm, a telek területe 473 nm, megközelítőleg 20 x 20 méteres mérettel. Az épület kétszintes, belmagassága 2,7 méter.
A fűtésről gáz-cirkó rendszer gondoskodik radiátoros hőleadással. A közművek: víz, villany, csatorna és gáz a telken belül rendelkezésre állnak. A nappali déli tájolású, így az ingatlan fényviszonyai kedvezőek. Parkolás garázsban biztosított.
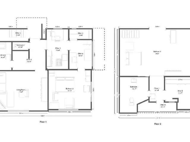
A földszinten található egy 18 nm-es nappali, egy 14 nm-es szoba, egy 7,3 nm-es konyha, az ahhoz kapcsolódó 5,5 nm-es étkező, valamint egy 1,9 nm-es kamra. Ezen a szinten kapott helyet továbbá egy 4 nm-es fürdőszoba, egy különálló, 1,1 nm-es WC, valamint egy 6,9 nm-es közlekedő. A bejárati ajtónál tetővel rendelkező kétoldalról megközelíthető lépcső is megtalálható. Az oldal kert irányában pedig egy kényelmes terasz található, amelynél a ház saját fala és tetőszerkezete természetes védelmet nyújt az eső és a szél ellen.
Az emeleten egy tágas, 20 nm-es szoba, egy 6,3 nm-es szoba, egy 7,5 nm-es fürdőszoba, valamint egy 3 nm-es közlekedő található. A közlekedőből nyílik az erkély, ahol kényelmesen elfogyaszthatjuk a reggeli kávénkat.
Az ingatlan jogilag rendezett, a térképmásolaton minden feltüntetésre került. Ügyfeleink részére díjmentesen biztosítunk előzetes hitelbírálatot, piaci hitel esetén egyedi kamatot adunk és teljeskörű támogatást adunk egészen a birtokbavételig! Keressen bizalommal akár hétvégén is!
Tulajdonságok
Családi ház
Átlagos
Gázkazán
1976
F
Vedd fel a kapcsolatot a hirdetővel
Darnai Henrietta OTPip - Székesfehérvár Palotai út 8 - OTP Ingatlanpont Iroda Az iroda összes hirdetése
+36 20 487 4
Hitelkalkulátor
Második évtől
296 945 Ft A 13. hónaptól
7,99%
Végig fix Futamidő: 20 év Banki visszahívás
Az OTP Bank munkatársai a neked megfelelő napszakban veszik fel veled a kapcsolatot. A becslés a hirdető által megadott adatokon alapul. A jelen tájékoztatás nem minősül ajánlattételnek és nem teljes körű, az egyes feltételek a hitelbírálat eredményétől függően változhatnak. Kérjük, a részletekről tájékozódj az OTP Bank fiókjaiban vagy az OTP Bank honlapján közzétett vonatkozó Üzletszabályzatokból és Hirdetményekből.
Vedd fel a kapcsolatot a hirdetővel
Darnai Henrietta OTPip - Székesfehérvár Palotai út 8 - OTP Ingatlanpont Iroda Az iroda összes hirdetése
+36 20 487 4
Vedd fel a kapcsolatot a hirdetővel
Darnai Henrietta OTPip - Székesfehérvár Palotai út 8 - OTP Ingatlanpont Iroda Az iroda összes hirdetése
+36 20 487 4
UI_KIT.CHARACTER_COUNTER__COMPONENT.ACTUAL_CHARACTER__SR_ONLY UI_KIT.CHARACTER_COUNTER__COMPONENT.MAXIMUM_CHARACTER__SR_ONLY
Hasonló eladó ingatlanok Velencén
Frissítve: 12 napja
17
63 M Ft 630 000 Ft/m²
Eladó családi ház, Velence

Frissítve: 12 napja
17
63 M Ft 630 000 Ft/m²
Eladó családi ház, Velence
Frissítve: ma
17
63 M Ft 630 000 Ft/m²
Eladó családi ház, Velence

Fedezd fel a
hasonló házakat!Még további házak Velencén 69 M Ft körüli értékben
Tovább a hirdetésekhez Frissítve: 12 napja
9
75,4 M Ft 919 512 Ft/m²
Eladó családi ház, Velence
Frissítve: 12 napja
10
75 M Ft 914 634 Ft/m²
Eladó ikerház, Velence
Frissítve: 12 napja
6
74,9 M Ft 788 421 Ft/m²
Eladó ikerház, Velence


