Hirdetéskód: 8787420
Referenciaszám: 1340_ar
Feltöltve: 1 napja
Veresegyház eladó családi ház 5 szobás: 149,99 millió Ft
149,99 millió Ft
1 102 868 Ft/m²
136 m²
817 m²
5 szoba
Eladó családi ház Veresegyház Öreghegy 136m2 149990000 Ft
Eladó Veresegyházon ÚJ ÉPÍTÉSŰ családi ház!
BERUHÁZÓI ÁRON!
HAMAROSAN KEZDŐDŐ ÉPÍTKEZÉS!
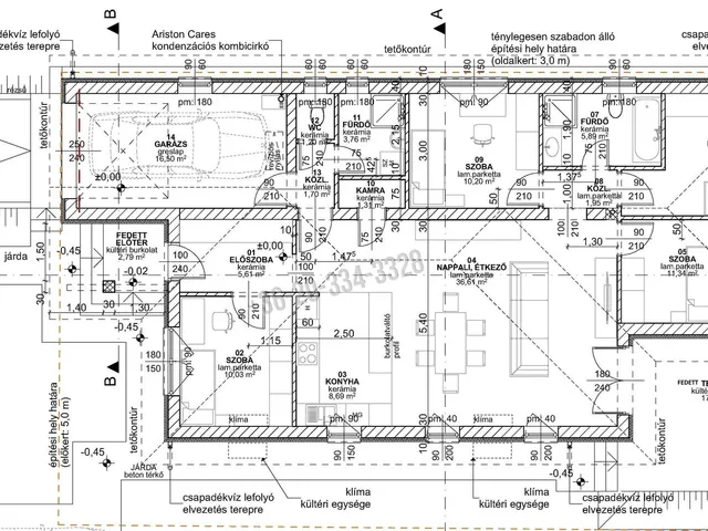
Eladó Pest megye egyik legkedveltebb településén, Veresegyház Öreghegy városrészben, csendes, szép kertvárosi környezetben, ÚJ ÉPÍTÉSŰ, nettó 126 nm-es, amerikai konyhás nappali + 4 szobás, tripla komfortos, családi ház garázzsal, 817 nm-es telekkel.
A BELSŐ TEREK KIALAKÍTÁSA – válaszfalak elhelyezése – JELENLEG MÉG MÓDOSÍTHATÓ!
A tervezésnél törekedtek az élhető terek kialakítására, a maximális kényelem megteremtésére:
- a tágas, 45 nm-es amerikai konyhás nappali terasz kapcsolattal, a 4 hálószoba, 2 fürdőszoba kényelmes életteret biztosít az egész család számára, valamint egy kamra és vendég WC is helyet kapott.
Az épület korszerű, a mai kor igényeinek megfelelő minőségi anyagokból és technológiával készül:
-főfalak 30-as Porotherm téglából, 15 cm-es hőszigeteléssel,
-fűtést gázkazán biztosítja, padlófűtéssel, igény esetén hőszivattyús fűtéssel, melynek plusz költsége van,
-3 db klíma kiállás előkészítése,
-3 rétegű, hőszigetelt üvegezésű műanyag nyílászárók, – értékegyeztetéssel - redőnnyel, szúnyoghálóval felszerelve,
-beton födém,
-beton cserépfedés,
-választható burkolatok, szaniterek, belső ajtók.
Hívjon a részletekért, a részletes műszaki tartalomért.
KÖZLEKEDÉS: buszmegálló gyalogosan pár perc alatt elérhető.
Ez az ingatlan ideális választás mindazok számára, akik csendes, rendezett környezetre vágynak, mégis élvezve a város kényelmeit.
Irodánk ÚJ ÉPÍTÉSŰ ingatlanok specialistája, felkészült értékesítőkkel!
Jogi háttérrel (kedvező díjazással) és az egyik legjobb, bank semleges HITELKÖZVETÍTŐVEL segítjük vásárlását.
Hitelszakértőnk teljes körű ügyintézéssel áll Vevőink rendelkezésére, legyen szó OTTHON START, CSOK+, BABAVÁRÓ vagy a legjobb piaci hitelről.
Új építésű ingatlanjainkat BERUHÁZÓI ÁRON értékesítjük!
Amennyiben értékesíteni kívánja ingatlanát, irodánk egyedi, kedvező ajánlattal áll rendelkezésére!
Veresegyház Budapesttől mindössze 25 km-re helyezkedik el. A városban minden megtalálható, ami a mindennapi élethez szükséges: számos bevásárlási és kikapcsolódási lehetőség (üzletházak, piac, színház, horgásztó, medvepark, termálfürdő stb.), orvosi rendelő, gyógyszertár, általános iskolák, zeneiskola, gimnázium, óvodák, bölcsődék.
Autóval és tömegközlekedéssel (elővárosi vonat NY-i pályaudvar, távolsági autóbusz Újpest) is jól megközelíthető. A városban helyi buszjárat is közlekedik.
Tulajdonságok
Családi ház
1
Új építésű
Gázkazán
2025
17 m²
Nem adta meg a hirdető
Vedd fel a kapcsolatot a hirdetővel
+36 20 334 3
Hitelkalkulátor
Második évtől
645 489 Ft A 13. hónaptól
7,99% 8,49%
Végig fix Futamidő: 20 év Banki visszahívás
Az OTP Bank munkatársai a neked megfelelő napszakban veszik fel veled a kapcsolatot. A becslés a hirdető által megadott adatokon alapul. A jelen tájékoztatás nem minősül ajánlattételnek és nem teljes körű, az egyes feltételek a hitelbírálat eredményétől függően változhatnak. Kérjük, a részletekről tájékozódj az OTP Bank fiókjaiban vagy az OTP Bank honlapján közzétett vonatkozó Üzletszabályzatokból és Hirdetményekből.
Vedd fel a kapcsolatot a hirdetővel
+36 20 334 3
Vedd fel a kapcsolatot a hirdetővel
+36 20 334 3
UI_KIT.CHARACTER_COUNTER__COMPONENT.REMAINING_SPACE__SR_ONLYUI_KIT.CHARACTER_COUNTER__COMPONENT.MAXIMUM_CHARACTER__SR_ONLY
Hasonló eladó ingatlanok Öreghegy városrészben
Frissítve: 5 napja
2
154,9 M Ft 1 138 971 Ft/m²
Eladó családi ház, Veresegyház, Öreghegy
Feltöltve: 9 hónapja
1
149 M Ft 1 182 540 Ft/m²
Eladó családi ház, Veresegyház, Öreghegy
Frissítve: 16 napja
20
137,9 M Ft 1 068 992 Ft/m²
Eladó családi ház, Veresegyház, Öreghegy

Fedezd fel a
hasonló házakat!Még további házak Veresegyházon 149,99 M Ft körüli értékben
Tovább a hirdetésekhez Frissítve: 17 napja
20
140 M Ft 875 000 Ft/m²
Eladó családi ház, Veresegyház, Öreghegy

Frissítve: ma
15
145,8 M Ft 946 753 Ft/m²
Eladó ikerház, Veresegyház

Frissítve: 23 napja
6
145,5 M Ft 1 069 853 Ft/m²
Eladó családi ház, Veresegyház


Töltsd fel hirdetésed ingyenesen!
Egyszerű