Hirdetéskód: 8901449
Referenciaszám: 201100819
Frissítve: 2 napja
Veresegyház eladó családi ház 4 szobás: 129,9 millió Ft
129,9 millió Ft
1 180 909 Ft/m²
110 m²
600 m²
4 szoba
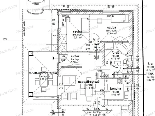
Eladó új építésű családi ház Veresegyházon, Tópart városrészen.
Kizárólag irodánk kínálatában!
Eladó Veresegyházon, Tópart városrészen egy nettó 100 nm lakóterületű + terasz, nappali + 3 szoba (kialakítható 4 szoba is, vagy garázs is kérhető), DUPLA KOMFORTOS, új építésű, egy szintes, tégla építésű családi ház, 600 nm-es telken.
CÉGES ÉPÍTKEZÉS!
A HÁZ JELLEMZŐI:
A 2026-ban épülő ház falai 30 cm-es TÉGLÁBÓL épülnek + 15 cm dryvit szigeteléssel. A tető beton cseréppel lesz fedve.
A fűtésről HŐSZIVATTYÚ fog gondoskodni, a hő leadás padlófűtéssel fog történni.
A szobákban laminált parketta, a vizes helyiségekben kerámia lapok kerülnek, a műszaki tartalomban vállalt árakig.
Az ablakok 3 rétegű, műanyag vázas, thermo üvegesek, fehér színűek lesznek.
Parkolás az udvaron lehetséges.
Átadás: 2026. IV. negyedév
KÖRNYÉK: Csend, tiszta levegő, nyugalom!
A ház csendes, aszfaltozott mellékutcában található. A közelben megtalálható óvoda, iskola, élelmiszerbolt.
KÖZLEKEDÉS: Vasútállomás 500 km, helyi buszmegálló 2 perc gyalogosan.
Tekintse meg ezt a jó adottságú ingatlant!
Tapasztalt és felkészült kollégáink segítenek Önnek akár a hétvégén is.
Köszönjük, hogy megtisztel bizalmával, és irodánkat választja új otthona kiválasztására.
Kérem, nézze meg irodánk további kínálatát, hívjon igényeivel és segítünk, akár a HÉTVÉGÉN is. Ha esetleg még nem sikerült eladni ingatlanát, kedvezményes feltételekkel vállaljuk annak értékesítését!
Tulajdonságok
Családi ház
1
Új építésű
Hőszivattyú
2026
Nem adta meg a hirdető
Vedd fel a kapcsolatot a hirdetővel
+36 70 612 1
Hitelkalkulátor
Második évtől
559 030 Ft A 13. hónaptól
7,99% 8,49%
Végig fix Futamidő: 20 év Banki visszahívás
Az OTP Bank munkatársai a neked megfelelő napszakban veszik fel veled a kapcsolatot. A becslés a hirdető által megadott adatokon alapul. A jelen tájékoztatás nem minősül ajánlattételnek és nem teljes körű, az egyes feltételek a hitelbírálat eredményétől függően változhatnak. Kérjük, a részletekről tájékozódj az OTP Bank fiókjaiban vagy az OTP Bank honlapján közzétett vonatkozó Üzletszabályzatokból és Hirdetményekből.
Vedd fel a kapcsolatot a hirdetővel
+36 70 612 1
Vedd fel a kapcsolatot a hirdetővel
+36 70 612 1
UI_KIT.CHARACTER_COUNTER__COMPONENT.ACTUAL_CHARACTER__SR_ONLY UI_KIT.CHARACTER_COUNTER__COMPONENT.MAXIMUM_CHARACTER__SR_ONLY
Hasonló eladó ingatlanok Tópart városrészben
Frissítve: 2 napja
20
139 M Ft 712 821 Ft/m²
Eladó családi ház, Veresegyház, Tópart

Frissítve: 2 napja
20
136 M Ft 686 869 Ft/m²
Eladó családi ház, Veresegyház

Frissítve: 2 napja
11
119,99 M Ft 470 549 Ft/m²
Eladó ikerház, Veresegyház

Fedezd fel a
hasonló házakat!Még további házak Veresegyházon 129,9 M Ft körüli értékben
Tovább a hirdetésekhez Frissítve: 2 napja
7
119,9 M Ft 999 167 Ft/m²
Eladó családi ház, Veresegyház
Frissítve: 2 napja
20
136,8 M Ft 755 801 Ft/m²
Eladó családi ház, Veresegyház
Frissítve: 2 napja
7
134,8 M Ft 1 418 947 Ft/m²
Eladó ikerház, Veresegyház, Hegyek

