

Hirdetéskód: 8736521
Referenciaszám: 360081005-1878
Feltöltve: ma
Veresegyház eladó családi ház 3+2 fél szobás: 134,5 millió Ft
134,5 millió Ft
896 667 Ft/m²
150 m²
793 m²
3+2 fél szoba
Veresegyházán, új építésű, egyszintes, 5 szobás duplagarázsos családi ház eladó
3% START HITELLEL MEGVÁSÁRÓLHATÓ!!!!
Prémium kategóriás új építésű családi ház VERESEGYHÁZÁN A REVETKBEN!
DUPLA GARÁZZSAL!! amerikai konyhás nappali + 4 szoba, 2 fürdőszoba, nagy 793 nm telek!
Veresegyház, kertvárosi részén, kiváló elhelyezkedéssel kínálunk megvételre egy új építésű, földszintes családi házat, amelyet a modern élettér és a prémium kivitelezés jellemez.
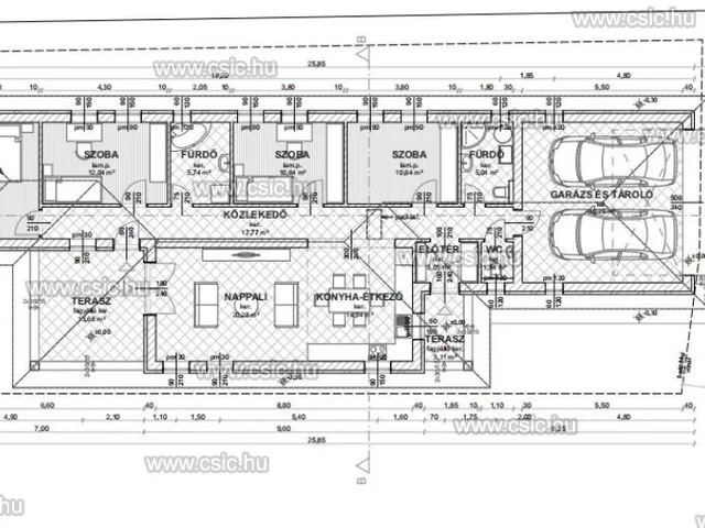
A 793 m²-es telken elhelyezkedő ház hasznos alapterülete 144 m², ehhez tartozik egy 32 m²-es dupla garázs és egy 17 m²-es terasz. A tágas nappali + étkező + konyha 35 m²-es egybefüggő térként biztosítja a családi élet központját.
Elosztás (teljeskörű kényelemmel):
-4 külön bejáratú hálószoba (10,60–12,60 m² között)
-2 fürdőszoba + külön háztartási helyiség
-közlekedő, előszoba
-amerikai konyhás nappali
- terasz
-dupla garázs
Műszaki felszereltség – a jövő otthona már ma:
Okos tégla falazat, 12 cm dryvit szigetelés
3 rétegű műanyag nyílászárók, 5 légkamrás rendszerrel
Alumínium teraszajtó
Hőszivattyús fűtés -padló fűtéssel
Napelem kiállás
Riasztó előkészítés
BRAMAC tetőrendszer
17 nm TERASZ
Elektromos Kapu előkészítés
Elektromos Garázs kapu
3 fázis, 3x20 A, H-tarifa
Térkövezett bejáró, parkoló
Műszaki tartalom tartalmazza a burkolatokat és szanitereket
Miért érdemes Veresegyházra költözni?? Milyen a közlekedése?
Veresegyház Budapesttől mindössze félórányi autóútra található, mégis nyugodt, zöldövezeti környezetet kínál. A város folyamatosan fejlődik, kiváló infrastruktúrával, iskolákkal, óvodákkal és bevásárlási lehetőségekkel.
Számos szabadidős programot nyújt a Veresegyházi Medveotthon, a termálfürdő, valamint a környék kirándulóhelyei. Ideális választás mindazoknak, akik csendes, családbarát környezetben szeretnének élni, de fontos számukra a főváros közelsége is.
Várom hívását ,hétvégén is!!
Tulajdonságok
Családi ház
Új építésű
Nem adta meg a hirdető
Vedd fel a kapcsolatot a hirdetővel
+36 20 236 0
Hitelkalkulátor
Második évtől
578 827 Ft A 13. hónaptól
7,99% 8,49%
Végig fix Futamidő: 20 év Banki visszahívás
Az OTP Bank munkatársai a neked megfelelő napszakban veszik fel veled a kapcsolatot. A becslés a hirdető által megadott adatokon alapul. A jelen tájékoztatás nem minősül ajánlattételnek és nem teljes körű, az egyes feltételek a hitelbírálat eredményétől függően változhatnak. Kérjük, a részletekről tájékozódj az OTP Bank fiókjaiban vagy az OTP Bank honlapján közzétett vonatkozó Üzletszabályzatokból és Hirdetményekből.
Vedd fel a kapcsolatot a hirdetővel
+36 20 236 0
Vedd fel a kapcsolatot a hirdetővel
+36 20 236 0
UI_KIT.CHARACTER_COUNTER__COMPONENT.REMAINING_SPACE__SR_ONLYUI_KIT.CHARACTER_COUNTER__COMPONENT.MAXIMUM_CHARACTER__SR_ONLY
Hasonló eladó ingatlanok Veresegyházon
Frissítve: 8 napja

7
145 M Ft 1 208 333 Ft/m²
Eladó ikerház, Veresegyház
Frissítve: 11 napja

11
145,5 M Ft 1 299 107 Ft/m²
Eladó családi ház, Veresegyház

Frissítve: 12 napja

20
139,9 M Ft 874 375 Ft/m²
Eladó családi ház, Veresegyház

Fedezd fel a
hasonló házakat!Még további házak Veresegyházon 134,5 M Ft körüli értékben
Tovább a hirdetésekhez Frissítve: 13 napja

20
136,8 M Ft 755 801 Ft/m²
Eladó családi ház, Veresegyház
Frissítve: 3 napja

17
138,9 M Ft 1 102 381 Ft/m²
Eladó családi ház, Veresegyház
Frissítve: 12 napja

20
134,9 M Ft 1 037 692 Ft/m²
Eladó családi ház, Veresegyház

Töltsd fel hirdetésed ingyenesen!
Egyszerű