+17 fotó
Hirdetéskód: 8983733
Referenciaszám: M327376-5209606
Feltöltve: ma
Vértesacsa eladó családi ház 8+2 fél szobás: 137,5 millió Ft
137,5 millió Ft
474,1 ezer Ft/m²
290 m²
2449 m²
8+2 fél szoba
Eladó Ház, Vértesacsa
Magaslati nyugalom a falu szívében Kulcsrakész luxus Vértesacsán
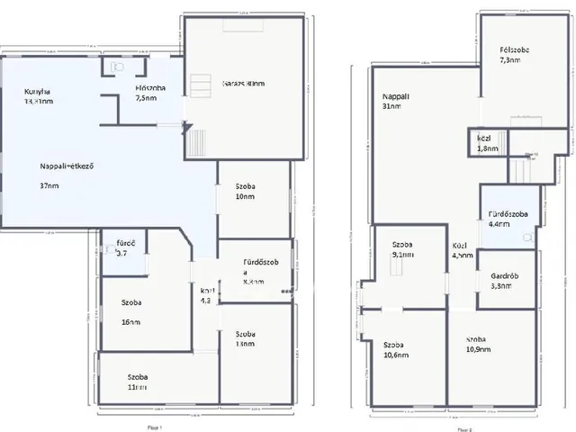
Eladásra kínálok Vértesacsa egyik legkülönlegesebb pontján egy 214 nm-es nettó lakóterületű, GEOTERMIKUS, minden igényt kielégítő családi rezidenciát.
Az ingatlan különlegessége az elhelyezkedése: a falu többi részénél magasabb tengerszint feletti magasságának köszönhetően lenyűgöző panoráma tárul elénk, miközben a falu központja mindössze 10 perces kényelmes sétával elérhető. Elöl és hátul is zöldövezet határolja, így a privát szféra és a természet közelsége garantált, anélkül, hogy le kellene mondania az iskola, óvoda, SPAR vagy az orvosi rendelő közelségéről.
Rezsi: A technológia megoldja:
GEOTERMIKUS hőszivattyú: A jelenleg elérhető legstabilabb és leggazdaságosabb fűtési rendszer.
30 cm-es hőszigetelés + 7 rétegű nyílászárók: Passzívház szintű hőtartás, minimális energiafelhasználás.
Hűtés-fűtés: Padlófűtés és Fan-coil rendszer az ideális klímáért.
Központi légcserélő: Friss, pollenszűrt levegő az egész házban, ablaknyitás nélkül.
Elektromos redőny előkészítés: A teljes kényelem és biztonság érdekében.
Elegancia és Kényelem:
214 nm nettó (290 nm bruttó) terület: Tágas, világos, reprezentatív terek.
Emeleti terasz pergolával: Panorámás pihenőhely a falu és a Vértes dombjai felett.
Bézs elegancia: Modern, letisztult külső megjelenés, amely harmóniát sugároz.
KULCSRAKÉSZ ÁTADÁS: 2026. júliusi használatbavételi engedéllyel.
137500000 Ft
Érd.: Lepsényi Kornél +3670/8840188
Referencia szám: M327376
Tulajdonságok
Családi ház
Új építésű
Geotermikus
2026
A+++
Vedd fel a kapcsolatot a hirdetővel

+36 70 884 0
Hitelkalkulátor
Második évtől
591 737 Ft A 13. hónaptól
7,99% 8,49%
Végig fix Futamidő: 20 év Banki visszahívás
Az OTP Bank munkatársai a neked megfelelő napszakban veszik fel veled a kapcsolatot. A becslés a hirdető által megadott adatokon alapul. A jelen tájékoztatás nem minősül ajánlattételnek és nem teljes körű, az egyes feltételek a hitelbírálat eredményétől függően változhatnak. Kérjük, a részletekről tájékozódj az OTP Bank fiókjaiban vagy az OTP Bank honlapján közzétett vonatkozó Üzletszabályzatokból és Hirdetményekből.
Vedd fel a kapcsolatot a hirdetővel

+36 70 884 0
Vedd fel a kapcsolatot a hirdetővel

+36 70 884 0
UI_KIT.CHARACTER_COUNTER__COMPONENT.ACTUAL_CHARACTER__SR_ONLY UI_KIT.CHARACTER_COUNTER__COMPONENT.MAXIMUM_CHARACTER__SR_ONLY
Hasonló eladó ingatlanok Vértesacsán
Frissítve: 10 hónapja
1
130 millió Ft 607,5 ezer Ft/m²
Eladó családi ház, Vértesacsa, Petőfi Sándor utca 3
Frissítve: 3 napja
15
137,5 millió Ft 642,5 ezer Ft/m²
Eladó családi ház, Vértesacsa

Frissítve: 17 napja
15
137,5 millió Ft 642,5 ezer Ft/m²
Eladó családi ház, Vértesacsa


Fedezd fel a
hasonló házakat!Még további házak Fejér megyében 137,5 M Ft körüli értékben
Tovább a hirdetésekhez Frissítve: 17 napja
15
137,5 millió Ft 642,5 ezer Ft/m²
Eladó családi ház, Vértesacsa

Frissítve: 17 napja
13
137,5 millió Ft 642,5 ezer Ft/m²
Eladó családi ház, Vértesacsa

Frissítve: 17 napja
13
137,5 millió Ft 772,5 ezer Ft/m²
Eladó családi ház, Vértesacsa
