+5 fotó
Hirdetéskód: 8945881
Referenciaszám: 340912
Feltöltve: 2 napja
Veszprém eladó családi ház 4 szobás: 99,5 millió Ft
99,5 millió Ft
1 105 556 Ft/m² *
* A m² árat a hirdető adta meg.
90 m²
455 m²
4 szoba
Eladó Ház, Veszprém 99.500.000 Ft
Eladó új építésű családi ház Gyulafirátóton!
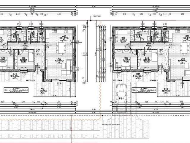
A 910 m²-es telken két különálló családi ház kerül kialakításra saját kerttel.
Az épület 90,37 m2-es, 3 szoba + nappali kialakítású, 14,56 m2-es fedett bejáróval és 17 m2-es terasszal.
Elosztása:
- nappali/konyha/étkező: 36,34 m2
- szoba: 11,1 m2
- szoba: 9,9 m2
- szoba: 9,52 m2
- fürdőszoba: 5,2 m2
- gépészeti helység: 3,6 m2
- közlekedő: 4,95 m2
- előtér: 7,56 m2
- WC: 2,2 m2
---------------------------------------------
- fedett bejáró: 14,56 m2
- terasz: 17 m2
A projekt főbb műszaki paraméterei:
- 30-as tégla falazat
- 15 cm hungarocell szigetelés, fehér színű homlokzati vakolattal.
- monoblokkos, hőszivattyús fűtésrendszer, padlófűtéssel (a használati melegvizet is
előállítja)
- Antracit Leier Toscana cserép héjazat
- hő,- és hangszigetelt, 3 rétegű üvegezéssel ellátott műanyag nyílászárók.
A vételár a kulcsrakész állapotra vonatkozik, és magában foglalja a térkövezett gépkocsibeálló és a murvás behajtó kialakítását is.
Tereprendezést tartalmazza az ár, de a füvesítést és a telek körbe kerítését nem!
Az ingatlan konyhabútor nélkül kerül átadásra!
Bővebb műszaki részletekért, kérem keressen bizalommal!
Kivitelezés várható befejezése: 2026. III. negyedév
Amennyiben hirdetésem felkeltette az érdeklődését, kérem keressen elérhetőségeimen!
Teljeskörű szolgáltatást vállalok a megbízástól a beköltözésig:
- Ingatlanértékesítés
- Ingatlan értékbecslés
- Energetikai tanúsítvány
- Hitelügyintézés, Biztosítás
- Ügyvéd
- Lakberendezés 3D tervezéssel
- Napelemes rendszerek
- Épülettakarítás
- Kivitelezés, felújítás
- Villamos biztonsági felülvizsgálat
Hock Adrienn
Ingatlanszakértő, Ingatlanvagyon értékelő, Lakberendező
Tulajdonságok
Családi ház
1
Új építésű
2026
Nem adta meg a hirdető
Vedd fel a kapcsolatot a hirdetővel
+36 70 705 2
Hitelkalkulátor
Második évtől
428 203 Ft A 13. hónaptól
7,99% 8,49%
Végig fix Futamidő: 20 év Banki visszahívás
Az OTP Bank munkatársai a neked megfelelő napszakban veszik fel veled a kapcsolatot. A becslés a hirdető által megadott adatokon alapul. A jelen tájékoztatás nem minősül ajánlattételnek és nem teljes körű, az egyes feltételek a hitelbírálat eredményétől függően változhatnak. Kérjük, a részletekről tájékozódj az OTP Bank fiókjaiban vagy az OTP Bank honlapján közzétett vonatkozó Üzletszabályzatokból és Hirdetményekből.
Vedd fel a kapcsolatot a hirdetővel
+36 70 705 2
Vedd fel a kapcsolatot a hirdetővel
+36 70 705 2
UI_KIT.CHARACTER_COUNTER__COMPONENT.ACTUAL_CHARACTER__SR_ONLY UI_KIT.CHARACTER_COUNTER__COMPONENT.MAXIMUM_CHARACTER__SR_ONLY
Hasonló eladó ingatlanok Veszprémben
Frissítve: 17 napja
18
99,99 M Ft 909 000 Ft/m²
Eladó családi ház, Veszprém
Frissítve: 1 hónapja
20
92,8 M Ft 501 622 Ft/m²
Eladó sorház, Veszprém
Frissítve: 6 napja
5
94,9 M Ft 1 182 555 Ft/m²
Eladó családi ház, Veszprém


Fedezd fel a
hasonló házakat!Még további házak Veszprémben 99,5 M Ft körüli értékben
Tovább a hirdetésekhez Frissítve: 6 napja
8
105,25 M Ft 1 073 980 Ft/m²
Eladó családi ház, Veszprém

Frissítve: 6 napja
8
96,9 M Ft 969 000 Ft/m²
Eladó családi ház, Veszprém

Frissítve: 1 napja
8
105,25 M Ft 1 073 980 Ft/m²
Eladó családi ház, Veszprém

