

+13 fotó
Hirdetéskód: 8758355
Referenciaszám: M315810
Frissítve: ma
Budapest XX. kerület eladó csúsztatott zsalus lakás 2 szobás: 65 millió Ft
65 millió Ft
1 274 510 Ft/m² *
* A m² árat a hirdető adta meg.
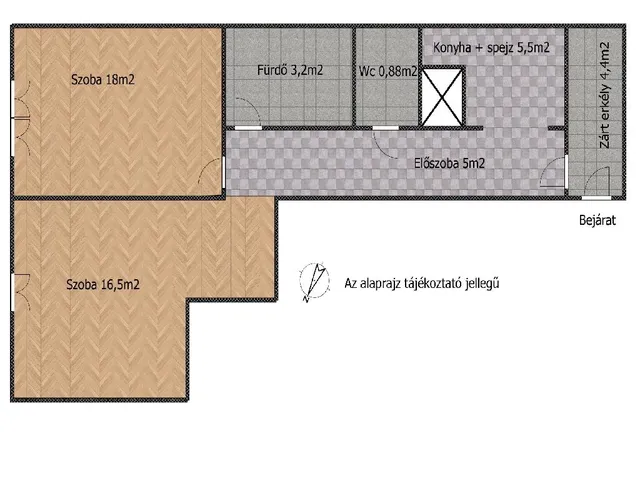
51 m²
2 szoba
Leírás
Eladó 2 szobás, felújított panellakás Budapest XX. kerületének szívében, 9. emelet, remek állapot, kiváló közlekedés!
Budapest XX. kerületének központi részén kínálunk megvételre egy 51 m2-es, 9. emeleti, 2 szobás, összkomfortos lakást, mely jó műszaki állapotban van. így akár azonnal költözhető, apró ráncfelvarrással, tisztasági festéssel.
Felújítások és műszaki jellemzők:
Hőszigetelt, új modern műanyag nyílászárók, és bejárati ajtó, új hideg- és meleg burkolatok a vizes helyiségekben és a szobákban egyaránt.
Alacsony költségű távfűtés, jól szabályozható, kiszámítható:
Közös költség 14.000Ft, Rezsi havi szinten kb 20.000 Ft, télen nyáron.
A lépcsőház rendezett, tiszta, az épületben 2 lift segíti a kényelmes közlekedést.
Környék és elhelyezkedés:
A lakás kiváló elhelyezkedésű:
Bevásárlási lehetőségek (kisboltok, szupermarketek, plázák) a közelben.
Óvoda, iskola, orvosi rendelő, patika gyalogosan elérhető.
Kiváló tömegközlekedés: több busz- és villamosjárat, gyors eljutás a belvárosba.
Autósok számára az autópályák könnyen elérhetők, így agglomerációs kapcsolat is kiváló.
Kinek ajánljuk:
Ez a lakás ideális választás lehet:
fiatal pároknak első lakásként, idősebbeknek, akik jó közlekedésű, mégis nyugodt otthont keresnek.
Befektetőknek, kiadásra, a felújítási igény hiánya miatt azonnal hasznosítható. Az OTP Bankcsoport teljes körű ügyintézéssel áll az eladók és a vevők rendelkezésére! A kínálatunkból választott ingatlan finanszírozásához kedvezményes hitelkonstrukciókat kínálunk. Az adásvételi szerződés megkötéséhez igény szerint megbízható ügyvédi közreműködést biztosítunk és segítséget nyújtunk az adásvételhez kapcsolódó ügyek intézéséhez. Referenciaszám: M315810
Tulajdonságok
Csúsztatott zsalus lakás
Átlagos
Távfűtés
1987
4,4 m²
Nem adta meg a hirdető
Vedd fel a kapcsolatot a hirdetővel
+36 30 660 9
Hitelkalkulátor
Második évtől
279 730 Ft A 13. hónaptól
7,99%
Végig fix Futamidő: 20 év Banki visszahívás
Az OTP Bank munkatársai a neked megfelelő napszakban veszik fel veled a kapcsolatot.Hitelfelvétel esetén akár egy héttel rövidebb lehet az ügyintézés.
Ez az ingatlan a nálunk meglévő adatok alapján azonnali értékbecslésre alkalmas lehet.
A becslés a hirdető által megadott adatokon alapul. A jelen tájékoztatás nem minősül ajánlattételnek és nem teljes körű, az egyes feltételek a hitelbírálat eredményétől függően változhatnak. Kérjük, a részletekről tájékozódj az OTP Bank fiókjaiban vagy az OTP Bank honlapján közzétett vonatkozó Üzletszabályzatokból és Hirdetményekből.
Vedd fel a kapcsolatot a hirdetővel
+36 30 660 9
Vedd fel a kapcsolatot a hirdetővel
+36 30 660 9
UI_KIT.CHARACTER_COUNTER__COMPONENT.REMAINING_SPACE__SR_ONLYUI_KIT.CHARACTER_COUNTER__COMPONENT.MAXIMUM_CHARACTER__SR_ONLY
Hasonló eladó ingatlanok Budapest XX. kerületben
Frissítve: ma

4
67 M Ft 1 030 769 Ft/m²
Eladó lakás, Budapest XX. kerület

Frissítve: 5 napja

4
71 M Ft 1 543 478 Ft/m²
Eladó lakás, Budapest XX. kerület

Frissítve: 5 napja

5
68 M Ft 1 114 754 Ft/m²
Eladó lakás, Budapest XX. kerület


Fedezd fel a
hasonló lakásokat!Még további lakások Budapest XX. kerületben 65 M Ft körüli értékben
Tovább a hirdetésekhez Frissítve: 29 napja

17
65,9 M Ft 1 372 917 Ft/m²
Eladó lakás, Budapest XX. kerület

Frissítve: ma

20
65,9 M Ft 1 372 917 Ft/m²
Eladó lakás, Budapest XX. kerület

Frissítve: ma

20
65,9 M Ft 1 372 917 Ft/m²
Eladó lakás, Budapest XX. kerület


Töltsd fel hirdetésed ingyenesen!
Egyszerű