

 +13 fotó 
Hirdetéskód: 8760053
Referenciaszám: M315810-5068598
 Frissítve: 1 napja 
Budapest XX. kerület eladó csúsztatott zsalus lakás 2 szobás: 65 millió Ft
 65 millió Ft 
 1 274 510 Ft/m² 
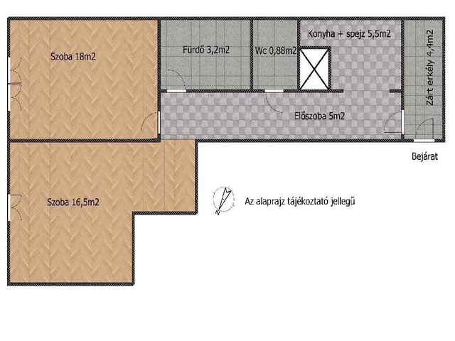
 51 m²  
 2 szoba 
 9. emelet  
Eladó Lakás, Budapest 20. ker.
 Eladó 2 szobás, felújított panellakás Budapest XX. kerületének szívében, 9. emelet, remek állapot, kiváló közlekedés!
Budapest XX. kerületének központi részén kínálunk megvételre egy 51 m2-es, 9. emeleti, 2 szobás, összkomfortos lakást, mely jó műszaki állapotban van. így akár azonnal költözhető, apró ráncfelvarrással, tisztasági festéssel.
Felújítások és műszaki jellemzők:
Hőszigetelt, új modern műanyag nyílászárók, és bejárati ajtó, új hideg- és meleg burkolatok a vizes helyiségekben és a szobákban egyaránt.
Alacsony költségű távfűtés, jól szabályozható, kiszámítható:
Közös költség: 14.000 Ft
Éves rezsi: kb. 20.000 Ft
A lépcsőház rendezett, tiszta, az épületben 2 lift segíti a kényelmes közlekedést.
Környék és elhelyezkedés:
A lakás kiváló elhelyezkedésű:
Bevásárlási lehetőségek (kisboltok, szupermarketek, plázák) a közelben.
Óvoda, iskola, orvosi rendelő, patika gyalogosan elérhető.
Kiváló tömegközlekedés: több busz- és villamosjárat, gyors eljutás a belvárosba.
Autósok számára az autópályák könnyen elérhetők, így agglomerációs kapcsolat is kiváló.
Kinek ajánljuk:
Ez a lakás ideális választás lehet:
fiatal pároknak első lakásként, idősebbeknek, akik jó közlekedésű, mégis nyugodt otthont keresnek.
Befektetőknek, kiadásra, a felújítási igény hiánya miatt azonnal hasznosítható. Az OTP Bankcsoport teljes körű ügyintézéssel áll az eladók és a vevők rendelkezésére! A kínálatunkból választott ingatlan finanszírozásához kedvezményes hitelkonstrukciókat kínálunk. Az adásvételi szerződés megkötéséhez igény szerint megbízható ügyvédi közreműködést biztosítunk és segítséget nyújtunk az adásvételhez kapcsolódó ügyek intézéséhez. Referenciaszám: M315810 
Tulajdonságok
Csúsztatott zsalus lakás
Jó állapotú
Távfűtés
1987
Nem adta meg a hirdető
Vedd fel a kapcsolatot a hirdetővel
Szombay Alfréd OTPip - Szigetszentmiklós Tököli út 19.B - OTP Ingatlanpont Iroda  Az iroda összes hirdetése 
 +36 30 660 9 
Hitelkalkulátor
 Második évtől 
 279 730 Ft  A 13. hónaptól 
 7,99% 
 Végig fix  Futamidő: 20 év Banki visszahívás
Az OTP Bank munkatársai a neked megfelelő napszakban veszik fel veled a kapcsolatot.Hitelfelvétel esetén akár egy héttel rövidebb lehet az ügyintézés.
Ez az ingatlan a nálunk meglévő adatok alapján azonnali értékbecslésre alkalmas lehet.
 A becslés a hirdető által megadott adatokon alapul. A jelen tájékoztatás nem minősül ajánlattételnek és nem teljes körű, az egyes feltételek a hitelbírálat eredményétől függően változhatnak. Kérjük, a részletekről tájékozódj az OTP Bank fiókjaiban vagy az OTP Bank honlapján közzétett vonatkozó Üzletszabályzatokból és Hirdetményekből. 
Vedd fel a kapcsolatot a hirdetővel
Szombay Alfréd OTPip - Szigetszentmiklós Tököli út 19.B - OTP Ingatlanpont Iroda  Az iroda összes hirdetése 
 +36 30 660 9 
Vedd fel a kapcsolatot a hirdetővel
Szombay Alfréd OTPip - Szigetszentmiklós Tököli út 19.B - OTP Ingatlanpont Iroda  Az iroda összes hirdetése 
 +36 30 660 9 
UI_KIT.CHARACTER_COUNTER__COMPONENT.REMAINING_SPACE__SR_ONLYUI_KIT.CHARACTER_COUNTER__COMPONENT.MAXIMUM_CHARACTER__SR_ONLY
Hasonló eladó ingatlanok Budapest XX. kerületben
 Frissítve: 14 napja 

 4 
 71 M Ft  1 543 478 Ft/m² 
 Eladó lakás, Budapest XX. kerület 

 Frissítve: 14 napja 

 5 
 68 M Ft  1 114 754 Ft/m² 
 Eladó lakás, Budapest XX. kerület 

 Frissítve: 8 napja 

 17 
 65,9 M Ft  1 372 917 Ft/m² 
 Eladó lakás, Budapest XX. kerület 


Fedezd fel a 
hasonló lakásokat!Még további lakások Budapest XX. kerületben 65 M Ft körüli értékben
 Tovább a hirdetésekhez  Frissítve: ma 

 20 
 65,9 M Ft  1 372 917 Ft/m² 
 Eladó lakás, Budapest XX. kerület 

 Frissítve: ma 

 20 
 65,9 M Ft  1 372 917 Ft/m² 
 Eladó lakás, Budapest XX. kerület 

 Frissítve: 4 napja 

 16 
 64,9 M Ft  853 947 Ft/m² 
 Eladó lakás, Budapest XX. kerület 


Töltsd fel hirdetésed ingyenesen!
Egyszerű 
