+12 fotó
Hirdetéskód: 8760055
Referenciaszám: M315810-5068428
Frissítve: 25 napja
Budapest XX. kerület eladó csúsztatott zsalus lakás 2 szobás: 65 millió Ft
65 millió Ft
1 274 510 Ft/m²
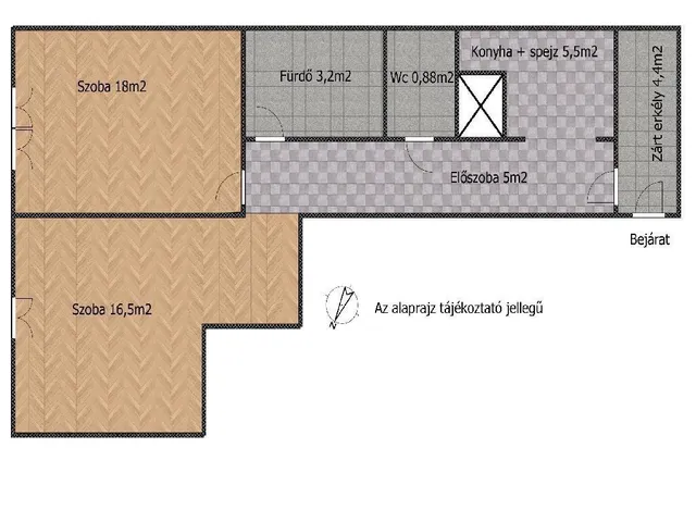
51 m²
2 szoba
9. emelet
Eladó Lakás, Budapest 20. ker.
Eladó 2 szobás, felújított panellakás Budapest XX. kerületének szívében, 9. emelet, remek állapot, kiváló közlekedés!
Budapest XX. kerületének központi részén kínálunk megvételre egy 51 m2-es, 9. emeleti, 2 szobás, összkomfortos lakást, mely jó műszaki állapotban van. így akár azonnal költözhető, apró ráncfelvarrással, tisztasági festéssel.
Felújítások és műszaki jellemzők:
Hőszigetelt, új modern műanyag nyílászárók, és bejárati ajtó, új hideg- és meleg burkolatok a vizes helyiségekben és a szobákban egyaránt.
Alacsony költségű távfűtés, jól szabályozható, kiszámítható:
Közös költség: 14.000 Ft
Éves rezsi: kb. 20.000 Ft
A lépcsőház rendezett, tiszta, az épületben 2 lift segíti a kényelmes közlekedést.
Környék és elhelyezkedés:
A lakás kiváló elhelyezkedésű:
Bevásárlási lehetőségek (kisboltok, szupermarketek, plázák) a közelben.
Óvoda, iskola, orvosi rendelő, patika gyalogosan elérhető.
Kiváló tömegközlekedés: több busz- és villamosjárat, gyors eljutás a belvárosba.
Autósok számára az autópályák könnyen elérhetők, így agglomerációs kapcsolat is kiváló.
Kinek ajánljuk:
Ez a lakás ideális választás lehet:
fiatal pároknak első lakásként, idősebbeknek, akik jó közlekedésű, mégis nyugodt otthont keresnek.
Befektetőknek, kiadásra, a felújítási igény hiánya miatt azonnal hasznosítható. Az OTP Bankcsoport teljes körű ügyintézéssel áll az eladók és a vevők rendelkezésére! A kínálatunkból választott ingatlan finanszírozásához kedvezményes hitelkonstrukciókat kínálunk. Az adásvételi szerződés megkötéséhez igény szerint megbízható ügyvédi közreműködést biztosítunk és segítséget nyújtunk az adásvételhez kapcsolódó ügyek intézéséhez. Referenciaszám: M315810
Tulajdonságok
Csúsztatott zsalus lakás
Jó állapotú
Távfűtés
1987
Nem adta meg a hirdető
Vedd fel a kapcsolatot a hirdetővel
Szilveszter Noémi OTPip - Szigetszentmiklós Tököli út 19.B - OTP Ingatlanpont Iroda Az iroda összes hirdetése
+36 30 439 4
Hitelkalkulátor
Második évtől
279 730 Ft A 13. hónaptól
7,99%
Végig fix Futamidő: 20 év Banki visszahívás
Az OTP Bank munkatársai a neked megfelelő napszakban veszik fel veled a kapcsolatot.Hitelfelvétel esetén akár egy héttel rövidebb lehet az ügyintézés.
Ez az ingatlan a nálunk meglévő adatok alapján azonnali értékbecslésre alkalmas lehet.
A becslés a hirdető által megadott adatokon alapul. A jelen tájékoztatás nem minősül ajánlattételnek és nem teljes körű, az egyes feltételek a hitelbírálat eredményétől függően változhatnak. Kérjük, a részletekről tájékozódj az OTP Bank fiókjaiban vagy az OTP Bank honlapján közzétett vonatkozó Üzletszabályzatokból és Hirdetményekből.
Vedd fel a kapcsolatot a hirdetővel
Szilveszter Noémi OTPip - Szigetszentmiklós Tököli út 19.B - OTP Ingatlanpont Iroda Az iroda összes hirdetése
+36 30 439 4
Vedd fel a kapcsolatot a hirdetővel
Szilveszter Noémi OTPip - Szigetszentmiklós Tököli út 19.B - OTP Ingatlanpont Iroda Az iroda összes hirdetése
+36 30 439 4
UI_KIT.CHARACTER_COUNTER__COMPONENT.REMAINING_SPACE__SR_ONLYUI_KIT.CHARACTER_COUNTER__COMPONENT.MAXIMUM_CHARACTER__SR_ONLY
Hasonló eladó ingatlanok Budapest XX. kerületben
Frissítve: 1 napja
4
71 M Ft 1 543 478 Ft/m²
Eladó lakás, Budapest XX. kerület

Frissítve: 1 napja
4
71 M Ft 1 092 308 Ft/m²
Eladó lakás, Budapest XX. kerület

Frissítve: 1 napja
5
68 M Ft 1 114 754 Ft/m²
Eladó lakás, Budapest XX. kerület


Fedezd fel a
hasonló lakásokat!Még további lakások Budapest XX. kerületben 65 M Ft körüli értékben
Tovább a hirdetésekhez Frissítve: 25 napja
17
65,9 M Ft 1 372 917 Ft/m²
Eladó lakás, Budapest XX. kerület

Frissítve: ma
20
65,9 M Ft 1 372 917 Ft/m²
Eladó lakás, Budapest XX. kerület

Frissítve: ma
20
65,9 M Ft 1 372 917 Ft/m²
Eladó lakás, Budapest XX. kerület


Töltsd fel hirdetésed ingyenesen!
Egyszerű