+3 fotó
Hirdetéskód: 8880576
Frissítve: 5 napja
Debrecen eladó csúsztatott zsalus lakás 2 szobás: 66,99 millió Ft
66,99 millió Ft
1 425 319 Ft/m²
47 m²
2 szoba
földszint
Leírás
ÚJ ÉPÍTÉSŰ, MODERN OTTHONOK A NAGYERDŐ–TÖLGYES ÉS NYULAS TALÁLKOZÁSÁNÁL
– A+ ENERGETIKA, KÜLÖNÁLLÓ ÉPÜLETEK, CSEND ÉS TERMÉSZET 2026. III. NEGYEDÉVI ÁTADÁSSAL
– Egyenesen a kivitelezőtől eladó!
Nem csupán ingatlant, hanem otthont kínálunk az álmaidnak.
Ha olyan otthont keresel, ahol a természet közelsége, a modern technológia és a zavartalan nyugalom egyszerre van jelen, akkor ez az 5 lakásos, különleges kialakítású társasház tökéletes választás.
A projekt 3 különálló épülettömbből áll, ahol minden lakás önálló egységként, közös fal nélkül kapott helyet – így valódi privát szférát biztosít minden lakónak.
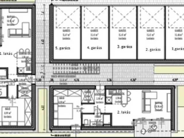
Lakásválaszték
Földszint:
1. Lakás hasznos alapterülete: 42,55nm+ 3,63nm loggia + teljesen szeparált kertkapcsolat vásárolható hozzá, 200nm területtel!
Ár: 67.990.000 Ft – 46m2
2. Lakás hasznos alapterülete: 42,55nm+ 3,63nm loggia, saját, teljesen szeparált kertkapcsolat vásárolható hozzá, 85nm területtel!
Ár: 67.990.000 Ft – 46m2
Emelet:
3. I.emeleti 1. lakás hasznos alapterülete: 41,67nm+ 4,58nm loggia
Ár: 66.990.000 Ft - 46m2
4. I.emeleti 2. lakás hasznos alapterülete: 41,67nm+ 4,58nm loggia
Ár: 66.990.000 Ft – 46m2
5. I.emeleti 3. lakás hasznos alapterülete: 69,00nm+ 4,80nm loggia
Ár: 101.990.000 Ft – 73m2
A lakásokhoz 15,47 nm-es önálló garázs vásárolható hozzá, 14,25MFt áron!
Kényelem és modern technológia
Az ingatlan főbb jellemzői:
A+ energetikai besorolás
– alacsony rezsi, korszerű műszaki megoldásokkal.
Gázcirkó kazán lakásonként, padlófűtéssel a kellemes hőérzetért.
Klíma minden szobában, hogy nyáron is komfortos legyen az otthonod.
Minden lakáshoz saját, lakáson belüli tároló/gardrób tartozik.
A burkolatok és szaniterek még választhatók 6eFt/m2 áron, az építkezés készültségi fokának megfelelően – alakítsd saját ízlésedhez új otthonodat!
Önszellőztető falazati rendszer miatt, nincs hőhíd, ami ezáltal megelőzi a penész kialakulását
36 cm Isospan falazati rendszer (16cm grafitos szigetelés+vasbeton),
Egyenletes hőmérséklet fűtés és hűtés nélkül is
Prémium hő és hangszigetelés
Tűzállóság
beton sávalap,
monolit vasbeton födém,
külső nyílászárók 3 rtg üvegezés, 6 légkamrásműanyag profilban
Miért különleges ez a projekt?
Nincs közös fal a lakások között → olyan, mintha családi házban élnél, társasházi kényelmi előnyökkel.
Zöld, nyugodt környezet, mégis közel mindenhez.
Modern műszaki megoldások, időtálló minőség.
Loggiás kialakítás minden lakásnál – relaxáld magad saját intim kültéri térben.
Ideális választás akár családi otthonnak, vagy befektetésnek is.
Tulajdonságok
Csúsztatott zsalus lakás
2
Új építésű
Hőszivattyú
2026
4 m²
85 m²
A+
Vedd fel a kapcsolatot a hirdetővel
+36 52 234 1
Hitelkalkulátor
Második évtől
288 294 Ft A 13. hónaptól
7,99% 8,49%
Végig fix Futamidő: 20 év Banki visszahívás
Az OTP Bank munkatársai a neked megfelelő napszakban veszik fel veled a kapcsolatot.Hitelfelvétel esetén akár egy héttel rövidebb lehet az ügyintézés.
Ez az ingatlan a nálunk meglévő adatok alapján azonnali értékbecslésre alkalmas lehet.
A becslés a hirdető által megadott adatokon alapul. A jelen tájékoztatás nem minősül ajánlattételnek és nem teljes körű, az egyes feltételek a hitelbírálat eredményétől függően változhatnak. Kérjük, a részletekről tájékozódj az OTP Bank fiókjaiban vagy az OTP Bank honlapján közzétett vonatkozó Üzletszabályzatokból és Hirdetményekből.
Vedd fel a kapcsolatot a hirdetővel
+36 52 234 1
Vedd fel a kapcsolatot a hirdetővel
+36 52 234 1
UI_KIT.CHARACTER_COUNTER__COMPONENT.ACTUAL_CHARACTER__SR_ONLY UI_KIT.CHARACTER_COUNTER__COMPONENT.MAXIMUM_CHARACTER__SR_ONLY
Hasonló eladó ingatlanok Nyulas városrészben
Frissítve: 9 napja
3
72 M Ft 1 500 000 Ft/m²
Eladó lakás, Debrecen, Nyulas

Frissítve: 9 napja
3
72 M Ft 1 500 000 Ft/m²
Eladó lakás, Debrecen, Nyulas

Frissítve: 9 napja
5
72 M Ft 1 500 000 Ft/m²
Eladó lakás, Debrecen, Nyulas


Fedezd fel a
hasonló lakásokat!Még további lakások Debrecenben 66,99 M Ft körüli értékben
Tovább a hirdetésekhez Feltöltve: 2 hónapja
0
68 M Ft 944 444 Ft/m²
Eladó lakás, Debrecen, Tócóskert
Frissítve: 5 napja
13
67,5 M Ft 992 647 Ft/m²
Eladó lakás, Debrecen, Tócóskert

Frissítve: 9 hónapja
1
64,9 M Ft 1 030 159 Ft/m²
Eladó lakás, Debrecen, Tócóvölgyi lakótelep, 247
