+14 fotó
Hirdetéskód: 8964623
Referenciaszám: M324120-5196790
Feltöltve: ma
Kazincbarcika eladó csúsztatott zsalus lakás 1+1 fél szobás: 17,7 millió Ft
17,7 millió Ft
421 429 Ft/m²
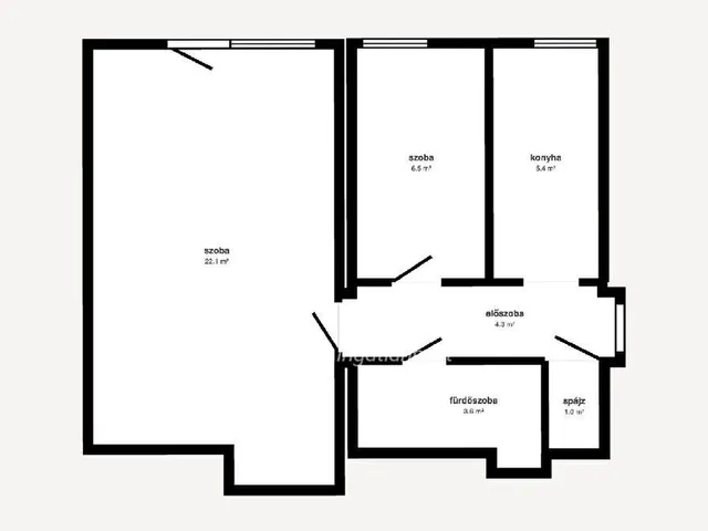
42 m²
1+1 fél szoba
4. emelet
Eladó lakás központban, Kazincbarcika
Kazincbarcika közkedvelt részén, központban, a Pollack Mihály úton eladó egy 42 nm-es, másfél szobás társasházi lakás. Modern műanyag nyílászárókkal és egyedi mérővel felszerelt távhős fűtéssel rendelkezik, így a rezsiköltségek alacsonyak és pontosan tervezhetőek. A belső terek tiszták, rendezettek és azonnal költözhető állapotban vannak, ugyanakkor az ingatlan kiváló alapot nyújt egy saját igény szerinti esztétikai felújításhoz is, amivel valódi álomotthonná vagy értékálló befektetéssé formálható. A környék infrastruktúrája párját ritkító, hiszen a közvetlen közelben megtalálható a Pollack Mihály Általános Iskola, a Barcika Fitness Centrum, a Spar szupermarket, valamint különböző szaküzletek és kényelmi szolgáltatások, mint a Foxpost és Packeta automaták, a parkolás pedig közvetlenül a ház előtt teljesen ingyenes és biztonságos. Ez a tehermentes ingatlan a város egyik legdinamikusabban fejlődő pontján helyezkedik el, ahol a közeli játszóterek, zöldfelületek és a kiváló tömegközlekedési kapcsolatok garantálják a kényelmet, ezért bátran ajánlom fiatal pároknak első lakásnak vagy befektetőknek a könnyű kiadhatóság miatt.
OTP Banki hátterünknek köszönhetően finanszírozási igényekben (pl. Otthon Start Hitelprogram , Babaváró, CSOK Plusz, Lakáshitel, Személyi kölcsön stb.), illetve biztosítások tekintetében is díjmentesen, soron kívüli ügyintézéssel segítjük ügyfeleinket. M324120
Érdeklődni: Czugh Péter 70-3934954
Tulajdonságok
Csúsztatott zsalus lakás
Felújítandó
Távfűtés egyedi méréssel
1973
Nem adta meg a hirdető
Vedd fel a kapcsolatot a hirdetővel
+36 70 393 4
Hitelkalkulátor
Második évtől
76 173 Ft A 13. hónaptól
7,99%
Végig fix Futamidő: 20 év Banki visszahívás
Az OTP Bank munkatársai a neked megfelelő napszakban veszik fel veled a kapcsolatot. A becslés a hirdető által megadott adatokon alapul. A jelen tájékoztatás nem minősül ajánlattételnek és nem teljes körű, az egyes feltételek a hitelbírálat eredményétől függően változhatnak. Kérjük, a részletekről tájékozódj az OTP Bank fiókjaiban vagy az OTP Bank honlapján közzétett vonatkozó Üzletszabályzatokból és Hirdetményekből.
Vedd fel a kapcsolatot a hirdetővel
+36 70 393 4
Vedd fel a kapcsolatot a hirdetővel
+36 70 393 4
UI_KIT.CHARACTER_COUNTER__COMPONENT.ACTUAL_CHARACTER__SR_ONLY UI_KIT.CHARACTER_COUNTER__COMPONENT.MAXIMUM_CHARACTER__SR_ONLY
Hasonló eladó ingatlanok Belváros városrészben
Frissítve: 3 napja
17
17,7 M Ft 421 429 Ft/m²
Eladó lakás, Kazincbarcika, Belváros

Frissítve: 3 napja
5
17 M Ft 298 246 Ft/m²
Eladó lakás, Kazincbarcika

Feltöltve: 1 éve
1
18,2 M Ft 364 000 Ft/m²
Eladó lakás, Kazincbarcika

Fedezd fel a
hasonló lakásokat!Még további lakások Kazincbarcikán 17,7 M Ft körüli értékben
Tovább a hirdetésekhez Frissítve: 21 napja
5
18 M Ft 461 538 Ft/m²
Eladó lakás, Kazincbarcika, Békeváros, Építők útja
Frissítve: 3 napja
17
17,7 M Ft 421 429 Ft/m²
Eladó lakás, Kazincbarcika

Frissítve: 3 napja
6
18 M Ft 300 000 Ft/m²
Eladó lakás, Kazincbarcika

