+14 fotó
Hirdetéskód: 8964776
Referenciaszám: M324120-5197426
Feltöltve: ma
Kazincbarcika eladó csúsztatott zsalus lakás 1+1 fél szobás: 17,7 millió Ft
17,7 millió Ft
421 429 Ft/m²
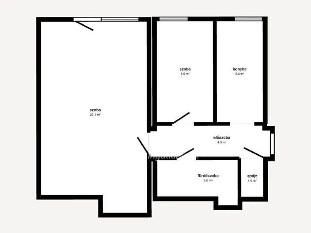
42 m²
1+1 fél szoba
4. emelet
Eladó Lakás, Kazincbarcika
Eladó Kazincbarcika frekventált és közkedvelt részén, a Pollack Mihály úton egy kiváló adottságokkal rendelkező, 42 négyzetméteres, másfél szobás társasházi lakás, amely külön nyíló szobáinak köszönhetően rendkívül praktikus és jól kihasználható életteret biztosít lakói számára. Az ingatlan egyik legnagyobb értéke a felső emeleti elhelyezkedésből adódó lenyűgöző panoráma, amely egyedülálló hangulatot kölcsönöz a mindennapoknak, miközben a lakás műszaki felszereltsége is figyelemre méltó, hiszen modern műanyag nyílászárókkal és egyedi mérővel felszerelt távhővel rendelkezik, így a rezsiköltségek alacsonyak és pontosan tervezhetők. A belső terek tiszták, rendezettek és azonnal költözhető állapotban vannak, ugyanakkor az ingatlan kiváló alapot nyújt egy saját igény szerinti esztétikai felújításhoz is, amivel valódi álomotthonná vagy értékálló befektetéssé formálható. A környék infrastruktúrája párját ritkító, hiszen a közvetlen közelben megtalálható a Pollack Mihály Általános Iskola, a Barcika Fitness Centrum, a Spar szupermarket, valamint különböző szaküzletek és kényelmi szolgáltatások, mint a Foxpost és Packeta automaták, a parkolás pedig közvetlenül a ház előtt teljesen ingyenes és biztonságos. Ez a tehermentes ingatlan a város egyik legdinamikusabban fejlődő pontján helyezkedik el, ahol a közeli játszóterek, zöldfelületek és a kiváló tömegközlekedési kapcsolatok garantálják a kényelmet, ezért bátran ajánlom fiatal pároknak első lakásnak vagy befektetőknek a könnyű kiadhatóság miatt.
OTP Banki hátterünknek köszönhetően finanszírozási igényekben (pl. Otthon Start Hitelprogram , Babaváró, Falusi CSOK, CSOK Plusz, Lakáshitel, Személyi kölcsön stb.), illetve biztosítások tekintetében is díjmentesen, soron kívüli ügyintézéssel segítem ügyfeleim! Kérem tekintse meg, virtuális sétámat is. Hívása során hivatkozzon az M324120 referenciaszámra!
Tulajdonságok
Csúsztatott zsalus lakás
Felújítandó
Távfűtés egyedi méréssel
1973
Nem adta meg a hirdető
Vedd fel a kapcsolatot a hirdetővel
Spéth Gábor György OTPip - Miskolc Szemere Bertalan utca 20 - OTP Ingatlanpont Iroda Az iroda összes hirdetése
+36 20 361 5
Hitelkalkulátor
Második évtől
76 173 Ft A 13. hónaptól
7,99%
Végig fix Futamidő: 20 év Banki visszahívás
Az OTP Bank munkatársai a neked megfelelő napszakban veszik fel veled a kapcsolatot. A becslés a hirdető által megadott adatokon alapul. A jelen tájékoztatás nem minősül ajánlattételnek és nem teljes körű, az egyes feltételek a hitelbírálat eredményétől függően változhatnak. Kérjük, a részletekről tájékozódj az OTP Bank fiókjaiban vagy az OTP Bank honlapján közzétett vonatkozó Üzletszabályzatokból és Hirdetményekből.
Vedd fel a kapcsolatot a hirdetővel
Spéth Gábor György OTPip - Miskolc Szemere Bertalan utca 20 - OTP Ingatlanpont Iroda Az iroda összes hirdetése
+36 20 361 5
Vedd fel a kapcsolatot a hirdetővel
Spéth Gábor György OTPip - Miskolc Szemere Bertalan utca 20 - OTP Ingatlanpont Iroda Az iroda összes hirdetése
+36 20 361 5
UI_KIT.CHARACTER_COUNTER__COMPONENT.ACTUAL_CHARACTER__SR_ONLY UI_KIT.CHARACTER_COUNTER__COMPONENT.MAXIMUM_CHARACTER__SR_ONLY
Hasonló eladó ingatlanok Kazincbarcikán
Frissítve: 3 napja
5
17 M Ft 298 246 Ft/m²
Eladó lakás, Kazincbarcika

Feltöltve: 1 éve
1
18,2 M Ft 364 000 Ft/m²
Eladó lakás, Kazincbarcika
Frissítve: 3 napja
17
17,7 M Ft 421 429 Ft/m²
Eladó lakás, Kazincbarcika


Fedezd fel a
hasonló lakásokat!Még további lakások Kazincbarcikán 17,7 M Ft körüli értékben
Tovább a hirdetésekhez Frissítve: 3 napja
6
18 M Ft 300 000 Ft/m²
Eladó lakás, Kazincbarcika

Frissítve: 3 napja
17
17,7 M Ft 421 429 Ft/m²
Eladó lakás, Kazincbarcika

Feltöltve: 2 napja
17
17,7 M Ft 421 429 Ft/m²
Eladó lakás, Kazincbarcika

