+9 fotó 
Hirdetéskód: 8770232
Referenciaszám: M314721-5068018
 Feltöltve: 3 napja 
Miskolc eladó csúsztatott zsalus lakás 1+1 fél szobás: 23,9 millió Ft
 23,9 millió Ft 
 682 857 Ft/m² 
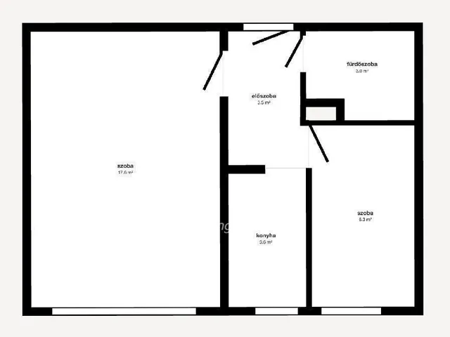
 35 m²  
 1+1 fél szoba 
Eladó Lakás, Miskolc
 Befektetők, első lakásvásárlók figyelem!!! Miskolc-Komlóstető zöldövezeti részén, a Szeder utcában egy 1,5 szobás jó állapotú magasföldszinti lakás eladó.  Az ingatlanon az elmúlt időszakban az alábbi felújítások történtek:  MEGA  biztonsági, hő és hangszigetelő ajtó került beépítésre a beltéri ajtókkal egyetemben. A nyílászárók korszerű redőnnyel felszerelt műanyag ablakokra lettek cserélve. Az ingatlan fűtése házközponti egyedi mérővel, míg a melegvízről villanybojler gondoskodik.  A felújítások közül a villany-, valamint a vízvezetékek sem maradtak ki. A lakásban jelenleg bérlő lakik, aki a továbbiakban szívesen maradna, így befektetésnek is tökéletesen alkalmas. Az ingatlan központi helyen van, buszmegálló, bolt, iskola, óvoda, játszótér mind pár perc sétára találhatók. Alacsony rezsivel fenntartható lakás, így befektetőknek, első otthonukat vásárlóknak egyaránt kiváló választás.  Az ingatlan megfelel az Otthon Start 3%-os hitel feltételeinek. Jöjjön és tekintsük meg együtt, akár hétvégén is! 
OTP Banki hátterünknek köszönhetően finanszírozási igényekben (pl. Otthon Start Hitelprogram, Babaváró, Falusi CSOK, CSOK Plusz, Lakáshitel, Személyi kölcsön stb.), illetve biztosítások tekintetében is díjmentesen, soron kívüli ügyintézéssel segítem ügyfeleim! Az adásvételhez igény esetén ügyvédi hátteret biztosítunk. Hívása során hivatkozzon az M314721-es referenciaszámra. 
Tulajdonságok
1980
Nem adta meg a hirdető
Vedd fel a kapcsolatot a hirdetővel
Nagy Krisztina OTPip - Miskolc Szemere Bertalan utca 20 - OTP Ingatlanpont Iroda  Az iroda összes hirdetése 
 +36 70 886 0 
Hitelkalkulátor
 Második évtől 
 102 855 Ft  A 13. hónaptól 
 7,99% 
 Végig fix  Futamidő: 20 év Banki visszahívás
Az OTP Bank munkatársai a neked megfelelő napszakban veszik fel veled a kapcsolatot.Hitelfelvétel esetén akár egy héttel rövidebb lehet az ügyintézés.
Ez az ingatlan a nálunk meglévő adatok alapján azonnali értékbecslésre alkalmas lehet.
 A becslés a hirdető által megadott adatokon alapul. A jelen tájékoztatás nem minősül ajánlattételnek és nem teljes körű, az egyes feltételek a hitelbírálat eredményétől függően változhatnak. Kérjük, a részletekről tájékozódj az OTP Bank fiókjaiban vagy az OTP Bank honlapján közzétett vonatkozó Üzletszabályzatokból és Hirdetményekből. 
Vedd fel a kapcsolatot a hirdetővel
Nagy Krisztina OTPip - Miskolc Szemere Bertalan utca 20 - OTP Ingatlanpont Iroda  Az iroda összes hirdetése 
 +36 70 886 0 
Vedd fel a kapcsolatot a hirdetővel
Nagy Krisztina OTPip - Miskolc Szemere Bertalan utca 20 - OTP Ingatlanpont Iroda  Az iroda összes hirdetése 
 +36 70 886 0 
UI_KIT.CHARACTER_COUNTER__COMPONENT.REMAINING_SPACE__SR_ONLYUI_KIT.CHARACTER_COUNTER__COMPONENT.MAXIMUM_CHARACTER__SR_ONLY
Hasonló eladó ingatlanok Miskolcon
 Frissítve: 11 hónapja 
 1 
 23,5 M Ft  443 396 Ft/m² 
 Eladó lakás, Miskolc, Komlóstető 
 Frissítve: 11 napja 
 15 
 25,4 M Ft  498 040 Ft/m² 
 Eladó lakás, Miskolc 

 Frissítve: 5 napja 
 15 
 25,4 M Ft  498 039 Ft/m² 
 Eladó lakás, Miskolc 


Fedezd fel a 
hasonló lakásokat!Még további lakások Miskolcon 23,9 M Ft körüli értékben
 Tovább a hirdetésekhez  Frissítve: 5 napja 
 15 
 25,4 M Ft  498 039 Ft/m² 
 Eladó lakás, Miskolc 

 Frissítve: 26 napja 
 15 
 25,4 M Ft  498 039 Ft/m² 
 Eladó lakás, Miskolc 

 Frissítve: 26 napja 
 15 
 25,4 M Ft  498 039 Ft/m² 
 Eladó lakás, Miskolc 


Töltsd fel hirdetésed ingyenesen!
Egyszerű