+9 fotó
Hirdetéskód: 8775875
Referenciaszám: M314721-5078678
Feltöltve: ma
Miskolc eladó csúsztatott zsalus lakás 1+1 fél szobás: 23,9 millió Ft
23,9 millió Ft
682 857 Ft/m²
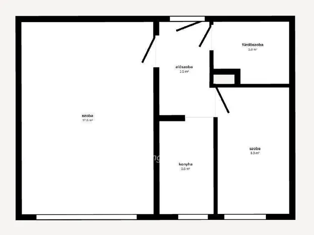
35 m²
1+1 fél szoba
földszint
Eladó Miskolc-Komlóstetőn magasföldszinti lakás!
Befektetők, első lakásvásárlók figyelem!!! Miskolc-Komlóstető zöldövezeti részén, a Szeder utcában egy 1,5 szobás jó állapotú magasföldszinti lakás eladó. Az ingatlanon az elmúlt időszakban az alábbi felújítások történtek: MEGA biztonsági, hő és hangszigetelő ajtó került beépítésre a beltéri ajtókkal egyetemben. A nyílászárók korszerű redőnnyel felszerelt műanyag ablakokra lettek cserélve. Az ingatlanban a fűtés, valamint a vízmelegítés is házközponti. A lakásban jelenleg bérlő lakik, aki a továbbiakban szívesen maradna, így befektetésnek is tökéletesen alkalmas. Az ingatlan központi helyen van, buszmegálló, bolt, iskola, óvoda, játszótér mind pár perc sétára találhatók. Alacsony rezsivel fenntartható lakás, így befektetőknek, első otthonukat vásárlóknak egyaránt kiváló választás. Az ingatlan megfelel az Otthon Start 3%-os hitel feltételeinek. Jöjjön és tekintsük meg együtt, akár hétvégén is!
OTP Banki hátterünknek köszönhetően finanszírozási igényekben (pl. Otthon Start Hitelprogram, Babaváró, Falusi CSOK, CSOK Plusz, Lakáshitel, Személyi kölcsön stb.), illetve biztosítások tekintetében is díjmentesen, soron kívüli ügyintézéssel segítem ügyfeleim! Az adásvételhez igény esetén ügyvédi hátteret biztosítunk. Hívása során hivatkozzon az M314721-es referenciaszámra.
Referencia szám: M314721
Tulajdonságok
Csúsztatott zsalus lakás
Jó állapotú
Házközponti fűtés egyedi méréssel
1980
Nem adta meg a hirdető
Vedd fel a kapcsolatot a hirdetővel
Antal-Dusza Hajnalka OTPip - Miskolc Corvin utca 1-3 - OTP Ingatlanpont Iroda Az iroda összes hirdetése
+36 30 120 1
Hitelkalkulátor
Második évtől
102 855 Ft A 13. hónaptól
7,99%
Végig fix Futamidő: 20 év Banki visszahívás
Az OTP Bank munkatársai a neked megfelelő napszakban veszik fel veled a kapcsolatot.Hitelfelvétel esetén akár egy héttel rövidebb lehet az ügyintézés.
Ez az ingatlan a nálunk meglévő adatok alapján azonnali értékbecslésre alkalmas lehet.
A becslés a hirdető által megadott adatokon alapul. A jelen tájékoztatás nem minősül ajánlattételnek és nem teljes körű, az egyes feltételek a hitelbírálat eredményétől függően változhatnak. Kérjük, a részletekről tájékozódj az OTP Bank fiókjaiban vagy az OTP Bank honlapján közzétett vonatkozó Üzletszabályzatokból és Hirdetményekből.
Vedd fel a kapcsolatot a hirdetővel
Antal-Dusza Hajnalka OTPip - Miskolc Corvin utca 1-3 - OTP Ingatlanpont Iroda Az iroda összes hirdetése
+36 30 120 1
Vedd fel a kapcsolatot a hirdetővel
Antal-Dusza Hajnalka OTPip - Miskolc Corvin utca 1-3 - OTP Ingatlanpont Iroda Az iroda összes hirdetése
+36 30 120 1
UI_KIT.CHARACTER_COUNTER__COMPONENT.REMAINING_SPACE__SR_ONLYUI_KIT.CHARACTER_COUNTER__COMPONENT.MAXIMUM_CHARACTER__SR_ONLY
Hasonló eladó ingatlanok Miskolcon
Frissítve: 1 napja
18
22,99 M Ft 605 000 Ft/m²
Eladó lakás, Miskolc

Frissítve: 3 napja
13
22,5 M Ft 642 857 Ft/m²
Eladó lakás, Miskolc

Frissítve: 8 napja
19
25,7 M Ft 503 922 Ft/m²
Eladó lakás, Miskolc


Fedezd fel a
hasonló lakásokat!Még további lakások Miskolcon 23,9 M Ft körüli értékben
Tovább a hirdetésekhez Frissítve: 6 hónapja
1
22 M Ft 423 077 Ft/m²
Eladó lakás, Miskolc
Frissítve: 1 napja
15
24,9 M Ft 508 163 Ft/m²
Eladó lakás, Miskolc

Feltöltve: 5 hónapja
0
25,5 M Ft 463 636 Ft/m²
Eladó lakás, Miskolc

Töltsd fel hirdetésed ingyenesen!
Egyszerű