+10 fotó
Hirdetéskód: 8924970
Feltöltve: 1 hónapja
Lovasberény eladó egyéb ház 1 szobás: 17,9 millió Ft
17,9 millió Ft
325,5 ezer Ft/m²
55 m²
1333 m²
1 szoba
Lovasberény szőlőhegyen eladó ház, nyaraló! Vezetékes víz, villany, emésztő van!
Lovasberény szőlőhegyen eladó ház, nyaraló!
Vezetékes víz, villany, emésztő van!
Terület:
- 1331 m2-es, körbekerítve, nagykapuval ellátva;
- kb. 28 méter széles és 48 méter hosszú, téglalap alakú;
- füves és fás, enyhén emelkedik a telek vége;
- kert csap;
- kerti WC;
- kifüggesztéses zártkert, besorolása: gyümölcsös és gazdasági épület;
- megközelíthetősége: kb. 200 méterre az aszfaltos úttól.
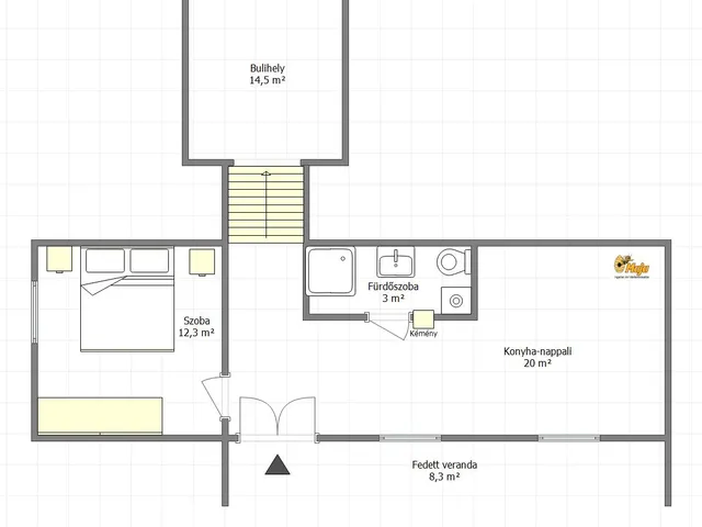
Épület:
- présház 28 m2-es, jól alakítható, 8 m2-es veranda;
- mellé épült tároló 12 m2, és egy pince 14,5 m2-es;
- vegyes falazat (tégla, vályog)
- felújítandó állapotú, masszív szerkezettel;
- kéménnyel rendelkezik;
- épületben víz, villany;
- teteje lemez;
- fafödém;
- nagy betonozott emésztő.
Ára: 17,9 millió Ft
Érdeklődni: Kardos Marianna 06 30 394 9247
Tulajdonságok
Egyéb ház
1
Felújítandó
Egyéb kazán
8 m²
Nem adta meg a hirdető
Vedd fel a kapcsolatot a hirdetővel
+36 30 394 9
Hitelkalkulátor
Második évtől
77 033 Ft A 13. hónaptól
7,99%
Végig fix Futamidő: 20 év Banki visszahívás
Az OTP Bank munkatársai a neked megfelelő napszakban veszik fel veled a kapcsolatot. A becslés a hirdető által megadott adatokon alapul. A jelen tájékoztatás nem minősül ajánlattételnek és nem teljes körű, az egyes feltételek a hitelbírálat eredményétől függően változhatnak. Kérjük, a részletekről tájékozódj az OTP Bank fiókjaiban vagy az OTP Bank honlapján közzétett vonatkozó Üzletszabályzatokból és Hirdetményekből.
Vedd fel a kapcsolatot a hirdetővel
+36 30 394 9
Vedd fel a kapcsolatot a hirdetővel
+36 30 394 9
UI_KIT.CHARACTER_COUNTER__COMPONENT.ACTUAL_CHARACTER__SR_ONLY UI_KIT.CHARACTER_COUNTER__COMPONENT.MAXIMUM_CHARACTER__SR_ONLY
Hasonló eladó ingatlanok Lovasberényen
Frissítve: 1 éve
1
17,5 millió Ft 307 ezer Ft/m²
Eladó családi ház, Dunaújváros, Szent István utca
Frissítve: 6 hónapja
6
18,85 millió Ft 232,7 ezer Ft/m²
Eladó családi ház, Sárszentmihály, Kossuth utca 30
Frissítve: ma
13
18,1 millió Ft 603,3 ezer Ft/m²
Eladó családi ház, Bicske, Zártkert


Fedezd fel a
hasonló házakat!Még további házak Fejér megyében 17,9 M Ft körüli értékben
Tovább a hirdetésekhez Frissítve: 7 napja
15
18,5 millió Ft 264,3 ezer Ft/m²
Eladó családi ház, Mány

Frissítve: 6 hónapja
8
19,25 millió Ft 218,8 ezer Ft/m²
Eladó családi ház, Sárszentmihály, Fő utca 287
Frissítve: 7 napja
16
19 millió Ft 271,4 ezer Ft/m²
Eladó családi ház, Kisláng

