+17 fotó
Hirdetéskód: 8844568
Referenciaszám: 31991
Frissítve: 10 napja
Miskolc eladó egyéb ház 10 szobás: 160 millió Ft
160 millió Ft
271 647 Ft/m²
589 m²
782 m²
10 szoba
Megvásárlásra kínálok Lillafüred Kapujában fekvő, páratlan természeti panorámával rendelkező, 20 éves múltra visszatekintő hotelt!
Megvásárlásra kínálok Lillafüred Kapujában, páratlan természeti panorámával rendelkező, 20 éves múltra visszatekintő hotelt!
A turizmus ipara folyamatos növekedést mutat, és a szálláshelyek iránti kereslet kiemelkedő. Ennek tükrében ajánljuk figyelmébe ezt a számos lehetőséget magában rejtő hotelt, amely több mint 20 éve sikeresen működik.
Az ingatlan ideális helyszínt biztosít rendezvények lebonyolítására, csodálatos, látványban gazdag környezet, mind a kikapcsolódni vágyok, mind a természetimádók igényeit is kielégíti.
Az ingatlan némi anyagi ráfordítással és kellő fantáziával akár egy négy lakásos társasházzá is alakítható, ezáltal jelentős lehetőségeket kínál a befektetők számára is.
A hotel megközelíthetősége tömegközlekedéssel, illetve személyautóval is kiváló.
A környezet természeti szépsége és a közelben található turisztikai attrakciók folyamatosan vonzzák a látogatókat, így a szálláshely iránti kereslet stabil. Közvetlen környezetében található: Majális Park, Vadaspark, Szeleta Park, Hámori-tó, Palotaszálló, Vízesés, Kalandpark, Libegő, Kisvasút.
Paraméterei:
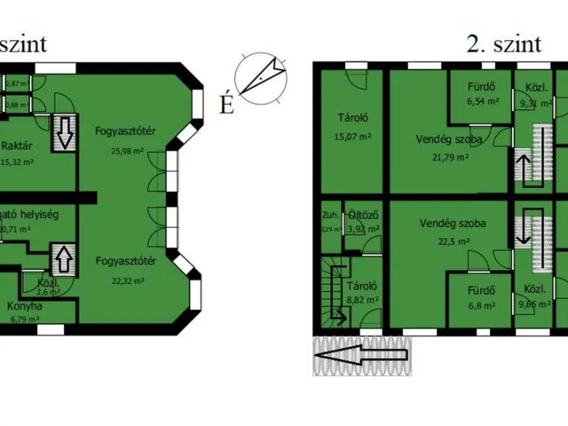
Méret: 589 négyzetméter
Szobák száma: 10 szoba
Konyha: Az ingatlan saját étteremmel rendelkezik, amely teljeskörű ellátást tud biztosítani vendégei számára.
Állapot: Az ingatlan korának megfelelő, átlagos, állapotban van, amely lehetőséget ad leendő tulajdonosa számára, hogy saját ízlésére szabva felfrissítse és korszerűsítse azt.
Épület szerkezete: szigetelt, tégla épület
Fűtés: házközponti fűtés, radiátoros hőleadókkal
Nyílászárók: A fa nyílászáróknak köszönhetően, természetközeli érzetet nyújt az idelátogatóknak.
Az ingatlan részét képezi továbbá egy kerti tó is, illetve grillezési és bográcsozási lehetőség is biztosított.
A hotel különböző szobatípusokkal várja vendégeit, amelyek barátságos és kényelmes környezetet kínálnak. Az étterem nem csupán a szállóvendégek számára biztosít étkezési lehetőséget, hanem helyszínt ad családi rendezvények, esküvők és céges események lebonyolítására is.
A szálloda stabil vendégkörrel rendelkezik, amelynek alappillére a visszatérő vendégkör.
Ez a hotel nem csupán egy ingatlan, hanem egy stabil működésű, sikeresen üzemeltetett vállalkozás, amely jelentős hozamot kínál a befektetők számára. A hosszú távú tapasztalat és a friss ötletek figyelembevételével a hotel újra a turizmus vonzerejévé válhat, vagy akár társasházként is hasznosítható.
További információkért és megtekintésért keresse fel irodánkat!
Tulajdonságok
Egyéb ház
Átlagos
1980
Nem adta meg a hirdető
Vedd fel a kapcsolatot a hirdetővel
+36 20 462 0
Hitelkalkulátor
Második évtől
688 567 Ft A 13. hónaptól
7,99%
Végig fix Futamidő: 20 év Banki visszahívás
Az OTP Bank munkatársai a neked megfelelő napszakban veszik fel veled a kapcsolatot. A becslés a hirdető által megadott adatokon alapul. A jelen tájékoztatás nem minősül ajánlattételnek és nem teljes körű, az egyes feltételek a hitelbírálat eredményétől függően változhatnak. Kérjük, a részletekről tájékozódj az OTP Bank fiókjaiban vagy az OTP Bank honlapján közzétett vonatkozó Üzletszabályzatokból és Hirdetményekből.
Vedd fel a kapcsolatot a hirdetővel
+36 20 462 0
Vedd fel a kapcsolatot a hirdetővel
+36 20 462 0
UI_KIT.CHARACTER_COUNTER__COMPONENT.ACTUAL_CHARACTER__SR_ONLY UI_KIT.CHARACTER_COUNTER__COMPONENT.MAXIMUM_CHARACTER__SR_ONLY
Hasonló eladó ingatlanok Miskolcon
Frissítve: 10 napja
20
154,9 M Ft 1 032 667 Ft/m²
Eladó családi ház, Miskolc

Frissítve: 10 napja
20
149 M Ft 440 828 Ft/m²
Eladó családi ház, Miskolc

Frissítve: 10 napja
20
149 M Ft 440 828 Ft/m²
Eladó családi ház, Miskolc


Fedezd fel a
hasonló házakat!Még további házak Miskolcon 160 M Ft körüli értékben
Tovább a hirdetésekhez Frissítve: 10 napja
20
149 M Ft 440 828 Ft/m²
Eladó családi ház, Miskolc

Frissítve: 10 napja
20
149 M Ft 440 828 Ft/m²
Eladó családi ház, Miskolc

Frissítve: ma
20
149 M Ft 440 828 Ft/m²
Eladó családi ház, Miskolc


