Hirdetéskód: 8959321
Feltöltve: 1 napja
Szentendre eladó egyéb ház 3+1 fél szobás: 129,9 millió Ft
129,9 millió Ft
1 325 510 Ft/m²
98 m²
322 m²
3+1 fél szoba
MEGÚJULÓ HÁZ SZENTENDRÉN A VASÚTI VILLASORON 129,9M Ft-ÉRT
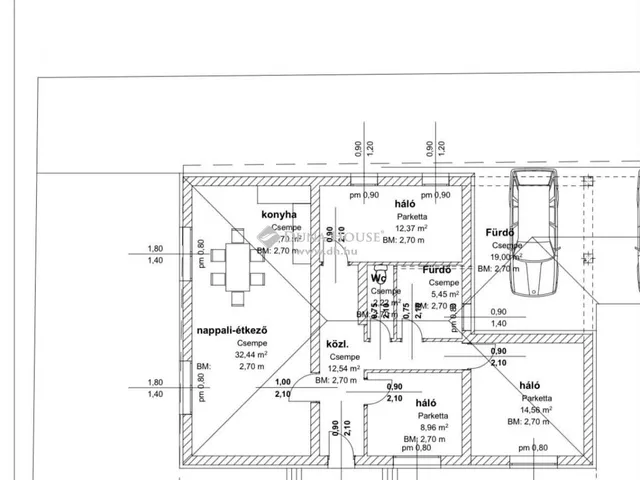
Szentendre központi részéhez közel, de már csendes, családi házas övezetben kínálunk megvételre egy 1970-es években épült, most azonban teljesen megújuló családi házat.
Az épület új tetőszerkezetet kap, a stabil tégla falak és a beton alap megtartásával minden egyéb a mai kornak megfelelő, minőségi anyagokból újraéled.
Új műanyag nyílászárók kerülnek beépítésre, a fűtésről gáz cirkó kazán gondoskodik majd. A belső terek is teljesen átalakulnak:
- amerikai konyhás nappali
- 3 külön bejáratú szoba
- külön fürdőszoba és wc
Az udvar is megszépül. Az autóbeálló térkövezve lesz. Az telekhatárt új, modern, gondozásmentes kerítés jelzi majd.
A telek 322nm, a ház 98nm.
Kulcsrakész állapotban kerül átadásra, melynek ára: 129.900.000ft
Az ingatlan iroda besorolású, ezért a lakossági 3%-os hitel és egyéb, kedvező kamatozású hitel sem igényelhető a megvásárláshoz. Lakossági piaci hitellel vagy készpénzzel megvásárolható!
De! A vállalkozások erre az ingatlanra megigényelhetik a 3%-os hitelt!
Kiválóan alkalmas a ház
- irodának
- vállalkozás telephelyének
- orvosi rendelőnek
- és ...
Tervezett átdadás: 2026. augusztus 31.
Érdemes mielőbb a vásárlás mellett dönteni, hogy a felújítás már saját elképzelés alapján történjen! ( Burkolatok, szaniterek, színek kiválasztása, extrák átbeszélése, ...)
Érdeklődés esetén a pontos műszaki tartalom rendelkezésre áll.
További részletekért várom hívását! A kivitelezés RUGALMAS!
Tulajdonságok
Egyéb ház
1
Új építésű
Gázkazán
Nem adta meg a hirdető
Vedd fel a kapcsolatot a hirdetővel
+36 20 393 3
Hitelkalkulátor
Második évtől
559 030 Ft A 13. hónaptól
7,99% 8,49%
Végig fix Futamidő: 20 év Banki visszahívás
Az OTP Bank munkatársai a neked megfelelő napszakban veszik fel veled a kapcsolatot. A becslés a hirdető által megadott adatokon alapul. A jelen tájékoztatás nem minősül ajánlattételnek és nem teljes körű, az egyes feltételek a hitelbírálat eredményétől függően változhatnak. Kérjük, a részletekről tájékozódj az OTP Bank fiókjaiban vagy az OTP Bank honlapján közzétett vonatkozó Üzletszabályzatokból és Hirdetményekből.
Vedd fel a kapcsolatot a hirdetővel
+36 20 393 3
Vedd fel a kapcsolatot a hirdetővel
+36 20 393 3
UI_KIT.CHARACTER_COUNTER__COMPONENT.ACTUAL_CHARACTER__SR_ONLY UI_KIT.CHARACTER_COUNTER__COMPONENT.MAXIMUM_CHARACTER__SR_ONLY
Hasonló eladó ingatlanok Szentendrén
Frissítve: 16 napja
20
119,9 M Ft 1 090 000 Ft/m²
Eladó családi ház, Szentendre

Frissítve: 6 napja
14
119 M Ft 1 487 500 Ft/m²
Eladó családi ház, Szentendre

Frissítve: 16 napja
6
132 M Ft 1 142 857 Ft/m²
Eladó családi ház, Szentendre, Barackvirág utca


Fedezd fel a
hasonló házakat!Még további házak Szentendrén 129,9 M Ft körüli értékben
Tovább a hirdetésekhez Frissítve: ma
6
132 M Ft 1 147 826 Ft/m²
Eladó családi ház, Szentendre

Frissítve: ma
20
119,9 M Ft 1 090 000 Ft/m²
Eladó családi ház, Szentendre

Frissítve: ma
6
132 M Ft 1 147 826 Ft/m²
Eladó családi ház, Szentendre

