+17 fotó
Hirdetéskód: 8789450
Referenciaszám: M317186-5086537
Feltöltve: 1 napja
Budapest I. kerület eladó egyéb lakás 3+1 fél szobás: 135 millió Ft
135 millió Ft
1 588 235 Ft/m²
85 m²
3+1 fél szoba
földszint
Eladó Lakás, Budapest 1. ker.
Családbarát otthon a Kis-Gellérthegyen, tágas, világos lakás zöld környezetben!
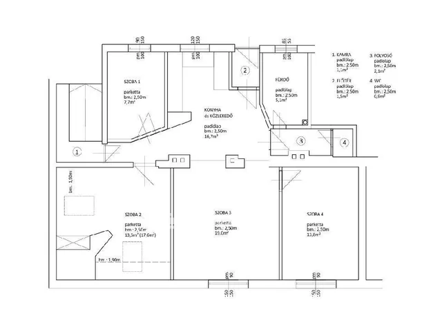
Budán, az 1. kerület egyik legkedveltebb részén, a Kis-Gellérthegyen, az Avar utca csendes, vonatzajtól távol eső szakaszán eladásra kínálunk egy 81 m2-es, 2. emeleti, nappali + 2,5 szobás lakást egy 10 lakásos, téglaépítésű, barátságos, lift nélküli társasházban.
A 1900-as évek elején épült ház egy nyugodt mellékutcában található, mégis minden fontos szolgáltatás karnyújtásnyira elérhető. Ideális választás azoknak a családoknak, akik szeretnék a városi élet kényelmét, de csendben és biztonságban élni.
A lakás a társasház legfelső emeletén helyezkedik el, ahol mindössze két lakás található, így a nyugalom garantált.
A praktikus, családbarát elosztás lehetővé teszi, hogy minden családtagnak meglegyen a saját kis kuckója:
Külön előszoba fogadja az érkezőket
A közlekedő beépített szekrényei és polcai rengeteg tárolóhelyet biztosítanak.
A 19 m2-es tágas nappali és étkező központi közösségi térként szolgál, ahol a család együtt töltheti az estéket.
Három külön nyíló szoba (17,6 m2, 13,8 m2 és 7,7 m2), ideális gyerekszobának, hálónak vagy dolgozószobának.
Világos, gépesített konyha, amely félig nyitott az étkező felé, így főzés közben is kapcsolatban maradhatunk a családdal.
Fürdő és WC külön helyiségben, ami kényelmes a mindennapokban.
Külön kamra is rendelkezésre áll, ahol a háztartási eszközök is elférnek
A lakás rendkívül világos, a kelet-nyugati tájolásnak köszönhetően egész nap természetes fényben úszik.
Minden helyiség klímával felszerelt, a riasztórendszer pedig extra biztonságot nyújt.
A lakás jó állapotú, az utolsó nagyobb felújítás 2014-ben történt, azóta kisebb korszerűsítések is zajlottak.
A fűtésről és melegvízről egy új, 2025-ben beépített kondenzációs kazán gondoskodik.
A lakáshoz külön tároló is tartozik, a parkolás pedig könnyen megoldható az utcán, szinte mindig van szabad hely.
Amit a családok igazán értékelni fognak:
Tágas, világos terek és átgondolt elrendezés
Ritkaságnak számító 4 szobás kialakítás ebben a környékben
Csendes, barátságos társasház
Kiváló parkolási lehetőség
Zöld, biztonságos környék, ahol a gyerekek is szabadon mozoghatnak
Az elhelyezkedés tökéletes családoknak:
a Budai Vár, a Tabán és a Gellért-hegy mindössze pár perc séta, a MOM Park, a Gesztenyés kert vagy a Citadella gyalog 10 percen belül elérhető.
A közelben több óvoda, iskola és játszótér is található, a környék kiváló közlekedéssel bír ? a Móricz Zsigmond körtér, a Déli pályaudvar és a Belváros 10?15 percen belül megközelíthető.
Ez az otthon ideális választás mindazoknak, akik szeretnének családbarát környezetben, mégis a város szívében élni, egy tágas, világos és szerethető lakásban.
Tulajdonságok
Egyéb lakás
Jó állapotú
Gázkazán
1985
D
Vedd fel a kapcsolatot a hirdetővel
Juhász Emese OTPip - Budapest IX. kerület Üllői út 21 - OTP Ingatlanpont Iroda Az iroda összes hirdetése
+36 70 369 0
Hitelkalkulátor
Második évtől
580 978 Ft A 13. hónaptól
7,99%
Végig fix Futamidő: 20 év Banki visszahívás
Az OTP Bank munkatársai a neked megfelelő napszakban veszik fel veled a kapcsolatot.Hitelfelvétel esetén akár egy héttel rövidebb lehet az ügyintézés.
Ez az ingatlan a nálunk meglévő adatok alapján azonnali értékbecslésre alkalmas lehet.
A becslés a hirdető által megadott adatokon alapul. A jelen tájékoztatás nem minősül ajánlattételnek és nem teljes körű, az egyes feltételek a hitelbírálat eredményétől függően változhatnak. Kérjük, a részletekről tájékozódj az OTP Bank fiókjaiban vagy az OTP Bank honlapján közzétett vonatkozó Üzletszabályzatokból és Hirdetményekből.
Vedd fel a kapcsolatot a hirdetővel
Juhász Emese OTPip - Budapest IX. kerület Üllői út 21 - OTP Ingatlanpont Iroda Az iroda összes hirdetése
+36 70 369 0
Vedd fel a kapcsolatot a hirdetővel
Juhász Emese OTPip - Budapest IX. kerület Üllői út 21 - OTP Ingatlanpont Iroda Az iroda összes hirdetése
+36 70 369 0
UI_KIT.CHARACTER_COUNTER__COMPONENT.REMAINING_SPACE__SR_ONLYUI_KIT.CHARACTER_COUNTER__COMPONENT.MAXIMUM_CHARACTER__SR_ONLY
Hasonló eladó ingatlanok Budapest I. kerületben
Frissítve: 13 napja
17
133,5 M Ft 1 500 000 Ft/m²
Eladó lakás, Budapest I. kerület
Frissítve: 23 napja
20
124,9 M Ft 1 541 975 Ft/m²
Eladó lakás, Budapest I. kerület

Frissítve: 19 napja
20
125 M Ft
Eladó lakás, Budapest I. kerület, Batthyány utca


Fedezd fel a
hasonló lakásokat!Még további lakások Budapest I. kerületben 135 M Ft körüli értékben
Tovább a hirdetésekhez Frissítve: 25 napja
19
135 M Ft 1 588 235 Ft/m²
Eladó lakás, Budapest I. kerület

Frissítve: 25 napja
19
135 M Ft 1 588 235 Ft/m²
Eladó lakás, Budapest I. kerület

Frissítve: 25 napja
19
135 M Ft 1 588 235 Ft/m²
Eladó lakás, Budapest I. kerület


Töltsd fel hirdetésed ingyenesen!
Egyszerű
