+13 fotó
Hirdetéskód: 8842998
Referenciaszám: 977889
Frissítve: 12 napja
Budapest II. kerület eladó egyéb lakás 2+1 fél szobás: 154,9 millió Ft
154,9 millió Ft
1,84 millió Ft/m²
84 m²
2+1 fél szoba
JÓL ALAKÍTHATÓ NYUGALMAT ÁRASZTÓ OTTHON A VÁROS SZÍVÉBEN!
Eladásra kínálunk egy patinás, Bauhaus jellegű társasház legfelső emeleti, kiemelkedő adottságú lakását a II. kerület frekventált, mégis nyugodt részén.
Lokáció:
Néhány perc sétával elérhető a Margit híd, a Széll Kálmán tér, a Mammut Bevásárlóközpont, a Fény utcai piac, a Millenáris Park, valamint a Margit-sziget.
A Kút utca csendes, átmenő forgalomtól szinte mentes, miközben minden fontos szolgáltatás pár száz méteren belül megtalálható, ideális választás a városi életet kedvelők számára.
Az épület:
A kora 1940-es években épült, lapostetős, hőszigetelt, karbantartott, 12 lakásos társasház nagy, zöld belső kerttel és frissen felújított, világos lépcsőházzal rendelkezik. A ház 4 szintes (FSZ + MFSZ + 2 emelet), lift nincs.
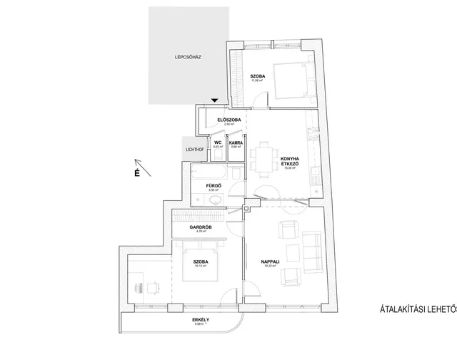
A lakás főbb jellemzői:
2. emeleti, 84 m² (tulajdoni lap szerint)
2 + ½ szoba + hall, erkély
Fürdőszoba és külön WC, ablakos kamra
2,9 m belmagasság, tágas, világos terek
Két irányba tájolt:
konyha és félszoba: kelet–északkelet, kertre néz
szobák és erkély: dél–délnyugat, utcára és fás kertre néz
A lakás 20 éve átfogó felújításon esett át, jelenleg igény szerint felújítandó, tisztasági festés után akár azonnal költözhető.
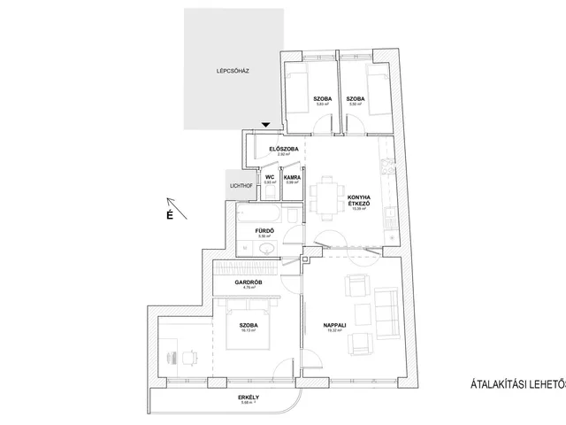
Átalakíthatóság:
A konyha az étkező részhez való helyezésével (amerikai konyha létrehozásával) a lakás 3 szobássá vagy 2 + 2 félszobássá alakítható, így nagyobb család számára is kiváló lehetőség.
Műszaki adatok és extrák:
Házközponti fűtés radiátorokkal
Melegvíz: villanybojler
Gáz bevezetve
Zárható közös kerékpártároló
6 m²-es saját pincerekesz
Költségek, parkolás:
Közös költség: 39 000 Ft/hó (fűtés és vízdíj benne)
Parkolás az utcán, fizetős övezetben
Amennyiben felkeltettem érdeklődését, kérem keressen!
+36 70 614 5282
Tulajdonságok
Egyéb lakás
Átlagos
1940
Nem adta meg a hirdető
Vedd fel a kapcsolatot a hirdetővel
+36 70 614 5
Hitelkalkulátor
Második évtől
666 619 Ft A 13. hónaptól
7,99%
Végig fix Futamidő: 20 év Banki visszahívás
Az OTP Bank munkatársai a neked megfelelő napszakban veszik fel veled a kapcsolatot.Hitelfelvétel esetén akár egy héttel rövidebb lehet az ügyintézés.
Ez az ingatlan a nálunk meglévő adatok alapján azonnali értékbecslésre alkalmas lehet.
A becslés a hirdető által megadott adatokon alapul. A jelen tájékoztatás nem minősül ajánlattételnek és nem teljes körű, az egyes feltételek a hitelbírálat eredményétől függően változhatnak. Kérjük, a részletekről tájékozódj az OTP Bank fiókjaiban vagy az OTP Bank honlapján közzétett vonatkozó Üzletszabályzatokból és Hirdetményekből.
Vedd fel a kapcsolatot a hirdetővel
+36 70 614 5
Vedd fel a kapcsolatot a hirdetővel
+36 70 614 5
UI_KIT.CHARACTER_COUNTER__COMPONENT.ACTUAL_CHARACTER__SR_ONLY UI_KIT.CHARACTER_COUNTER__COMPONENT.MAXIMUM_CHARACTER__SR_ONLY
Hasonló eladó ingatlanok Budapest II. kerületben
Frissítve: ma
8
162 millió Ft 1,5 millió Ft/m²
Eladó lakás, Budapest II. kerület

Frissítve: 5 napja
17
164 millió Ft 1,98 millió Ft/m²
Eladó lakás, Budapest II. kerület

Frissítve: ma
17
164 millió Ft 1,98 millió Ft/m²
Eladó lakás, Budapest II. kerület


Fedezd fel a
hasonló lakásokat!Még további lakások Budapest II. kerületben 154,9 M Ft körüli értékben
Tovább a hirdetésekhez Frissítve: 5 napja
8
162 millió Ft 1,5 millió Ft/m²
Eladó lakás, Budapest II. kerület

Frissítve: 27 napja
17
145 millió Ft 1,61 millió Ft/m²
Eladó lakás, Budapest II. kerület
Frissítve: 5 napja
20
158 millió Ft 1,36 millió Ft/m²
Eladó lakás, Budapest II. kerület

