+9 fotó
Hirdetéskód: 8937413
Referenciaszám: 1060673
Feltöltve: ma
Budapest XIII. kerület eladó egyéb lakás 1 szobás: 57,9 millió Ft
57,9 millió Ft
1 564 865 Ft/m²
37 m²
1 szoba
Felújított, galériás stúdiólakás Újlipótváros szívében!
Újlipótvárosban, a Visegrádi utcában eladó egy 37 m²-es, fekvő galériával kialakított, felújított, klimatizált, teljesen bútorozott és gépesített stúdiólakás, egy rendezett, liftes, téglaépítésű társasház 4. emeletén.
Az ingatlan belső udvarra néz, így csendes, mégis városi környezetet biztosít, a galériás kialakításnak köszönhetően jól kihasznált, élhető terekkel rendelkezik, gázcirkó fűtéssel felszerelt, a teljes berendezés a vételár részét képezi, ezért azonnal költözhető vagy bérbe adható.
A lakás egy négyemeletes, karbantartott társasházban található, fenntartási költségei kedvezőek, a közös költség 11.000 Ft havonta, a rezsi fogyasztás szerint alakul, átlagosan körülbelül 15.000 Ft.
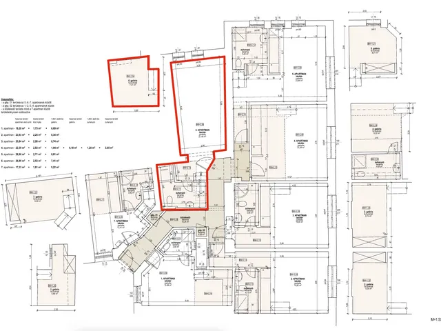
Az ingatlan tehermentes, osztatlan közös tulajdon, ügyvédi megosztással, két nagyobb lakásból kialakított, összesen hétlakásos kialakítás részeként jött létre, az alaprajzon pirossal jelölve egyértelműen beazonosítható, hogy pontosan melyik lakás kerül értékesítésre.
Elhelyezkedése kiváló, a közelben metró, villamos, a Nyugati pályaudvar, bevásárlóközpont, parkok és piac is rövid sétával elérhető, a parkolás az utcán, fizetős övezetben megoldott.
Elsősorban azoknak ajánlom, akik biztos helyen szeretnék tudni a pénzüket, akár befektetésnek, akár saját otthonként képzelik el ezt az ingatlant.
Tulajdonságok
Egyéb lakás
Nem adta meg a hirdető
Vedd fel a kapcsolatot a hirdetővel
+36 20 400 6
Hitelkalkulátor
Második évtől
249 175 Ft A 13. hónaptól
7,99%
Végig fix Futamidő: 20 év Banki visszahívás
Az OTP Bank munkatársai a neked megfelelő napszakban veszik fel veled a kapcsolatot.Hitelfelvétel esetén akár egy héttel rövidebb lehet az ügyintézés.
Ez az ingatlan a nálunk meglévő adatok alapján azonnali értékbecslésre alkalmas lehet.
A becslés a hirdető által megadott adatokon alapul. A jelen tájékoztatás nem minősül ajánlattételnek és nem teljes körű, az egyes feltételek a hitelbírálat eredményétől függően változhatnak. Kérjük, a részletekről tájékozódj az OTP Bank fiókjaiban vagy az OTP Bank honlapján közzétett vonatkozó Üzletszabályzatokból és Hirdetményekből.
Vedd fel a kapcsolatot a hirdetővel
+36 20 400 6
Vedd fel a kapcsolatot a hirdetővel
+36 20 400 6
UI_KIT.CHARACTER_COUNTER__COMPONENT.ACTUAL_CHARACTER__SR_ONLY UI_KIT.CHARACTER_COUNTER__COMPONENT.MAXIMUM_CHARACTER__SR_ONLY
Hasonló eladó ingatlanok Budapest XIII. kerületben
Frissítve: 3 napja
6
57 M Ft 2 192 308 Ft/m²
Eladó lakás, Budapest XIII. kerület

Frissítve: 1 hónapja
5
River Life
60,35 M Ft 1 828 788 Ft/m²
Eladó lakás, Budapest XIII. kerület, Népfürdő utca 47.
Frissítve: 5 hónapja
1
62 M Ft 1 409 091 Ft/m²
Eladó lakás, Budapest XIII. kerület

Fedezd fel a
hasonló lakásokat!Még további lakások Budapest XIII. kerületben 57,9 M Ft körüli értékben
Tovább a hirdetésekhez Frissítve: 1 hónapja
5
River Life
59,09 M Ft 1 906 129 Ft/m²
Eladó lakás, Budapest XIII. kerület, Népfürdő utca 47.
Frissítve: 4 napja
12
61,9 M Ft 1 085 965 Ft/m²
Eladó lakás, Budapest XIII. kerület

Frissítve: 6 napja
10
60,35 M Ft 1 885 938 Ft/m²
Eladó lakás, Budapest XIII. kerület

