

+18 fotó
Hirdetéskód: 8546146
Referenciaszám: M303738-4942539
Frissítve: 5 napja
Budapest XXII. kerület eladó egyéb lakás 4 szobás: 85 millió Ft
85 millió Ft
739 130 Ft/m²
115 m²
4 szoba
Eladó Lakás, Budapest 22. ker.
FÖLDSZINTI LAKÁS KERTESHÁZBAN ELADÓ DUNATELEPEN
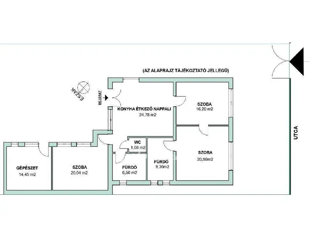
Eladásra kínálunk egy frissen felújított 115 m2-es amerikai konyhás nappali + három teljes értékű szobás, két fürdőszobás, külön wc-vel ellátott földszinti lakást.
A fűtést automata váltókapcsolóval ellátott gáz cirko-, vagy vegyestüzelésű kazán biztosítja egy külön helyiségben, mely háztartási helyiségként is használható.
Az épület szigetelt, a lakást 2005-ben teljeskörűen felújították, azóta is folyamatosan karbantartják.
A kert a három lakás közös használatában áll. Találunk benne kerti sütögetőt kemencével, bringa tárolót, kertibútor tárolót, fedett kiülőt, kis játszóteret mászókával. Igény szerint saját használatú kertrész is kialakítható, ez megegyezés kérdése. A használati megosztási szerződés elkészítése még folyamatban van, alakítható.
A parkolás a telken belül, és az utcán is lehetséges. Az utca zsákutca, átmenő forgalomtól mentes.
Az utca végén Duna part, Kis-Háros sziget, természetvédelmi terület, lovarda, kajak-kenu egyesület és SUP kölcsönzési lehetőség!
Az ingatlan közvetlen közelében helyezkedik el a Dunapart ABC, mely élelmiszer kiskereskedés. 800m-re pedig két élelmiszer áruházlánci egység is elérhető (ALDI, LIDL). Bevásárló központ két kilométerre található, ahol a közműszolgáltatók, telefontársaságok kirendeltségein kívül posta, gyógyszertár, fodrász, fitnesz-terem, benzinkút is megtalálható (CAMPONA Bevásárló Központ)
Háziorvosi rendelő, bölcsőde, óvoda, iskola, 1 km távolságra.
A közelben éjszakai és nappali BKV járatok, agglomeráció felé közlekedő távolsági buszok megállói, és vasútállomás is található, a part mentén kerékpárút vezet, melyen szintén elérhetjük a belvárost.
Igény szerint hitelügyintézést, ügyvédi közreműködést biztosítunk, és segítséget nyújtunk az adásvétel folyamatának intézéséhez.
Referencia szám: M303738
Tulajdonságok
1970
Nem adta meg a hirdető
Vedd fel a kapcsolatot a hirdetővel
Zatykó Krisztina OTPip - Budapest XI. kerület Bartók Béla út 62 - OTP Ingatlanpont Iroda Az iroda összes hirdetése
+36 70 237 2
Hitelkalkulátor
Második évtől
365 801 Ft A 13. hónaptól
7,99%
Végig fix Futamidő: 20 év Banki visszahívás
Az OTP Bank munkatársai a neked megfelelő napszakban veszik fel veled a kapcsolatot.Hitelfelvétel esetén akár egy héttel rövidebb lehet az ügyintézés.
Ez az ingatlan a nálunk meglévő adatok alapján azonnali értékbecslésre alkalmas lehet.
A becslés a hirdető által megadott adatokon alapul. A jelen tájékoztatás nem minősül ajánlattételnek és nem teljes körű, az egyes feltételek a hitelbírálat eredményétől függően változhatnak. Kérjük, a részletekről tájékozódj az OTP Bank fiókjaiban vagy az OTP Bank honlapján közzétett vonatkozó Üzletszabályzatokból és Hirdetményekből.
Vedd fel a kapcsolatot a hirdetővel
Zatykó Krisztina OTPip - Budapest XI. kerület Bartók Béla út 62 - OTP Ingatlanpont Iroda Az iroda összes hirdetése
+36 70 237 2
Vedd fel a kapcsolatot a hirdetővel
Zatykó Krisztina OTPip - Budapest XI. kerület Bartók Béla út 62 - OTP Ingatlanpont Iroda Az iroda összes hirdetése
+36 70 237 2
UI_KIT.CHARACTER_COUNTER__COMPONENT.REMAINING_SPACE__SR_ONLYUI_KIT.CHARACTER_COUNTER__COMPONENT.MAXIMUM_CHARACTER__SR_ONLY
Hasonló eladó ingatlanok Budapest XXII. kerületben
Frissítve: 6 napja

19
85 M Ft 739 131 Ft/m²
Eladó lakás, Budapest XXII. kerület

Frissítve: 2 napja

16
85 M Ft 739 130 Ft/m²
Eladó lakás, Budapest XXII. kerület

Frissítve: 2 napja

16
85 M Ft 739 130 Ft/m²
Eladó lakás, Budapest XXII. kerület


Fedezd fel a
hasonló lakásokat!Még további lakások Budapesten 85 M Ft körüli értékben
Tovább a hirdetésekhez Frissítve: 18 napja

19
83,9 M Ft 1 233 824 Ft/m²
Eladó lakás, Budapest XXII. kerület

Frissítve: 24 napja

18
79,9 M Ft 1 331 667 Ft/m²
Eladó lakás, Budapest XXII. kerület, Terv utca

Feltöltve: 17 napja

18
79,9 M Ft 1 331 667 Ft/m²
Eladó lakás, Budapest XXII. kerület


Töltsd fel hirdetésed ingyenesen!
Egyszerű