+15 fotó
Hirdetéskód: 8896404
Referenciaszám: M320150-5153729
Frissítve: 1 hónapja
Nyíregyháza eladó egyéb lakás 2 szobás: 44,9 millió Ft
44,9 millió Ft
816,4 ezer Ft/m²
55 m²
2 szoba
2. emelet
Eladó Lakás, Nyíregyháza
Eladó erkélyes, 2 szobás lakás Nyíregyházán , kiváló elhelyezkedéssel!
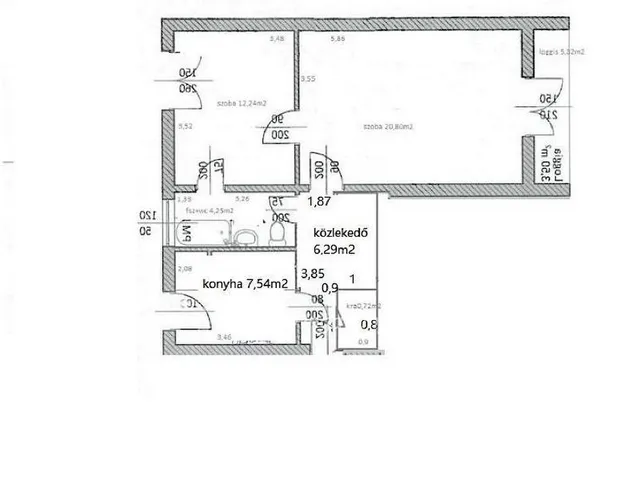
Szabolcs-Szatmár-Bereg vármegye székhelyén, Nyíregyházán eladó egy szigetelt, 5 emeletes társasház 2. emeletén egy 55 m2-es, kiváló elosztású lakás.
Az ingatlan 1980-ban épült, 2 szobás, erkélyes , műanyag nyílászárókkal és redőnnyel felszerelt. A lakás különlegessége, hogy a kisebb szobába a fürdőszobából is nyílik ajtó, ami ritka és praktikus megoldás.
Az elhelyezkedés rendkívül előnyös: Nyíregyháza mindkét egyeteme rövid sétatávolságra található, így saját részre és befektetésnek is ideális.
A társasház rendezett lépcsőházzal rendelkezik. A környéken az állandó bejelentett lakosok számára az éves parkolási díj mindössze 6 000 Ft.
Az ingatlan alkalmas Otthon Start Hitel igénybevételére, így kiváló lehetőség első lakásvásárlók számára is.
Főbb jellemzők:
55 m2 , 2 szoba + erkély második emelet, szigetelt társasház, műanyag nyílászárók, redőnnyel felszerelve.
Az egyetemek közvetlen közelében található az épület.
Amennyiben a hirdetés felkeltette érdeklődését, várom megtisztelő hívását.
Tulajdonságok
Egyéb lakás
Átlagos
Távfűtés
1980
Nem adta meg a hirdető
Vedd fel a kapcsolatot a hirdetővel

+36 70 561 8
Hitelkalkulátor
Második évtől
193 229 Ft A 13. hónaptól
7,99%
Végig fix Futamidő: 20 év Banki visszahívás
Az OTP Bank munkatársai a neked megfelelő napszakban veszik fel veled a kapcsolatot.Hitelfelvétel esetén akár egy héttel rövidebb lehet az ügyintézés.
Ez az ingatlan a nálunk meglévő adatok alapján azonnali értékbecslésre alkalmas lehet.
A becslés a hirdető által megadott adatokon alapul. A jelen tájékoztatás nem minősül ajánlattételnek és nem teljes körű, az egyes feltételek a hitelbírálat eredményétől függően változhatnak. Kérjük, a részletekről tájékozódj az OTP Bank fiókjaiban vagy az OTP Bank honlapján közzétett vonatkozó Üzletszabályzatokból és Hirdetményekből.
Vedd fel a kapcsolatot a hirdetővel

+36 70 561 8
Vedd fel a kapcsolatot a hirdetővel

+36 70 561 8
UI_KIT.CHARACTER_COUNTER__COMPONENT.ACTUAL_CHARACTER__SR_ONLY UI_KIT.CHARACTER_COUNTER__COMPONENT.MAXIMUM_CHARACTER__SR_ONLY
Hasonló eladó ingatlanok Nyíregyházán
Frissítve: 4 napja
13
43,5 millió Ft 550,6 ezer Ft/m²
Eladó lakás, Nyíregyháza
Frissítve: 4 napja
15
43,5 millió Ft 550,6 ezer Ft/m²
Eladó lakás, Nyíregyháza
Frissítve: 4 napja
11
45,85 millió Ft 1,12 millió Ft/m²
Eladó lakás, Nyíregyháza

Fedezd fel a
hasonló lakásokat!Még további lakások Nyíregyházán 44,9 M Ft körüli értékben
Tovább a hirdetésekhez Frissítve: 4 napja
11
43,8 millió Ft 826,4 ezer Ft/m²
Eladó lakás, Nyíregyháza
Frissítve: 4 napja
7
43,5 millió Ft 550,6 ezer Ft/m²
Eladó lakás, Nyíregyháza
Frissítve: 18 napja
20
47 millió Ft 886,8 ezer Ft/m²
Eladó lakás, Nyíregyháza
