

+18 fotó
Hirdetéskód: 8748149
Referenciaszám: M314991-5061729
Feltöltve: ma
Pécs eladó egyéb lakás 2 szobás: 47,9 millió Ft
47,9 millió Ft
958 000 Ft/m²
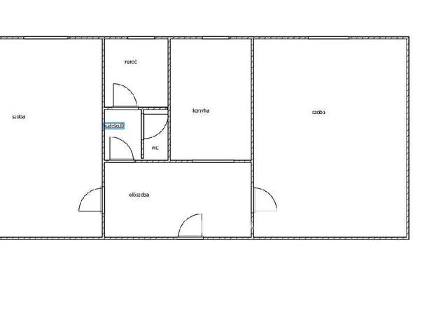
50 m²
2 szoba
2. emelet
Eladó Lakás, Pécs
Eladó Pécs-Uránvárosban egy 2 szobás, második emeleti, 50 nm alapterületű lakás. A 3 emeletes társasház csúsztatott zsalus technológiával készült, mind a ház fala, mind a tető szigetelt, így kedvező hőkomfort és energiatakarékosság biztosított.
A lakás műanyag hőszigetelt ablakokkal rendelkezik, redőnnyel és szúnyoghálóval felszerelt, a bejárati ajtó széles, műanyag, a belső ajtók pedig egyedi gyártású fa ajtók. A fürdőszobában zuhanyzó található, a WC külön helyiségben van. Mindkét szobában klímaberendezés segíti a kellemes hőmérsékletet. A fűtés távfűtéses, egyedi mérővel mérve, így a rezsi jobb tervezhetősége adott.
Parkolási lehetőség ingyenes az épület környékén. A környék infrastruktúrája kiváló: iskola, óvoda, orvosi rendelő, boltok, üzletek és buszmegálló pár perc sétával elérhetők, ami nagyban megkönnyíti a mindennapi életet.
Amennyiben felkeltette érdeklődését ez az otthon, szívesen adok további információt vagy egyeztetünk megtekintési időpontot.
Otthon Start fix 3 %. hitel! OTP Bankhitelhez kapcsolódóan az OTP Ingatlanpont irodánk teljes körű tájékoztatást és ügyintézést vállal.
47900000 Ft
Referencia szám: M314991
Tulajdonságok
Egyéb lakás
Jó állapotú
Távfűtés egyedi méréssel
1965
Nem adta meg a hirdető
Vedd fel a kapcsolatot a hirdetővel
+36 70 393 4
Hitelkalkulátor
Második évtől
206 140 Ft A 13. hónaptól
7,99%
Végig fix Futamidő: 20 év Banki visszahívás
Az OTP Bank munkatársai a neked megfelelő napszakban veszik fel veled a kapcsolatot.Hitelfelvétel esetén akár egy héttel rövidebb lehet az ügyintézés.
Ez az ingatlan a nálunk meglévő adatok alapján azonnali értékbecslésre alkalmas lehet.
A becslés a hirdető által megadott adatokon alapul. A jelen tájékoztatás nem minősül ajánlattételnek és nem teljes körű, az egyes feltételek a hitelbírálat eredményétől függően változhatnak. Kérjük, a részletekről tájékozódj az OTP Bank fiókjaiban vagy az OTP Bank honlapján közzétett vonatkozó Üzletszabályzatokból és Hirdetményekből.
Vedd fel a kapcsolatot a hirdetővel
+36 70 393 4
Vedd fel a kapcsolatot a hirdetővel
+36 70 393 4
UI_KIT.CHARACTER_COUNTER__COMPONENT.REMAINING_SPACE__SR_ONLYUI_KIT.CHARACTER_COUNTER__COMPONENT.MAXIMUM_CHARACTER__SR_ONLY
Hasonló eladó ingatlanok Uránváros városrészben
Feltöltve: 5 hónapja

1
47 M Ft 903 846 Ft/m²
Eladó lakás, Pécs, Uránváros
Frissítve: 14 napja

20
46,9 M Ft 868 519 Ft/m²
Eladó lakás, Pécs, Uránváros, Dombay János utca
Frissítve: 14 napja

20
46,9 M Ft 868 519 Ft/m²
Eladó lakás, Pécs, Uránváros, Dombay János utca

Fedezd fel a
hasonló lakásokat!Még további lakások Pécsett 47,9 M Ft körüli értékben
Tovább a hirdetésekhez Frissítve: 6 napja

12
51,8 M Ft 959 259 Ft/m²
Eladó lakás, Pécs, Uránváros, Ybl Miklós utca
Feltöltve: 1 hónapja

1
47,9 M Ft 887 037 Ft/m²
Eladó lakás, Pécs, Uránváros
Feltöltve: 1 hónapja

11
49,9 M Ft 1 061 702 Ft/m²
Eladó lakás, Pécs, Uránváros


Töltsd fel hirdetésed ingyenesen!
Egyszerű