+17 fotó
Hirdetéskód: 8839798
Referenciaszám: M318830-5115359
Feltöltve: 1 napja
Diósd eladó fejlesztési terület 541 m² alapterületű: 240 millió Ft
240 millió Ft
443 623 Ft/m²
541 m²
1509 m²
Eladó Ipari terület, Diósd
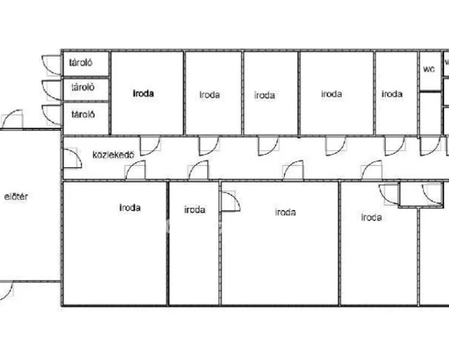
*** Csak az OTP Ingatlanpont kínálatában! *** Diósdon a 7-es főúttól pár percre, csendes, családias környezetben egy 1509 m2-es sík, körbekerített telken, 541 m2-es 2002. évi építésű, újszerű; családi házjellegű, belső két szintes épület ELADÓ!
Az ingatlan jó műszaki, esztétikai állapotú. Az épület különálló mérőórákkal felszerelt. Az épület hátsó részében egy 28 m2-es fűtött garázs áll rendelkezésre, valamint az épület mögött a telken, 6-8 helyes parkoló helyezkedik el, továbbá a telek előtt az utcán 3 autó is meg tud állni. Két fő épületrészből álló ingatlant kínálunk megvételre az M0 autóút közelségében, mégis csendes helyen. 450 m2-es kétszintes középfolyosós főépületből és 91 m2-es szociális és garázs blokkból áll. 2 kazán látja el az ingatlan fűtését. 3x80 A áram van bekötve.
Két éve nincs használatban, laborként üzemelt. Az ingatlan könnyen más funkcióra is átalakítható, jól hasznosítható. Az ingatlan jelenleg üres. Ár 240.000.000.-Ft+áfa.
Az OTP Bankcsoport teljes körű ügyintézéssel áll az eladók és a vevők rendelkezésére! A kínálatunkból választott ingatlan finanszírozásához kedvezményes hitel konstrukciókat kínálunk. Legújabb szolgáltatásként ajánlom minden kedves ügyfelem részére az OTP Bank által közvetített Babaváró, CSOK, vagy egyéb kölcsönök intézését. Az adásvételi szerződés megkötéséhez igény szerint megbízható ügyvédi közreműködést biztosítunk, és segítséget nyújtunk az adásvételhez kapcsolódó ügyek intézéséhez. Akár hétvégén is hívható vagyok! Amennyiben igényli, kérem küldjön sms-t és szívesen visszahívom!
Referencia szám: M318830-ZE
Tulajdonságok
Fejlesztési terület
2002
Nem adta meg a hirdető
Vedd fel a kapcsolatot a hirdetővel
Petkov Gyöngyi Katalin OTPip - Cegléd Népkőr utca 6 - OTP Ingatlanpont Iroda Az iroda összes hirdetése
+36 20 985 2
Vedd fel a kapcsolatot a hirdetővel
Petkov Gyöngyi Katalin OTPip - Cegléd Népkőr utca 6 - OTP Ingatlanpont Iroda Az iroda összes hirdetése
+36 20 985 2
Vedd fel a kapcsolatot a hirdetővel
Petkov Gyöngyi Katalin OTPip - Cegléd Népkőr utca 6 - OTP Ingatlanpont Iroda Az iroda összes hirdetése
+36 20 985 2
UI_KIT.CHARACTER_COUNTER__COMPONENT.REMAINING_SPACE__SR_ONLYUI_KIT.CHARACTER_COUNTER__COMPONENT.MAXIMUM_CHARACTER__SR_ONLY
Hasonló eladó ingatlanok Diósdon
Frissítve: 15 napja
20
240 M Ft 443 623 Ft/m²
Eladó kereskedelmi és ipari ingatlan, Diósd

Frissítve: 16 napja
5
229,9 M Ft 260 362 Ft/m²
Eladó kereskedelmi és ipari ingatlan, Tárnok

Frissítve: 19 napja
7
250 M Ft 833 333 Ft/m²
Eladó kereskedelmi és ipari ingatlan, Szigethalom


Fedezd fel a
hasonló hirdetéseket!Még további kereskedelmi és ipari ingatlanok Pest megyében 240 M Ft körüli értékben
Tovább a hirdetésekhez Frissítve: 15 napja
7
224 M Ft 280 000 Ft/m²
Eladó kereskedelmi és ipari ingatlan, Gyál
Frissítve: 16 napja
20
260 M Ft 866 667 Ft/m²
Eladó kereskedelmi és ipari ingatlan, Törökbálint

Frissítve: 1 hónapja
16
227 M Ft 72 547 Ft/m²
Eladó kereskedelmi és ipari ingatlan, Tura
