

+18 fotó
Hirdetéskód: 8720504
Referenciaszám: M307499-5044535
Frissítve: 4 napja
Tóalmás eladó fejlesztési terület 290 m² alapterületű: 34,9 millió Ft
34,9 millió Ft
120 345 Ft/m²
290 m²
2638 m²
Eladó Ipari terület, Tóalmás
IPARI TELEPHELY ELADÓ - TÓALMÁS, STRATÉGIAI ELHELYEZKEDÉS, AZONNALI HASZNOSÍTHATÓSÁG!
Tóalmás határán, kiváló közlekedési kapcsolatokkal kínálok megvételre egy 2638 m2 alapterületű ipari telket, rajta 290,2 m2 felépítménnyel, mely összetételét és infrastruktúráját tekintve azonnal alkalmas ipari, kereskedelmi vagy logisztikai célú hasznosításra.
***
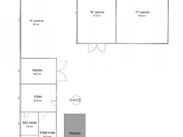
A telephely jelenlegi felépítményei:
- Kb. 50 m2 iroda- és raktárépület (vályog szerkezet, jó állapot, kályhafűtés)
- Zárt garázs (20 m2)
- Három csarnokszerű 63 m2, 57,8 m2 és 78,9 m2 területű tároló/raktár.
- Működő mázsáló- és rakodórámpa
- 2 db üzemanyagtartály az utcafronton
A telek Gksz-1 besorolású, azaz kereskedelmi, szolgáltató gazdasági célra építhető és továbbfejleszthető.
***
Infrastruktúra:
- Víz és 3 fázisú villamos energia bekötve
- Gáz és csatorna a telekhatáron elérhető
- A ingatlan hasznosított része körbekerített, a helyiségek zárhatók és jó állapotúak.
***
Elhelyezkedés:
- Gödöllő, Sülysáp, Hatvan és Jászberény rövid idő alatt elérhető
- Kiváló logisztikai pont a közép-magyarországi régióban.
Ez az ingatlan ideális választás lehet raktárbázis, kisebb üzem, TÜZÉP (jelenleg Kivett tüzéptelep besorolású), logisztikai központ vagy akár üzemanyag-ellátással kombinált ipari tevékenység számára.
Rugalmasan megtekinthető, minden komoly érdeklődőt várok. Az adásvétel során az OTP Csoport szolgáltatásaival veszem le a terhet Önről, legyen szó akár finanszírozásról, akár szakértő jogi tanácsadásról. Hívjon most!
Tulajdonságok
1970
Nem adta meg a hirdető
Vedd fel a kapcsolatot a hirdetővel
+36 70 572 0
Vedd fel a kapcsolatot a hirdetővel
+36 70 572 0
Vedd fel a kapcsolatot a hirdetővel
+36 70 572 0
UI_KIT.CHARACTER_COUNTER__COMPONENT.REMAINING_SPACE__SR_ONLYUI_KIT.CHARACTER_COUNTER__COMPONENT.MAXIMUM_CHARACTER__SR_ONLY
Hasonló eladó ingatlanok Tóalmáson
Frissítve: 6 napja

20
34,9 M Ft 120 262 Ft/m²
Eladó kereskedelmi és ipari ingatlan, Tóalmás

Frissítve: 17 napja

8
32 M Ft 160 000 Ft/m²
Eladó kereskedelmi és ipari ingatlan, Kocsér

Frissítve: 11 napja

7
34,9 M Ft 545 313 Ft/m²
Eladó kereskedelmi és ipari ingatlan, Pilis


Fedezd fel a
hasonló hirdetéseket!Még további kereskedelmi és ipari ingatlanok Pest megyében 34,9 M Ft körüli értékben
Tovább a hirdetésekhez Frissítve: 17 napja

6
33,75 M Ft 16 875 Ft/m²
Eladó kereskedelmi és ipari ingatlan, Vác
Frissítve: 11 napja

13
35 M Ft 240 550 Ft/m²
Eladó kereskedelmi és ipari ingatlan, Farmos

Frissítve: 11 napja

8
37,32 M Ft 278 489 Ft/m²
Eladó kereskedelmi és ipari ingatlan, Tápiószecső, Honvéd utca


Töltsd fel hirdetésed ingyenesen!
Egyszerű