+8 fotó
Hirdetéskód: 8765753
Referenciaszám: M316299
Frissítve: 1 napja
Szigetszentmiklós eladó gyárépület 191 m² alapterületű: 78 millió Ft
78 millió Ft
408 377 Ft/m² *
* A m² árat a hirdető adta meg.
191 m²
Leírás
***IPARI INGATLAN ELADÓ SZIGETSZENTMIKLÓSON! RAKTÁRNAK/CSARNOKNAK TÖKÉLETES!***KAVOSZ HITEL FELVEHETŐ!***
Pest megyében, Szigetszentmiklóson, autópálya közeli elhelyezkedéssel eladó egy 2024-ben épült, modern ipari ingatlan, amely kiválóan alkalmas raktározásra, csarnoknak vagy műhelynek is.
Az épület 10 cm vastag szendvicspanelből készült, így energiahatékony és korszerű szerkezetű.
A 6 méteres belmagasság lehetővé teszi galéria kialakítását, amellyel akár további ~100 négyzetméter hasznos terület nyerhető.
Az ingatlan albetétesítve van, ezért hitelképes, és jogilag rendezett, önálló helyrajzi számmal rendelkezik.
Az ingatlanhoz 2 gépkocsibeálló is tartozik zárt telephelyen.
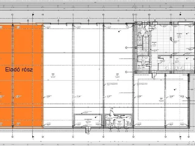
Mivel ez az utolsó egység az ingatlanban, így az épület mögött kb 400 négyzetméteres telekrész is hasznosítható megállapodás alapján földhasználati díj ellenében.
Ideális választás vállalkozásoknak, akik új telephelyet, raktárt vagy gyártócsarnokot keresnek Szigetszentmiklós frekventált, mégis jól megközelíthető részén.
A kínálatunkból választott ingatlan finanszírozásához kedvezményes hitel- és lízingkonstrukciókat kínálunk. Az adásvételi szerződés megkötéséhez igény szerint megbízható ügyvédi közreműködést biztosítunk, és segítséget nyújtunk az adásvételhez kapcsolódó ügyek intézéséhez. Amennyiben felkeltettem érdeklődését, keressen bizalommal, akár hétvégén is.
Referenciaszám: M316299
Tulajdonságok
Gyárépület
Újszerű
Nincs fűtés
2024
Nem adta meg a hirdető
Vedd fel a kapcsolatot a hirdetővel
Hackenberger Rita Szigetszentmiklós Tököli út 19.B - OTP Ingatlanpont Iroda Az iroda összes hirdetése
+36 70 423 8
Vedd fel a kapcsolatot a hirdetővel
Hackenberger Rita Szigetszentmiklós Tököli út 19.B - OTP Ingatlanpont Iroda Az iroda összes hirdetése
+36 70 423 8
Vedd fel a kapcsolatot a hirdetővel
Hackenberger Rita Szigetszentmiklós Tököli út 19.B - OTP Ingatlanpont Iroda Az iroda összes hirdetése
+36 70 423 8
UI_KIT.CHARACTER_COUNTER__COMPONENT.REMAINING_SPACE__SR_ONLYUI_KIT.CHARACTER_COUNTER__COMPONENT.MAXIMUM_CHARACTER__SR_ONLY
Hasonló eladó ingatlanok Lakihegy városrészben
Frissítve: 7 napja
13
74,99 M Ft 1 115 923 Ft/m²
Eladó kereskedelmi és ipari ingatlan, Szigetszentmiklós, Bajcsy-Zsilinszky utca

Frissítve: ma
7
74,99 M Ft 1 119 254 Ft/m²
Eladó kereskedelmi és ipari ingatlan, Szigetszentmiklós

Frissítve: 4 napja
7
74,99 M Ft 1 119 254 Ft/m²
Eladó kereskedelmi és ipari ingatlan, Szigetszentmiklós


Fedezd fel a
hasonló hirdetéseket!Még további kereskedelmi és ipari ingatlanok Pest megyében 78 M Ft körüli értékben
Tovább a hirdetésekhez Feltöltve: 2 napja
3
76 M Ft 584 615 Ft/m²
Eladó kereskedelmi és ipari ingatlan, Szigetszentmiklós, Gyártelep
Frissítve: 5 napja
6
79,99 M Ft 106 653 Ft/m²
Eladó kereskedelmi és ipari ingatlan, Dabas
Frissítve: ma
2
75 M Ft 6 000 Ft/m²
Eladó kereskedelmi és ipari ingatlan, Monor

Töltsd fel hirdetésed ingyenesen!
Egyszerű
