+12 fotó
Hirdetéskód: 8820403
Referenciaszám: 390546
Feltöltve: ma
Budapest III. kerület eladó házrész 2+1 fél szobás: 58,5 millió Ft
58,5 millió Ft
1 500 000 Ft/m²
39 m²
350 m²
2+1 fél szoba
Eladó házrész Budapest, III. kerület, 39nm, 58.500.000Ft - Templom utca
BEFEKTETŐKNEK – RITKA LEHETŐSÉG BÉKÁSMEGYER ÓFALUBAN!
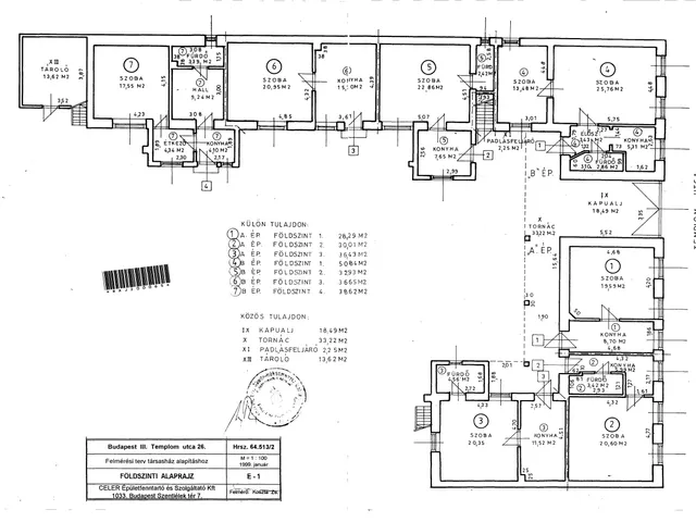
Teljesen felújítandó 2 szobás lakás eladó, udvarral rendelkező házban, Ófaluban, ahol a szomszédok az önkormányzat, így biztos a nyugodt környezet. A ház udvarában összesen 7 lakás található.
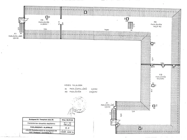
Az alaprajzon a 7-es számmal jelölt lakás, ami ennek a lakásnak az alaprajza.
A ház csak önkormányzati engedéllyel bontható, de felújításával értékes, kis költségű projekt válhat belőle.
Kis alapterület – alacsony felújítási költség
Összközműves ingatlan
Viszonylag jó állapotú tető és elfogadható nyílászárók
Parkolás az udvarban
Bónusz befektetőknek:
A házhoz ingyenesen használható +71 m² nem lakás célú ingatlan, több tárolóval, , beépíthető tetőtérrel és egyéb melléképülettel!
Ráadásként van pályázó a telekre, aki tartós bérletet vállalna – ez akár a hitelköltség felét is kitermelheti.
Az ingatlan 3%-os fix Otthon Start hitelre alkalmas lehet.
Ha jó befektetést keresel, amit minimális ráfordítással értéknövelni lehet, ez az egyik legjobb lehetőség Ófaluban!
Több információ miatt, telefonon érdeklődj.
Vereb Attila – +36 20 263 9995
Több mint 15 éves szakmai tapasztalattal segítek az adásvétel teljes folyamatában – a megtekintéstől a birtokbaadásig. ...TOVÁBBI, TÖBBEZRES INGATLAN KÍNÁLAT: www.gdn-ingatlan.hu - GDN azonosító: 390546
Tulajdonságok
Házrész
1
Felújítandó
Gáz (konvektor)
1965
E
Vedd fel a kapcsolatot a hirdetővel
+36 20 263 9
Hitelkalkulátor
Második évtől
251 757 Ft A 13. hónaptól
7,99%
Végig fix Futamidő: 20 év Banki visszahívás
Az OTP Bank munkatársai a neked megfelelő napszakban veszik fel veled a kapcsolatot. A becslés a hirdető által megadott adatokon alapul. A jelen tájékoztatás nem minősül ajánlattételnek és nem teljes körű, az egyes feltételek a hitelbírálat eredményétől függően változhatnak. Kérjük, a részletekről tájékozódj az OTP Bank fiókjaiban vagy az OTP Bank honlapján közzétett vonatkozó Üzletszabályzatokból és Hirdetményekből.
Vedd fel a kapcsolatot a hirdetővel
+36 20 263 9
Vedd fel a kapcsolatot a hirdetővel
+36 20 263 9
UI_KIT.CHARACTER_COUNTER__COMPONENT.REMAINING_SPACE__SR_ONLYUI_KIT.CHARACTER_COUNTER__COMPONENT.MAXIMUM_CHARACTER__SR_ONLY
Hasonló eladó ingatlanok Békásmegyer városrészben
Frissítve: 16 napja
12
62 M Ft 1 127 273 Ft/m²
Eladó ikerház, Budapest III. kerület

Frissítve: 5 napja
12
62 M Ft 1 127 273 Ft/m²
Eladó ikerház, Budapest III. kerület

Frissítve: 25 napja
12
62 M Ft 1 127 273 Ft/m²
Eladó ikerház, Budapest III. kerület


Fedezd fel a
hasonló házakat!Még további házak Budapesten 58,5 M Ft körüli értékben
Tovább a hirdetésekhez Frissítve: 26 napja
12
62 M Ft 1 127 273 Ft/m²
Eladó ikerház, Budapest III. kerület

Frissítve: 13 napja
12
62 M Ft 1 127 273 Ft/m²
Eladó ikerház, Budapest III. kerület

Frissítve: 3 napja
12
62 M Ft 1 127 273 Ft/m²
Eladó ikerház, Budapest III. kerület


Töltsd fel hirdetésed ingyenesen!
Egyszerű
