

+10 fotó
Hirdetéskód: 8728475
Referenciaszám: M311350-5050390
Feltöltve: 3 napja
Budapest XXII. kerület eladó házrész 1 szobás: 66,5 millió Ft
66,5 millió Ft
1 187 500 Ft/m²
56 m²
440 m²
1 szoba
Eladó Ház, Budapest 22. ker.
BUDATÉTÉNYBEN KERTESHÁZ. OTTHON START HITELRE IS.
A XXII. kerület kertvárosi lakóövezetében kiváló lokációban vált eladóvá egy saját nagy kerttel rendelkező házrész.
AZ INGATLAN
Az osztatlan közös tulajdonú telek rendelkezik használati megosztási szerződéssel és vázrajzzal, ezért hitelre is megvásárolható.
A 440 m2-es hangulatos kert 11 méteres utcafronttal bír. Az utcán saját parkolóhely, a kertben autóbeálló található. Az ingatlan megközelítése és használata független a szomszédoktól. Az utca csendes, kis forgalmú.
A LAKÁS:
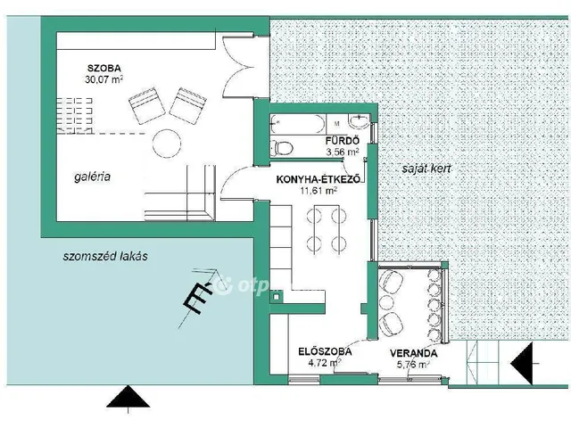
A kerten keresztül érkezünk a bejárati verandára, majd az előszobába. A lakásban egy jól felszerelt konyha-étkező, egy fürdőszoba és egy nagy méretű, nagy belmagasságú, alvó galériával kibővített szoba található. Innen egy terasz ajtón keresztül a kertbe juthatunk.
A fűtés gáz cirko kazán radiátoros hőleadókkal.
A falazat kő és tégla. A külső nyílászárók két rétegű hőszigetelt üvegezésű műanyag szerkezetű ablakok. Az ingatlan jó állapotú, költözhető.
Igény esetén a tetőtér beépíthető.
A KÖRNYÉK:
Budatétény kedvelt kertvárosi övezetében helyezkedik el. Kiváló közlekedés és infrastruktúra szempontjából. Buszmegálló a háztól 50 méterre, óvoda, bölcsőde, boltok 500 méteren belül találhatók. Egy kilométer távolságban Campona bevásárló központ, Művelődési ház, Tanuszoda, vasútállomás.
A parkolás díjmentes az utcákban.
Otthon Start Hitelprogram igénybevehető. A lakás megfelel a törvényi kritériumoknak, és az ügyintézésben is segítünk.
Tulajdonságok
Házrész
Jó állapotú
Gázkazán
1960
Nem adta meg a hirdető
Vedd fel a kapcsolatot a hirdetővel
Kéki Mónika OTPip - Budapest IX. kerület Üllői út 21 - OTP Ingatlanpont Iroda Az iroda összes hirdetése
+36 70 518 5
Hitelkalkulátor
Második évtől
286 186 Ft A 13. hónaptól
7,99%
Végig fix Futamidő: 20 év Banki visszahívás
Az OTP Bank munkatársai a neked megfelelő napszakban veszik fel veled a kapcsolatot. A becslés a hirdető által megadott adatokon alapul. A jelen tájékoztatás nem minősül ajánlattételnek és nem teljes körű, az egyes feltételek a hitelbírálat eredményétől függően változhatnak. Kérjük, a részletekről tájékozódj az OTP Bank fiókjaiban vagy az OTP Bank honlapján közzétett vonatkozó Üzletszabályzatokból és Hirdetményekből.
Vedd fel a kapcsolatot a hirdetővel
Kéki Mónika OTPip - Budapest IX. kerület Üllői út 21 - OTP Ingatlanpont Iroda Az iroda összes hirdetése
+36 70 518 5
Vedd fel a kapcsolatot a hirdetővel
Kéki Mónika OTPip - Budapest IX. kerület Üllői út 21 - OTP Ingatlanpont Iroda Az iroda összes hirdetése
+36 70 518 5
UI_KIT.CHARACTER_COUNTER__COMPONENT.REMAINING_SPACE__SR_ONLYUI_KIT.CHARACTER_COUNTER__COMPONENT.MAXIMUM_CHARACTER__SR_ONLY
Hasonló eladó ingatlanok Budatétény városrészben
Frissítve: 10 napja

12
66,5 M Ft 1 187 500 Ft/m²
Eladó házrész, Budapest XXII. kerület, Budatétény

Frissítve: 7 napja

12
66,5 M Ft 1 187 500 Ft/m²
Eladó házrész, Budapest XXII. kerület, Budatétény

Frissítve: 11 napja

12
66,5 M Ft 1 187 500 Ft/m²
Eladó házrész, Budapest XXII. kerület, Budatétény


Fedezd fel a
hasonló házakat!Még további házak Budapest XXII. kerületben 66,5 M Ft körüli értékben
Tovább a hirdetésekhez Frissítve: ma

12
66,5 M Ft 1 187 500 Ft/m²
Eladó házrész, Budapest XXII. kerület, Budatétény

Feltöltve: 16 napja

12
66,5 M Ft 1 187 500 Ft/m²
Eladó házrész, Budapest XXII. kerület, Budatétény

Frissítve: 16 napja

20
70 M Ft 875 000 Ft/m²
Eladó házrész, Budapest XXII. kerület, Baross Gábor telep


Töltsd fel hirdetésed ingyenesen!
Egyszerű