+17 fotó
Hirdetéskód: 8838111
Referenciaszám: M319568-5114858
Feltöltve: ma
Szentes eladó házrész 2 szobás: 16 millió Ft
16 millió Ft
333 333 Ft/m²
48 m²
280 m²
2 szoba
Eladó Ház, Szentes
Csak az OTP Ingatlanpont kínálatában!!
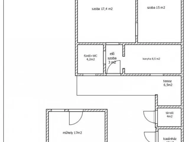
Eladó Csongrád-Csanád vármegyében, Szentesen, egy nagyon jó állapotú utcafronti házrész. Az ingatlan 48 m2-es lakótérrel és 280 m2-es telekkel, külön bejáratú, saját udvarral rendelkezik, ami ideális választás lehet mindazoknak, akik önálló életteret keresnek nyugodt környezetben. Teljes közmúvel, saját mérőórákkal rendelkezik (víz, gáz, villany).
A házban két szoba, konyha, fürdőszoba és egy kis előszoba kapott helyet. A felújítási munkálatok az elmúlt évben nagyrészt megvalósultak, a korszerűsítés mintegy 90%-ban elkészült. Megújultak a nyílászárók, a villamos hálózat, a fűtésrendszer, a fürdőszoba és a burkolatok, valamint a tetőszegés is. A fűtésről vegyestüzelésű kazán gondoskodik, emellett hűtő-fűtő klíma is felszerelésre került, amely hatékonyan biztosítja a kellemes hőmérsékletet az év minden szakában. A melegvizet villanybojler szolgáltatja, kedvezményes tarifájú áramra kötve.
A kis alapterületnek köszönhetően az ingatlan fenntartása rendkívül gazdaságos, alacsony rezsiköltséggel üzemeltethető. Az udvaron melléképület és műhely is található, valamint egy különálló, 17 m2-es épület, amely akár garázsként is kialakítható. Ez az ingatlan remek lehetőség első otthonnak, idősebbeknek vagy befektetési céllal is, hiszen azonnal költözhető, rendezett környezetben helyezkedik el.
Az OTP Bankcsoport teljes körű ügyintézéssel áll az eladók és a vevők rendelkezésére! A kínálatunkból választott ingatlan finanszírozásához kedvezményes hitel konstrukciókat kínálunk. Az adásvételi szerződés megkötéséhez igény szerint megbízható ügyvédi közreműködést biztosítunk, és segítséget nyújtunk az adásvételhez kapcsolódó ügyek intézéséhez. Akár hétvégén is hívható vagyok! Amennyiben igényli, kérem küldjön sms-t és szívesen visszahívom!
Kedvező hitelajánlatokkal (BABAVÁRÓ hitel, piaci hitel, Otthon Start Program,és szabadfelhasználású hitel) várjuk jelentkezését. Számos konstrukció közül választhatnak. Irodáink Szentes, Petőfi utca 12. A buszmegálló felől, és Csongrád, Fő utca 54. szám alatt várja a személyes érdeklődőket.
Referencia szám: M319568-ZE
Tulajdonságok
Házrész
Átlagos
Egyéb kazán
1980
Nem adta meg a hirdető
Vedd fel a kapcsolatot a hirdetővel
+36 30 309 5
Hitelkalkulátor
Második évtől
68 857 Ft A 13. hónaptól
7,99%
Végig fix Futamidő: 20 év Banki visszahívás
Az OTP Bank munkatársai a neked megfelelő napszakban veszik fel veled a kapcsolatot. A becslés a hirdető által megadott adatokon alapul. A jelen tájékoztatás nem minősül ajánlattételnek és nem teljes körű, az egyes feltételek a hitelbírálat eredményétől függően változhatnak. Kérjük, a részletekről tájékozódj az OTP Bank fiókjaiban vagy az OTP Bank honlapján közzétett vonatkozó Üzletszabályzatokból és Hirdetményekből.
Vedd fel a kapcsolatot a hirdetővel
+36 30 309 5
Vedd fel a kapcsolatot a hirdetővel
+36 30 309 5
UI_KIT.CHARACTER_COUNTER__COMPONENT.REMAINING_SPACE__SR_ONLYUI_KIT.CHARACTER_COUNTER__COMPONENT.MAXIMUM_CHARACTER__SR_ONLY
Hasonló eladó ingatlanok Szentesen
Frissítve: 1 napja
20
14,9 M Ft 206 944 Ft/m²
Eladó családi ház, Szentes

Frissítve: 5 napja
9
14,9 M Ft 225 758 Ft/m²
Eladó családi ház, Szentes
Frissítve: 7 napja
7
15 M Ft 277 778 Ft/m²
Eladó családi ház, Szentes, Somogyi Béla utca


Fedezd fel a
hasonló házakat!Még további házak Szentesen 16 M Ft körüli értékben
Tovább a hirdetésekhez Frissítve: 17 napja
7
15 M Ft 277 778 Ft/m²
Eladó családi ház, Szentes

Frissítve: 7 napja
8
16 M Ft 266 667 Ft/m²
Eladó családi ház, Szentes

Frissítve: 28 napja
8
16 M Ft 266 667 Ft/m²
Eladó családi ház, Szentes

