+17 fotó
Hirdetéskód: 8968799
Referenciaszám: M319568-5198886
Frissítve: ma
Szentes eladó házrész 2 szobás: 13 millió Ft
13 millió Ft
270 833 Ft/m²
48 m²
280 m²
2 szoba
Eladó Ház, Szentes
Csak az OTP Ingatlanpont kínálatában!!
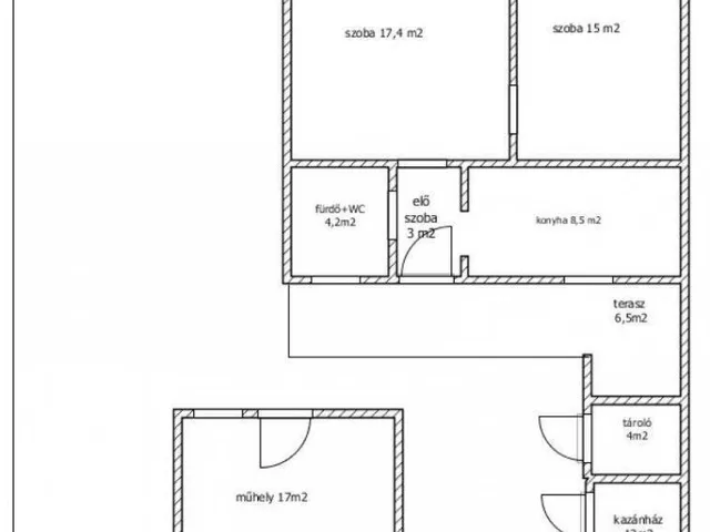
Eladó Csongrád-Csanád vármegyében, Szentesen, egy nagyon jó állapotú utcafronti házrész. Az ingatlan 48 m2-es lakótérrel és 280 m2-es telekkel, külön bejáratú, saját udvarral rendelkezik, ami ideális választás lehet mindazoknak, akik önálló életteret keresnek nyugodt környezetben. Teljes közmúvel, saját mérőórákkal rendelkezik (víz, gáz, villany).
A házban két szoba, konyha, fürdőszoba és egy kis előszoba kapott helyet. A felújítási munkálatok az elmúlt évben nagyrészt megvalósultak, a korszerűsítés mintegy 90%-ban elkészült. Megújultak a nyílászárók, a villamos hálózat, a fűtésrendszer, a fürdőszoba és a burkolatok, valamint a tetőszegés is. A fűtésről vegyestüzelésű kazán gondoskodik, emellett hűtő-fűtő klíma is felszerelésre került, amely hatékonyan biztosítja a kellemes hőmérsékletet az év minden szakában. A melegvizet villanybojler szolgáltatja, kedvezményes tarifájú áramra kötve.
A kis alapterületnek köszönhetően az ingatlan fenntartása rendkívül gazdaságos, alacsony rezsiköltséggel üzemeltethető. Az udvaron melléképület és műhely is található, valamint egy különálló, 17 m2-es épület, amely akár garázsként is kialakítható. Ez az ingatlan remek lehetőség első otthonnak, idősebbeknek vagy befektetési céllal is, hiszen azonnal költözhető, rendezett környezetben helyezkedik el.
Az OTP Bankcsoport teljes körű ügyintézéssel áll az eladók és a vevők rendelkezésére! A kínálatunkból választott ingatlan finanszírozásához kedvezményes hitel konstrukciókat kínálunk. Az adásvételi szerződés megkötéséhez igény szerint megbízható ügyvédi közreműködést biztosítunk, és segítséget nyújtunk az adásvételhez kapcsolódó ügyek intézéséhez. Akár hétvégén is hívható vagyok! Amennyiben igényli, kérem küldjön sms-t és szívesen visszahívom!
Kedvező hitelajánlatokkal (BABAVÁRÓ hitel, piaci hitel, Otthon Start Program,és szabadfelhasználású hitel) várjuk jelentkezését. Számos konstrukció közül választhatnak. Irodáink Szentes, Petőfi utca 12. A buszmegálló felől, és Csongrád, Fő utca 54. szám alatt várja a személyes érdeklődőket.
Érdeklődni: Szlovák Ibolya +36704550993
Referencia szám: M319568-ZE
Tulajdonságok
Házrész
Átlagos
Egyéb kazán
1980
Nem adta meg a hirdető
Vedd fel a kapcsolatot a hirdetővel
+36 70 455 0
Hitelkalkulátor
Második évtől
55 946 Ft A 13. hónaptól
7,99%
Végig fix Futamidő: 20 év Banki visszahívás
Az OTP Bank munkatársai a neked megfelelő napszakban veszik fel veled a kapcsolatot. A becslés a hirdető által megadott adatokon alapul. A jelen tájékoztatás nem minősül ajánlattételnek és nem teljes körű, az egyes feltételek a hitelbírálat eredményétől függően változhatnak. Kérjük, a részletekről tájékozódj az OTP Bank fiókjaiban vagy az OTP Bank honlapján közzétett vonatkozó Üzletszabályzatokból és Hirdetményekből.
Vedd fel a kapcsolatot a hirdetővel
+36 70 455 0
Vedd fel a kapcsolatot a hirdetővel
+36 70 455 0
UI_KIT.CHARACTER_COUNTER__COMPONENT.ACTUAL_CHARACTER__SR_ONLY UI_KIT.CHARACTER_COUNTER__COMPONENT.MAXIMUM_CHARACTER__SR_ONLY
Hasonló eladó ingatlanok Szentesen
Frissítve: 8 napja
7
12 M Ft 222 222 Ft/m²
Eladó családi ház, Szentes, Somogyi Béla utca

Frissítve: 7 napja
7
12 M Ft 222 222 Ft/m²
Eladó családi ház, Szentes

Feltöltve: 1 éve
0
12 M Ft 141 176 Ft/m²
Eladó egyéb ház, Ásotthalom, VIII. körzet tanya

Fedezd fel a
hasonló házakat!Még további házak Csongrád megyében 13 M Ft körüli értékben
Tovább a hirdetésekhez Frissítve: 11 napja
10
13,99 M Ft 130 347 Ft/m²
Eladó családi ház, Üllés
Frissítve: 11 napja
8
11,99 M Ft 171 285 Ft/m²
Eladó családi ház, Dóc
Frissítve: 11 napja
2
14 M Ft 280 000 Ft/m²
Eladó családi ház, Mórahalom

