

+18 fotó
Zenga
Premier
Hirdetéskód: 8719808
Referenciaszám: M313158
Feltöltve: 10 napja
Felsőörs eladó hétvégi ház 36 m² alapterületű: 48,9 millió Ft
48,9 millió Ft
993 096 Ft/m² *
* A m² árat a hirdető adta meg.
36 m²
719 m²
1+2 fél szoba

Friss hirdetések, amiket nem találsz meg más ingatlankereső portálon.
Fedezd fel elsőként a Zenga Premier címkés eladó ingatlanokat! További részletek A Duna House, OTP Ingatlanpont, Otthon Centrum és további hálózatok új, kizárólagos hirdetéseinek nagy részét a zenga.hu és koltozzbe.hu ingatlankeresőn láthatod legelőször, és a feltöltéstől két hétig nem érhetők el más ingatlankeresőn!
Leírás
Veszprém megye, Felsőörs, nyaraló
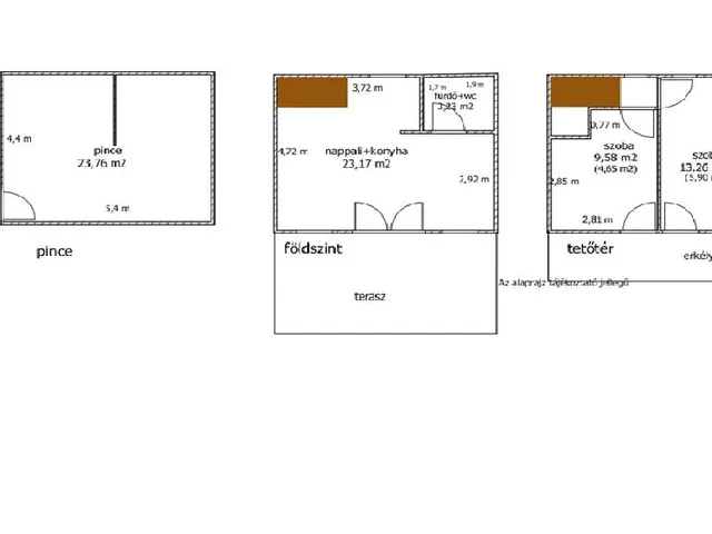
A Balaton térségének egy kedvelt részén, Felsőörs és Balatonalmádi között kínálok megvételre egy nyaralót. A zártkerti művelés alól kivett területre a jelenlegi tulajdonos 1998-ban építtette a kétszintes rönkházat kőből készült pincealapra. A szigetelt és körbe drain-csövezett egylégterű pince 24 m2-es. A földszinten konyhás nappali és fürdőszoba található, a tetőtérben pedig két félszoba. A 26 m2-es alsó szintről nagy teraszra lépünk ki, a tetőtéri szobákból egy közös erkélyre, ahonnan a Balaton is része a nagyszerű panorámának. A tetőtéri helyiségek 1,9 m-t meghaladó területe 4,7, illetve 5,9 m2.
A cseréptetős épület kimondottan jó állapotú, a faanyag kültéri része is rendszeresen megkapja a szükséges törődést. Minden külső nyílászáró zsalugáteres.
A komfort fontos biztosítékai: vezetékes víz (kerti csap is van) és villany, egy kandalló a hűvösebb napokra, zuhanyzós fürdőszoba, zárt rendszerű emésztő.
A 719 m2-es, bekerített területen több gyümölcsfa is van (alma, cseresznye, dió), melyek kellemesen árnyassá teszik az udvart.
A nyugalmat az elhelyezkedése biztosítja, a főúttól aszfaltos, majd murvás, végül rövid, mindig járható füves úton (zsákutca) juthatunk az ingatlanhoz.
A Balaton akár kényelmes sétával is elérhető innen.
Ha igazán nyugodt, komfortos és jó állapotú ingatlant szeretne, ezt érdemes megnézni. Rugalmas megtekintést tudok biztosítani.
Tulajdonságok
Hétvégi ház
2
Átlagos
Cserépkályha
1998
Nem adta meg a hirdető
Vedd fel a kapcsolatot a hirdetővel
+36 20 935 3
Hitelkalkulátor
Második évtől
210 443 Ft A 13. hónaptól
7,99%
Végig fix Futamidő: 20 év Banki visszahívás
Az OTP Bank munkatársai a neked megfelelő napszakban veszik fel veled a kapcsolatot.Vedd fel a kapcsolatot a hirdetővel
+36 20 935 3
Vedd fel a kapcsolatot a hirdetővel
+36 20 935 3
UI_KIT.CHARACTER_COUNTER__COMPONENT.REMAINING_SPACE__SR_ONLYUI_KIT.CHARACTER_COUNTER__COMPONENT.MAXIMUM_CHARACTER__SR_ONLY
Hasonló eladó ingatlanok Felsőörsön
Frissítve: 6 napja

20
45 M Ft 1 000 000 Ft/m²
Eladó üdülő, hétvégi ház, Felsőörs

Frissítve: 8 napja

20
47,99 M Ft 685 571 Ft/m²
Eladó üdülő, hétvégi ház, Szigliget
Frissítve: 8 napja

12
47,9 M Ft 684 286 Ft/m²
Eladó üdülő, hétvégi ház, Szentbékkálla


Fedezd fel a
hasonló hirdetéseket!Még további üdülő és hétvégi házak Veszprém megyében 48,9 M Ft körüli értékben
Tovább a hirdetésekhez Frissítve: 8 napja

20
44,5 M Ft 494 444 Ft/m²
Eladó üdülő, hétvégi ház, Lesencefalu

Frissítve: 8 napja

20
47 M Ft 522 222 Ft/m²
Eladó üdülő, hétvégi ház, Kisapáti

Frissítve: 8 napja

20
49 M Ft 1 400 000 Ft/m²
Eladó üdülő, hétvégi ház, Balatonszepezd


Töltsd fel hirdetésed ingyenesen!
Egyszerű