+16 fotó
Hirdetéskód: 8954868
Referenciaszám: 394379
Frissítve: 1 napja
Szeged eladó hotel és panzió 228 m² alapterületű: 350 millió Ft
350 millió Ft
1 535 088 Ft/m²
228 m²
Eladó hotel, panzió Szeged, 228nm, 350.000.000Ft - Belvároshoz közeli panzió eladó
ELADÓ PANZIÓ A BELVÁROSHOZ KÖZEL
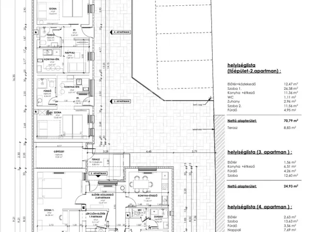
Az ingatlan egy 847 m²-es telken fekszik, a felépítmény hasznos alapterülete 227,6 m², kiegészülve egy 8 m²-es elkülönített gépészeti térrel. Az épület teljeskörű felújításon esett át 2024-ben: nyílászáró csere, homlokzati hőszigetelés, új tető, új teljeskörű villamoshálózat, új gépészet, teljesen új burkolatok és új berendezések.
Az épület rendelkezik napelemes rendszerrel. A fűtés, hűtésről hőszivattyú gondoskodik. A helyiségekben fan-coilok látják el ezt a feladatot. Az épületben található egy biztonsági gázkazán is a fűtés és a melegvíz ellátásra.
Szálláskapacitás 14 + 2 fő, összesen 4 db apartmanban.
Az egységek kialakítása lehetővé teszi a szezonalitástól független, rugalmas értékesítést (akár külön-külön, akár egyben a teljes házat):
Kiegészítő szolgáltatás a wellness szekció: A kertben telepített infraszauna és jakuzzi biztosítja a magasabb kategóriájú árazás lehetőségét.
A parkolás 5 db udvari parkolóhelyen megoldott, és 2 darab elektromosautó-töltő is telepítésre került.
Az ingatlan jelenleg is teljes kihasználtsággal, magas "bookingos" pontszámmal működik, minden szükséges hatósági engedéllyel rendelkezik.
Az eladási ár a céggel és a teljes berendezéssel - felszereléssel együtt értendő.
TOVÁBBI RÉSZLETEKÉRT HÍVJON BIZALOMMAL! ...TOVÁBBI, TÖBBEZRES INGATLAN KÍNÁLAT: www.gdn-ingatlan.hu - GDN azonosító: 394379
Tulajdonságok
Hotel és panzió
Felújított
Geotermikus
1983
Nem adta meg a hirdető
Vedd fel a kapcsolatot a hirdetővel
+36 30 901 0
Vedd fel a kapcsolatot a hirdetővel
+36 30 901 0
Vedd fel a kapcsolatot a hirdetővel
+36 30 901 0
UI_KIT.CHARACTER_COUNTER__COMPONENT.ACTUAL_CHARACTER__SR_ONLY UI_KIT.CHARACTER_COUNTER__COMPONENT.MAXIMUM_CHARACTER__SR_ONLY
Hasonló eladó ingatlanok Móraváros városrészben
Frissítve: 1 napja
8
370 M Ft 54 864 Ft/m²
Eladó kereskedelmi és ipari ingatlan, Szeged

Frissítve: 1 napja
17
320 M Ft 287 511 Ft/m²
Eladó kereskedelmi és ipari ingatlan, Szeged, Sziksós
Frissítve: 1 napja
10
320 M Ft 241 206 Ft/m²
Eladó kereskedelmi és ipari ingatlan, Szeged
Frissítve: 1 napja
13
320 M Ft 287 511 Ft/m²
Eladó kereskedelmi és ipari ingatlan, Szeged
Frissítve: 1 napja
20
320 M Ft 1 230 769 Ft/m²
Eladó kereskedelmi és ipari ingatlan, Derekegyház, Semmelweis utca

Frissítve: 1 napja
20
349 M Ft 328 625 Ft/m²
Eladó kereskedelmi és ipari ingatlan, Baks

