+12 fotó
Zenga
Premier
Hirdetéskód: 8905372
Referenciaszám: M323408
Feltöltve: 2 napja
Ajka eladó ikerház 2 szobás: 34,4 millió Ft
34,4 millió Ft
503 661 Ft/m² *
* A m² árat a hirdető adta meg.
68 m²
567 m²
2 szoba

Friss hirdetések, amiket nem találsz meg más ingatlankereső portálon.
Fedezd fel elsőként a Zenga Premier címkés eladó ingatlanokat! További részletek A Duna House, OTP Ingatlanpont, Otthon Centrum és további hálózatok új, kizárólagos hirdetéseinek nagy részét a zenga.hu és koltozzbe.hu ingatlankeresőn láthatod legelőször, és a feltöltéstől két hétig nem érhetők el más ingatlankeresőn!
Leírás
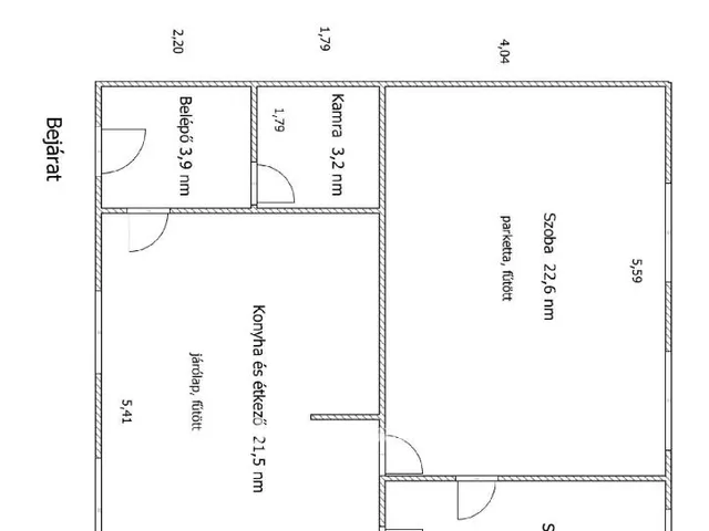
Ikerház Ajka-Padragkút.
Ajka?Padragkúton eladó egy tégla építésű ikerház, amely azonnal beköltözhető állapotban van. Az ingatlan 68,3 nm hasznos alapterületű, a hozzá tartozó telek mérete összesen 567 nm.
A ház helyiségei:
2 szoba
konyha?étkező
fürdőszoba
kamra
Az ingatlanhoz kerti garázs és melléképület is tartozik. Állapota igény szerint részben felújítandó, de alapvetően jelenlegi állapotában is lakható. A villanyvezetékek cseréje és korszerűsítése már megtörtént.
A fűtést vas kandallók biztosítják, melyet hűtő-fűtő klíma egészít ki.
Az ingatlan csendes, barátságos környezetben található, mégis közel van Ajka városához. A kert kiváló lehetőséget nyújt kertészkedésre és pihenésre.
Kedvező áron eladó, azonnal költözhető.
Az OTP Ingatlanpont teljes körű ügyintézéssel áll az eladók és a vevők rendelkezésére. A kínálatunkból választott ingatlan finanszírozásához kedvezményes hitelkonstrukciót kínálunk. Az adásvételi szerződés megkötéséhez igény szerint megbízható ügyvédi közreműködést biztosítunk, és segítséget nyújtunk az adásvételhez kapcsolódó ügyek intézéséhez is. Az ingatlanról készült alaprajz, illetve fényképfelvételek az Otp ingatlanpont szellemi tulajdonát képezik. Amennyiben felkeltette érdeklődését az általam kínált ingatlan, keressen bizalommal! Ne habozzon tovább, hiszen ez a ház valóban páratlan lehetőséget kínál! SZEREZZE MEG EZT SZÉP OTTHONT, HÍVJA MOST A MEGADOTT TELEFONSZÁMOT!
Tulajdonságok
Ikerház
1
Felújítandó
Egyéb
1960
Nem adta meg a hirdető
Vedd fel a kapcsolatot a hirdetővel
+36 30 100 9
Hitelkalkulátor
Második évtől
148 042 Ft A 13. hónaptól
7,99%
Végig fix Futamidő: 20 év Banki visszahívás
Az OTP Bank munkatársai a neked megfelelő napszakban veszik fel veled a kapcsolatot. A becslés a hirdető által megadott adatokon alapul. A jelen tájékoztatás nem minősül ajánlattételnek és nem teljes körű, az egyes feltételek a hitelbírálat eredményétől függően változhatnak. Kérjük, a részletekről tájékozódj az OTP Bank fiókjaiban vagy az OTP Bank honlapján közzétett vonatkozó Üzletszabályzatokból és Hirdetményekből.
Vedd fel a kapcsolatot a hirdetővel
+36 30 100 9
Vedd fel a kapcsolatot a hirdetővel
+36 30 100 9
UI_KIT.CHARACTER_COUNTER__COMPONENT.ACTUAL_CHARACTER__SR_ONLY UI_KIT.CHARACTER_COUNTER__COMPONENT.MAXIMUM_CHARACTER__SR_ONLY
Hasonló eladó ingatlanok Padragkút városrészben
Frissítve: 9 napja
9
33 M Ft 471 429 Ft/m²
Eladó családi ház, Ajka
Frissítve: 7 napja
19
34,9 M Ft 498 571 Ft/m²
Eladó családi ház, Ajka

Frissítve: 4 napja
8
35 M Ft 466 667 Ft/m²
Eladó családi ház, Ajka

Fedezd fel a
hasonló házakat!Még további házak Veszprém megyében 34,4 M Ft körüli értékben
Tovább a hirdetésekhez Frissítve: ma
15
31 M Ft 516 667 Ft/m²
Eladó családi ház, Ajka

Frissítve: 9 napja
11
34,9 M Ft 359 794 Ft/m²
Eladó családi ház, Zirc

Feltöltve: 1 éve
1
31,75 M Ft 529 167 Ft/m²
Eladó egyéb ház, Tótvázsony
