+1 fotó
Hirdetéskód: 8870766
Referenciaszám: H513052
Feltöltve: ma
Balatonföldvár eladó ikerház 2 szobás: 64,9 millió Ft
64,9 millió Ft
1 475 000 Ft/m²
44 m²
300 m²
2 szoba
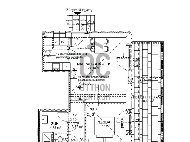
ÚJJÁÉPÍTETT IKERHÁZ-FÉL BALATONFÖLDVÁRON – NYUGALOM, MINŐSÉG, KIVÁLÓ ELHELYEZKEDÉS
Balatonföldvár csendes, zöldövezeti részén, mégis a központhoz közel kínáljuk megvételre ezt a teljes körűen újjáépített, modern kialakítású ikerház-felet, amely ideális választás állandó otthonnak vagy prémium nyaralónak.
A világos nappali a közös pillanatok tere, a két hálószoba pedig a nyugodt elvonulásé. A fedett terasz a nyári esték kedvenc helyszíne lesz – beszélgetésekhez, borozáshoz, elcsendesedéshez.
A saját, kb. 300 nm-es kert intim, zöld menedék, ahol a város zaja megszűnik létezni.árolásról.
Főbb jellemzők:
Nappali + 1 hálószoba
Világos, jól tagolt belső terek
Fedett terasz, amely tökéletes helyszíne a reggeli kávéknak vagy esti pihenésnek
Kb. 300 nm saját kert, intim, zöld környezetben (használati megosztással)
Teljesen újjáépített műszaki és esztétikai állapot
Alacsony fenntartási költségek, korszerű megoldások
Elhelyezkedés:
Nyugodt, családias környezet
Balatonföldvár központja, kikötő, strand, üzletek rövid időn belül elérhetők
Kiváló infrastruktúra, mégis természetközeli életérzés
Felszereltség és extrák:
Teljes körűen felújított: új tető, új burkolatok, új nyílászárók, új festés
15 cm homlokzati szigetelés
Klíma Gree COMFORT Pro inverteres mono szett
Elektromos padlófűtés és elektromos törölközőszárító radiátor a fürdőben (külön kérhető energia tárolós napelem)
Szúnyoghálók és redőnyök minden ablakon
Konyhabútor (felár ellenében gépesítve)
Külön közművek
Használati megosztással osztott, gondozott kert
A telek két utcára nyílik, így a két ikernyaraló teljesen független egymástól
Kinek ajánljuk?
Akik minőségi, azonnal költözhető ingatlant keresnek a Balaton déli partján
Családoknak, pároknak, vagy akár befektetőknek
Azoknak, akik nem szeretnének kompromisszumot kötni elhelyezkedés, nyugalom és értékállóság között
További információért és megtekintésért keressen bizalommal!
Ez az ingatlan ritka lehetőség Balatonföldváron.
Kérem vegye figyelembe, a fotók látványtervek, az építkezési folyamat okán!
#újjáépítettház #ikerház #azonnalköltözhető #modernotthon #családiotthon #kertesingatlan #duplagarázs #balatonföldvár #balatondélipart #balatonközel #balatonhome #balatonlife #balatonimálom #otthontkeresek #újkezdet #állandólakhatás #nyaralóésotthon #értékálló
Tulajdonságok
Ikerház
Egyéb
1973
19,1 m²
Nem adta meg a hirdető
Vedd fel a kapcsolatot a hirdetővel
+36 70 465 6
Hitelkalkulátor
Második évtől
279 300 Ft A 13. hónaptól
7,99%
Végig fix Futamidő: 20 év Banki visszahívás
Az OTP Bank munkatársai a neked megfelelő napszakban veszik fel veled a kapcsolatot. A becslés a hirdető által megadott adatokon alapul. A jelen tájékoztatás nem minősül ajánlattételnek és nem teljes körű, az egyes feltételek a hitelbírálat eredményétől függően változhatnak. Kérjük, a részletekről tájékozódj az OTP Bank fiókjaiban vagy az OTP Bank honlapján közzétett vonatkozó Üzletszabályzatokból és Hirdetményekből.
Vedd fel a kapcsolatot a hirdetővel
+36 70 465 6
Vedd fel a kapcsolatot a hirdetővel
+36 70 465 6
UI_KIT.CHARACTER_COUNTER__COMPONENT.REMAINING_SPACE__SR_ONLYUI_KIT.CHARACTER_COUNTER__COMPONENT.MAXIMUM_CHARACTER__SR_ONLY
Hasonló eladó ingatlanok Balatonföldváron
Frissítve: 9 napja
20
70 M Ft 1 166 667 Ft/m²
Eladó sorház, Balatonföldvár
Feltöltve: ma
4
64,9 M Ft 1 475 000 Ft/m²
Eladó ikerház, Balatonföldvár

Frissítve: 6 hónapja
1
170 000 Euro
65,45 M Ft 654 500 Ft/m²
Eladó családi ház, Balatonlelle, Hunyadi János utca 24

Fedezd fel a
hasonló házakat!Még további házak Somogy megyében 64,9 M Ft körüli értékben
Tovább a hirdetésekhez Frissítve: 2 hónapja
1
65 M Ft 650 000 Ft/m²
Eladó családi ház, Ságvár
Frissítve: 10 napja
20
69,7 M Ft 342 170 Ft/m²
Eladó családi ház, Balatonújlak

Frissítve: 9 napja
17
64,9 M Ft 523 387 Ft/m²
Eladó családi ház, Balatonfenyves

