+8 fotó
Hirdetéskód: 8875288
Referenciaszám: 930341
Feltöltve: 3 napja
Budajenő eladó ikerház 4 szobás: 167 millió Ft
167 millió Ft
1 159 722 Ft/m²
144 m²
671 m²
4 szoba
Luxus ikerfél Budajenőn eladó
**Eladó Prémium Ikerház Budajenőn – A csend és a kényelem oázisa!**
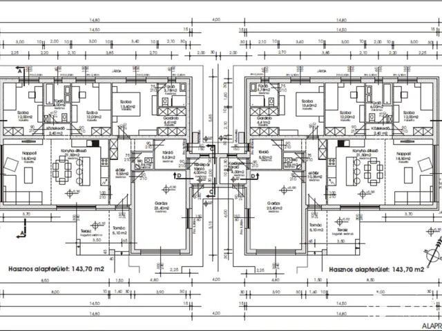
Budajenő egyik legcsendesebb, zöldövezeti utcájában kínáljuk eladásra ezt a kiváló elrendezésű, jelenleg építés alatt álló ikerházat. Az építkezés várható befejezése 2026 augusztusa. Az ingatlan 144 m² lakótérrel rendelkezik, és egy 671 m²-es parkosított telken fekszik. A két ikerház kizárólag a kerékpártárolóknál kapcsolódik majd egymáshoz, teljesen el lesznek szeparálva!!!
**Főbb jellemzők:**
- 1 szintes, korszerű épület
- 3 tágas szoba, egy napfényes nappali, konyha+étkező
- 2 igényesen kialakított fürdőszoba; külön fürdő és WC
- Szúnyoghálós, elektromos alumínium redőnyökkel ellátott ablakok a nyugodt éjszakákért
- Terasz és kertkapcsolat a zavartalan pihenéshez
- Önálló garázs elektromos garázskapuval és udvari gépjárműbeálló is kialakításra kerül
- Kerti grillezőhely és parkosított udvar automata öntözőrendszerrel
- Padlófűtés, klíma és külső hőszigetelés a maximális komfort érdekében
- Riasztórendszer, saját tároló, beépített szekrény és gardrób
A fűtést és a meleg vizet hőszivattyú biztosítja majd, melyhez a meleg víz egyenletes és folytonos hőmérsékletét biztosítandó egy 200 l-es indirekt víztároló tartály kapcsolódik. A fűtést minden helyiségben padlófűtés biztosítja, szobánkénti termosztáttal külön vezérelhetően.
Az épület homlokzatára 15 cm EPS hab hőszigetelés, a lábazatra pedig 15 cm-es XPS hőszigetelés kerül. A födém 25 cm fújt púrhab szigetelést, az épület padlója pedig 10 cm lépésálló eps hőszigetelést kap. A kültéri nyílászárók kívül antracit, belül fehér színű 5 légkamrás, 3 rétegű üvegezésű VEKA típusú nyílászárók lesznek.
Az ingatlan alacsony fenntartási költségei mellett a jó közlekedési lehetőségek is vonzóvá teszik ezt az ajánlatot.
Ne hagyja ki! Tegye meg az első lépést álmai otthona felé, és élvezze Budajenő nyugalmát és kényelmét ebben a minden igényt kielégítő ikerházban! Az építkezés a hét bármely napján megtekinthető előre egyeztetett időpontban.
Tulajdonságok
Ikerház
1
Jó állapotú
Elektromos
2026
A+
Vedd fel a kapcsolatot a hirdetővel
+36 30 331 3
Hitelkalkulátor
Második évtől
718 692 Ft A 13. hónaptól
7,99%
Végig fix Futamidő: 20 év Banki visszahívás
Az OTP Bank munkatársai a neked megfelelő napszakban veszik fel veled a kapcsolatot. A becslés a hirdető által megadott adatokon alapul. A jelen tájékoztatás nem minősül ajánlattételnek és nem teljes körű, az egyes feltételek a hitelbírálat eredményétől függően változhatnak. Kérjük, a részletekről tájékozódj az OTP Bank fiókjaiban vagy az OTP Bank honlapján közzétett vonatkozó Üzletszabályzatokból és Hirdetményekből.
Vedd fel a kapcsolatot a hirdetővel
+36 30 331 3
Vedd fel a kapcsolatot a hirdetővel
+36 30 331 3
UI_KIT.CHARACTER_COUNTER__COMPONENT.REMAINING_SPACE__SR_ONLYUI_KIT.CHARACTER_COUNTER__COMPONENT.MAXIMUM_CHARACTER__SR_ONLY
Hasonló eladó ingatlanok Budajenőn
Frissítve: 16 napja
20
175 M Ft 1 114 650 Ft/m²
Eladó ikerház, Budajenő

Feltöltve: 7 hónapja
20
175 M Ft 1 114 650 Ft/m²
Eladó ikerház, Budajenő

Frissítve: 4 napja
23
175 M Ft 1 114 650 Ft/m²
Eladó ikerház, Budajenő


Fedezd fel a
hasonló házakat!Még további házak Budajenőn 167 M Ft körüli értékben
Tovább a hirdetésekhez Frissítve: 23 napja
20
175 M Ft 1 114 650 Ft/m²
Eladó ikerház, Budajenő

Frissítve: 17 napja
17
160 M Ft 946 746 Ft/m²
Eladó családi ház, Budajenő

Frissítve: 4 napja
17
160 M Ft 946 746 Ft/m²
Eladó családi ház, Budajenő

