
Hirdetéskód: 8396370
Frissítve: 7 hónapja
Budapest II. kerület eladó ikerház 3 szobás: 120 millió Ft
120 millió Ft
1 411 765 Ft/m²
85 m²
504 m²
3 szoba
Budapest 2.kerület Dózsa Gy ut 41
Hűvösvölgyben a mező mellett eladó háromszobás ház
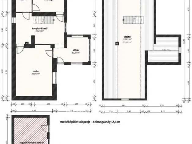
II. kerület kertvárosi részén eladó kétszintes családi ház (90 m2), három szobával, két fürdőszobával, kerti szerszámossal (20 m2), 400 m2 kerttel.
földszint: 1 szoba, konyha, spájz, fürdőszoba
emelet: 2 szoba, fürdőszoba
A ház a Dózsa György utcában , mezőtől egy sarokra található. A mezőre gyalog ki lehet sétálni kutyát sétáltatni, túrázni, futni.
Az ingatlan kialakítása ikerház, de csak a konyha és a felette lévő szobának van közös fala a másik házzal. Az eladásra kínált 85 m2 alapterületű 1980-as években épült ház kétszintes, mely jó választás lehet gyermekes családnak, gyerkőcöt tervező párnak vagy unokákra sokat felügyelő nagyszülőknek.
Alsó szinten helyezkedik el a konyha (15 m2) egy kis kamrával, egy szoba (15 m2), közlekedő és egy zuhanyfülkés fürdőszoba wc –vel. Ebben a helységben található egy éve kicserélt kazán is, amely a ház radiátoros fűtését és a meleg vizet biztosítja.
A közlekedőből tágas lépcsőn közelíthető meg a felső szint, ahol két szoba
(15-15 m2), egy kádas fürdőszoba – wc-vel és mosógép kiállással, kapott helyet.
A ház ablakai, az épületet körül ölelő 504 m2-es, kertre néznek.
A gyepes kertet a telekhatárokat jelölő sövénysor és a gyümölcsfák teszik igazi paradicsommá. A kertészkedni vágyóknak van még elég hely veteményezni, a társaságot kedvelőknek pedig egy tűzrakóhely kialakításával baráti vagy családi összejövetelek tökéletes színhelyévé tehető.
A ház jól karbantartott, de igény szerint felújítható.
Parkolási lehetőség van az ingatlan előtt, valamint egy kapu kialakításával, akár telken belül is megoldható. A kertben kb. 20 m2-es fa melléképület van.
Könnyű sétával elérhető a Széphalom üzletközpont és a mellette levő buszmegálló (64, 164, 57, 257), ahol még éjszakai buszok (964, 956) is közlekednek. A busz vonalán orvosi rendelő, uszoda.
Hűvösvölgyből a Széll Kálmán tér könnyen megközelíthető villamossal. (56, 59B, 61)
A közelben remek kiránduló helyek vannak a szabadidő eltöltésére.
Az ingatlan előre egyeztetett időpontban megtekinthető.
Tulajdonságok
Ikerház
2
Átlagos
Gázkazán
1980
6 m²
Nem adta meg a hirdető
Vedd fel a kapcsolatot a hirdetővel
M
Magánszemély
+36 20 557 6
Hitelkalkulátor
Második évtől
516 425 Ft A 13. hónaptól
7,99%
Végig fix Futamidő: 20 év Banki visszahívás
Az OTP Bank munkatársai a neked megfelelő napszakban veszik fel veled a kapcsolatot. A becslés a hirdető által megadott adatokon alapul. A jelen tájékoztatás nem minősül ajánlattételnek és nem teljes körű, az egyes feltételek a hitelbírálat eredményétől függően változhatnak. Kérjük, a részletekről tájékozódj az OTP Bank fiókjaiban vagy az OTP Bank honlapján közzétett vonatkozó Üzletszabályzatokból és Hirdetményekből.
Vedd fel a kapcsolatot a hirdetővel
M
Magánszemély
+36 20 557 6
Vedd fel a kapcsolatot a hirdetővel
M
Magánszemély
+36 20 557 6
UI_KIT.CHARACTER_COUNTER__COMPONENT.REMAINING_SPACE__SR_ONLYUI_KIT.CHARACTER_COUNTER__COMPONENT.MAXIMUM_CHARACTER__SR_ONLY
Hasonló eladó ingatlanok Erzsébetliget városrészben
Frissítve: 8 hónapja

1
128 M Ft 1 066 667 Ft/m²
Eladó családi ház, Budapest II. kerület, Remetekertváros
Frissítve: 10 napja

20
120 M Ft 759 494 Ft/m²
Eladó ikerház, Budapest II. kerület
Frissítve: 15 napja

20
124,9 M Ft 1 178 302 Ft/m²
Eladó családi ház, Budapest II. kerület, Pesthidegkút-Ófalu


Fedezd fel a
hasonló házakat!Még további házak Budapest II. kerületben 120 M Ft körüli értékben
Tovább a hirdetésekhez Frissítve: ma

20
124,9 M Ft 1 178 302 Ft/m²
Eladó családi ház, Budapest II. kerület, Pesthidegkút-Ófalu

Frissítve: ma

20
124,9 M Ft 1 178 302 Ft/m²
Eladó családi ház, Budapest II. kerület, Pesthidegkút-Ófalu

Frissítve: 22 napja

20
124,9 M Ft 1 178 302 Ft/m²
Eladó családi ház, Budapest II. kerület, Pesthidegkút-Ófalu


Töltsd fel hirdetésed ingyenesen!
Egyszerű